Wohnung kaufen - Wolfbachstrasse 23, 4665 Oftringen
Warum Sie diese Immobilie lieben werden
Heller Wohnbereich
Terrasse nach Südwesten
Ruhige zentrale Lage
Besichtigung vereinbaren
Besichtigung mit Lehmann buchen
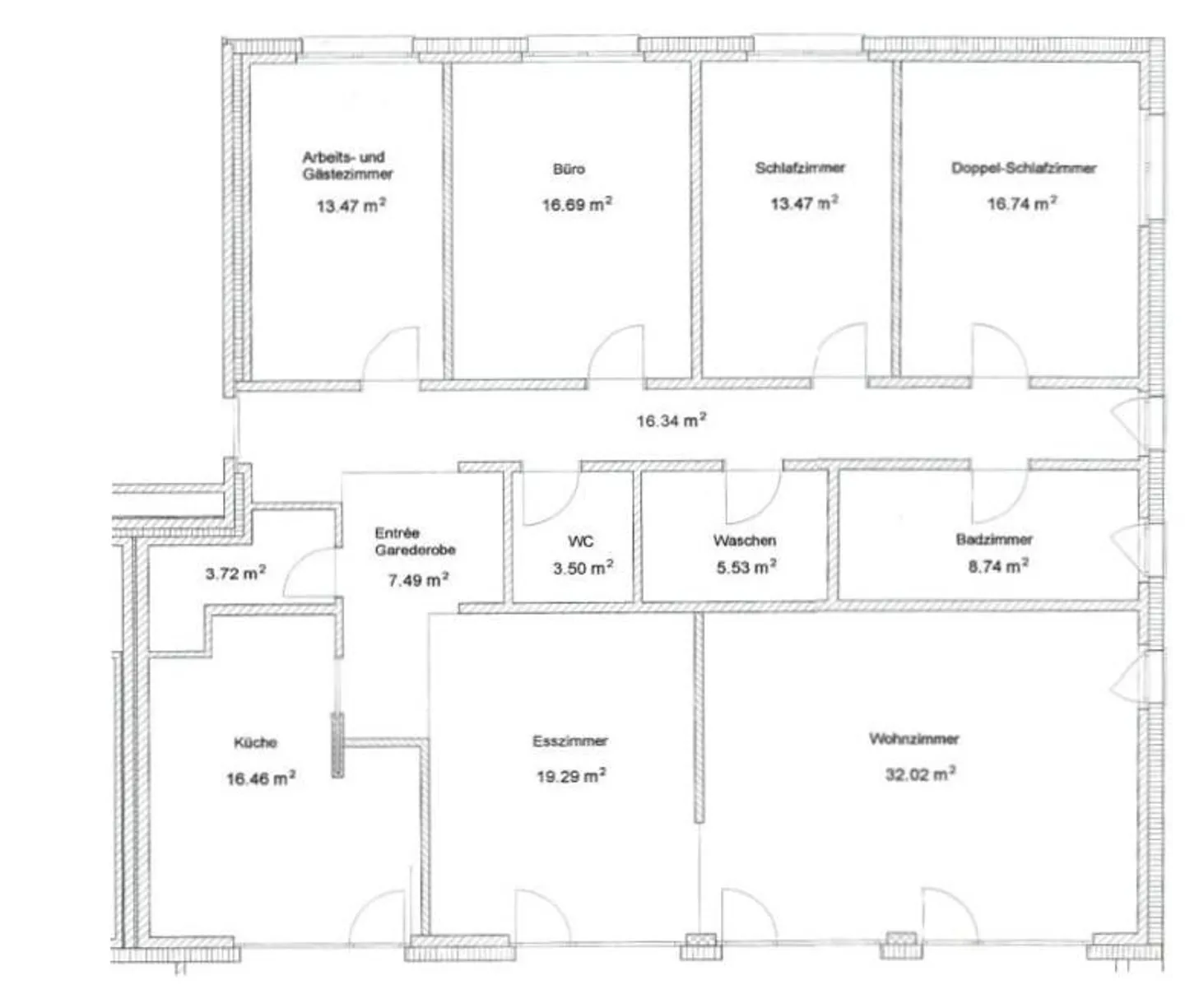
einmalige Gelegenheit: 5.5-Zimmerwohnung in ruhigem Quartier
Dieses einzigartige Objekt erwartet Sie in einem ruhigen und trotzdem sehr zentral gelegenen Wohnquartier.
Die sehr gepflegte Liegenschaft wurde 2005 erbaut und besteht aus 5 Eigentumswohnungen, einer grosszügigen Einstellhalle sowie einer begrünten Umgebung.
Die Wohnung ist per Treppe oder Lift erreichbar und empfängt Sie mit einem grosszügigen Entrée mit Garderobe.
Das Herzstück der Wohnung ist der helle Wohn- und Essbereich mit angrenzender, nach Südwesten ausgerichteter Terrasse.
Die geschlossen...
Immobiliendetails
- Verfügbar ab
- Nach Vereinbarung
- Zimmer
- 5.5
- Baujahr
- 2005
- Wohnfläche
- 175 m²
- Etage
- 1.
- Geschosse
- 3



