Wohnung kaufen - Oberstrasse 22a, 3550 Langnau im Emmental
Warum Sie diese Immobilie lieben werden
Sonnige zentrale Lage
Hochwertige Ausstattungen
Geräumige Balkone & Terrassen
Besichtigung vereinbaren
Besichtigung mit Yvonne buchen
3.5-Zimmer-Wohnung im 1. OG - Neubau!
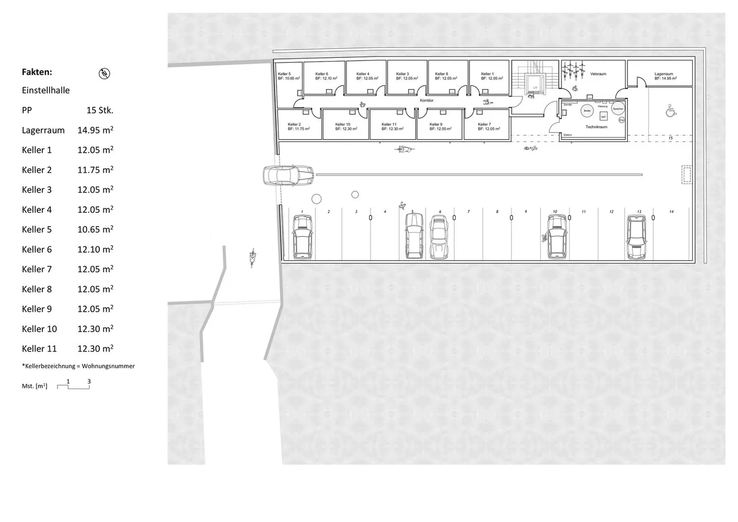
Im (fast) nebelfreien Langnau i.E. entsteht ein Mehrparteienhaus mit 11 Wohnungen und Einstellhalle.
Die Lage an der Oberstrasse ist zentrumsnah, ruhig und sonnig.
Folgendes zeichnet das Haus und die Wohnungen aus:
- Lift
- PV-Anlage auf dem Dach
- Heizsystem mit Grundwasser; im Sommer ist leichte Kühlung möglich
- Hinterlüftete Holzfassade mit Mineralwolldämmung
- EG-Wohnungen mit Gartenanteil und gedeckter Veranda
- Geschosswohnungen mit Balkon; teilweise verglast
- Attikawohnungen mit grosszügigen Ter...
Immobiliendetails
- Verfügbar ab
- 01.04.2026
- Zimmer
- 3.5
- Baujahr
- 2025
- Wohnfläche
- 118 m²
- Nutzfläche
- 149 m²
- Etage
- 1.



