Wohnung kaufen - Maison-Neuve 2, 1696 Vuisternens-en-Ogoz
Warum Sie diese Immobilie lieben werden
Geräumiger Privatgarten 431m²
Renoviert mit hochwertigen Materialien
Offene Küche mit Terrassenzugang
Besichtigung vereinbaren
Besichtigung mit JG buchen
Moderner Komfort in einer ruhigen Nachbarschaft
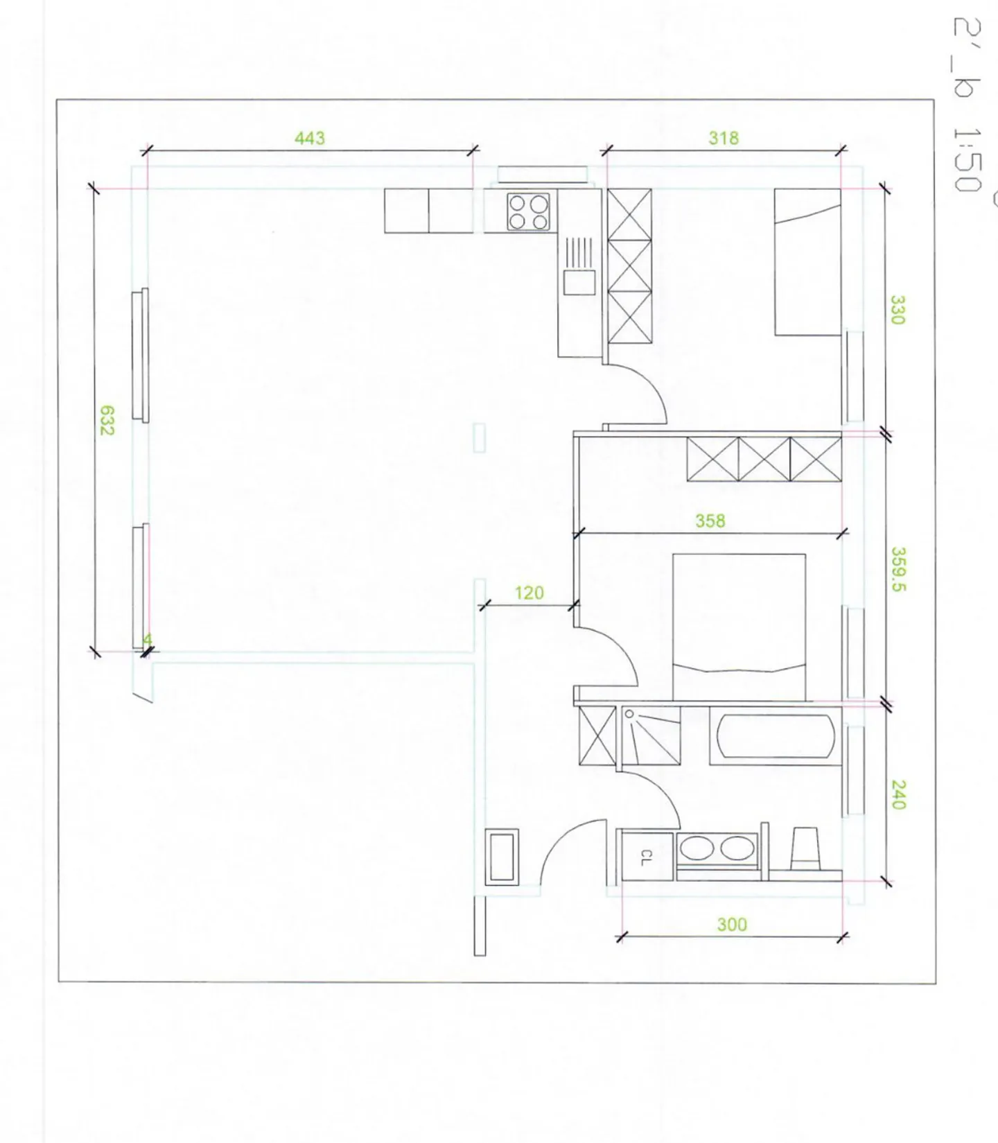
Diese 3,5-Zimmer-Wohnung, die sich im Erdgeschoss eines ohne Aufzug erbauten Gebäudes aus dem Jahr 1963 befindet, wird derzeit mit modernen und hochwertigen Materialien umfassend renoviert.
Das Gebäude selbst hat kürzlich eine umfassende Renovierung erfahren:
* Vollständig erneuerte Fassaden
* Neu gestrichene Treppenhäuser
* Neue PVC-Fenster und -Türen mit Dreifachverglasung
Geplante Renovierungsarbeiten für die Wohnung (2026):
* Neue offene Küche zum ...
Immobiliendetails
- Verfügbar ab
- Nach Vereinbarung
- Zimmer
- 3.5
- Wohnfläche
- 85 m²
- Grundstücksfläche
- 431 m²
- Etage
- EG



