Wohnung kaufen - 1913 Saillon
Warum Sie diese Immobilie lieben werden
Sonnige Parkplätze
Ökologisches Pelletheizung
In der Nähe von Thermalbädern
Besichtigung vereinbaren
Besichtigung buchen
4,5-Zimmer-Wohnung in Saillon
In einem Haus mit zwei Wohnungen am Eingang der Altstadt gelegen, vereint dieses Triplex alle Vorteile, um seinen Bewohnern Ruhe und Gelassenheit zu bieten.
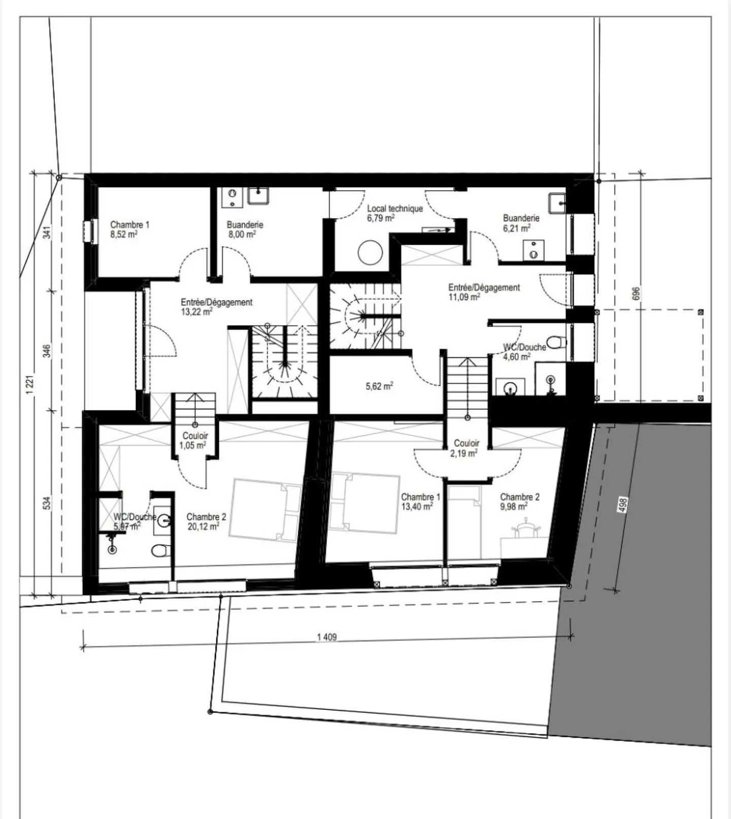
Im Erdgeschoss profitieren Sie von einem möblierten Eingang, einer Master-Suite, einem Waschraum und einer Speisekammer.
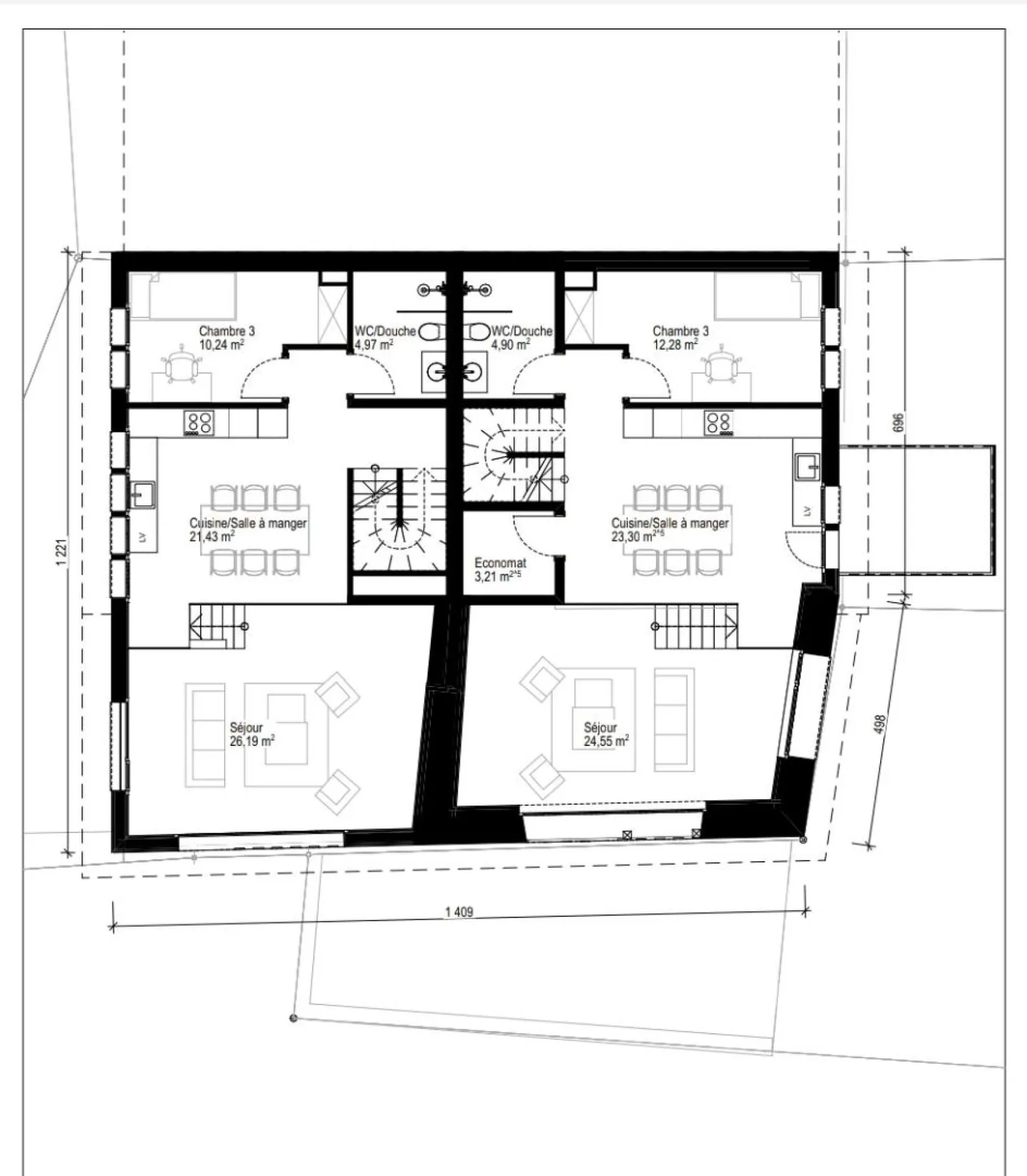
Die obere Etage besteht aus einem prächtigen Wohnraum mit einer geräumigen Küche, einem WC/Dusche sowie einem Schlafzimmer.
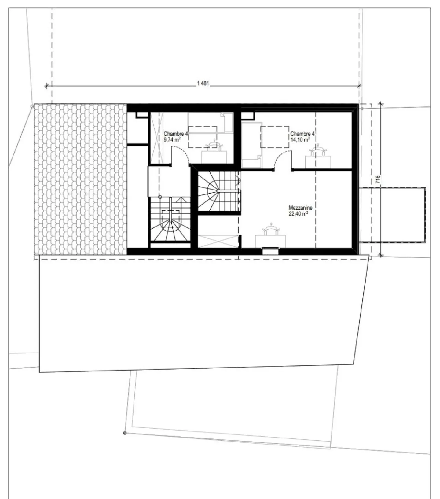
Im obersten Stockwerk finden Sie das 3. Schlafzimmer.
Im Sinne des Umweltschutzes wurde besonderes Aug...
Immobiliendetails
- Verfügbar ab
- Nach Vereinbarung
- Zimmer
- 4.5
- Badezimmer
- 2
- Renovierungsjahr
- 2022
- Wohnfläche
- 172 m²
- Nutzfläche
- 172 m²
- Grundstücksfläche
- 236 m²



