Wohnung kaufen - 1907 Saxon
Warum Sie diese Immobilie lieben werden
Moderne MINERGIE-Bauweise
LUMICENE-Glasfenster
Balkon mit herrlichem Ausblick
Besichtigung vereinbaren
Besichtigung buchen
2,5-zimmer-duplexwohnung
2,5-Zimmer-Duplexwohnung
Saxon ist eine angenehme Gemeinde, die zwischen Sion und Martigny liegt. Die zum Verkauf stehende Immobilie befindet sich in einer ruhigen Umgebung in der Nähe des Bahnhofs von Saxon.
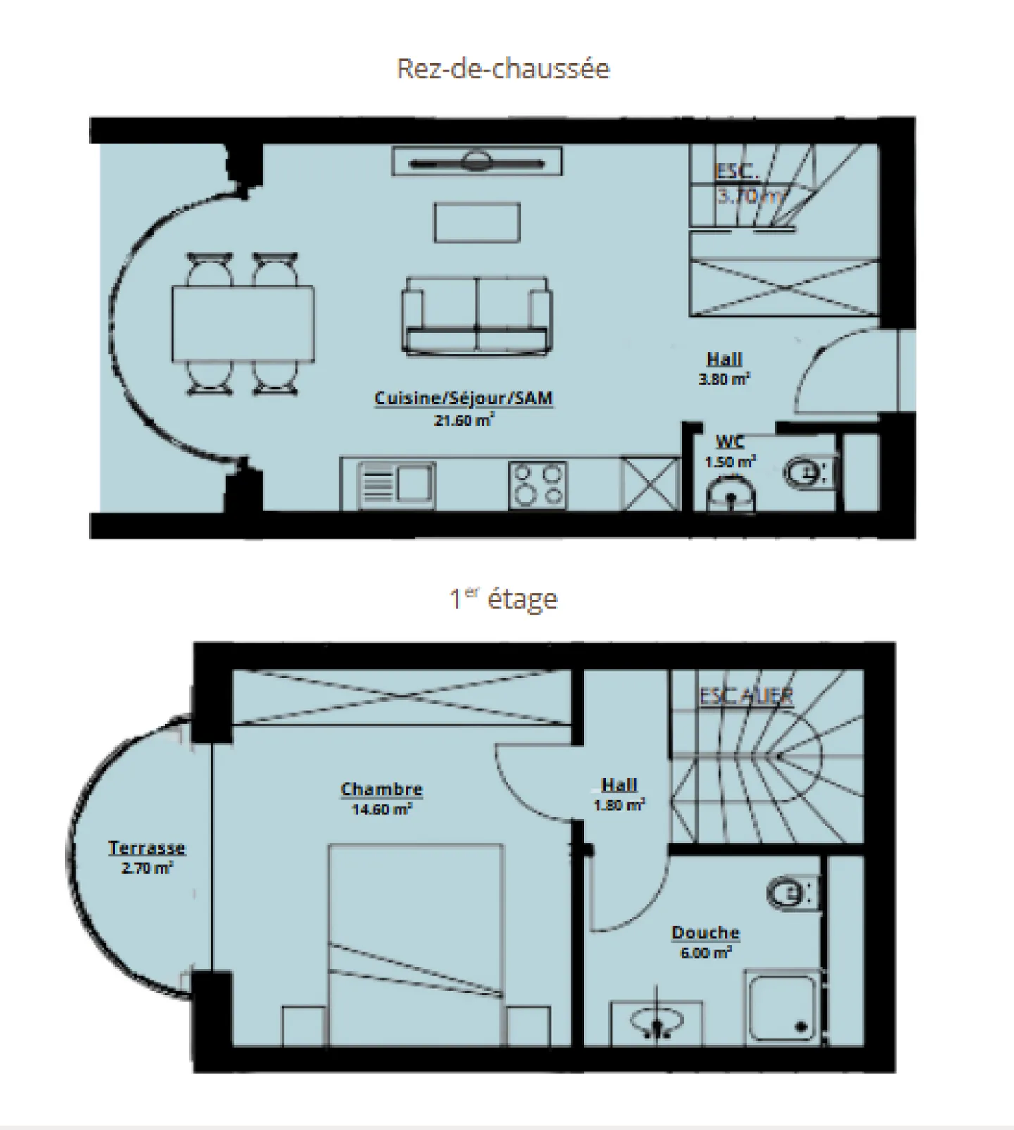
Duplexwohnung, sie erstreckt sich über zwei Ebenen (Erdgeschoss-1. Stock).
Im Erdgeschoss gibt es eine Eingangshalle und eine Gästetoilette, dann öffnet sich der Raum zu einem offenen Bereich, der Küche, Wohnzimmer und Esszimmer vereint, alles mit Zugang zur Terrasse mit LUMICENE-Bodenfen...
Immobiliendetails
- Verfügbar ab
- Nach Vereinbarung
- Zimmer
- 2.5
- Wohnfläche
- 74 m²
- Nutzfläche
- 74 m²



