Wohnung kaufen - Haselmattenstrasse 19, 3904 Naters
Warum Sie diese Immobilie lieben werden
Helle, geräumige Wohnbereiche
Hochwertige Ausstattungen
Anpassbare Designoptionen
Besichtigung vereinbaren
Besichtigung mit Beratung buchen
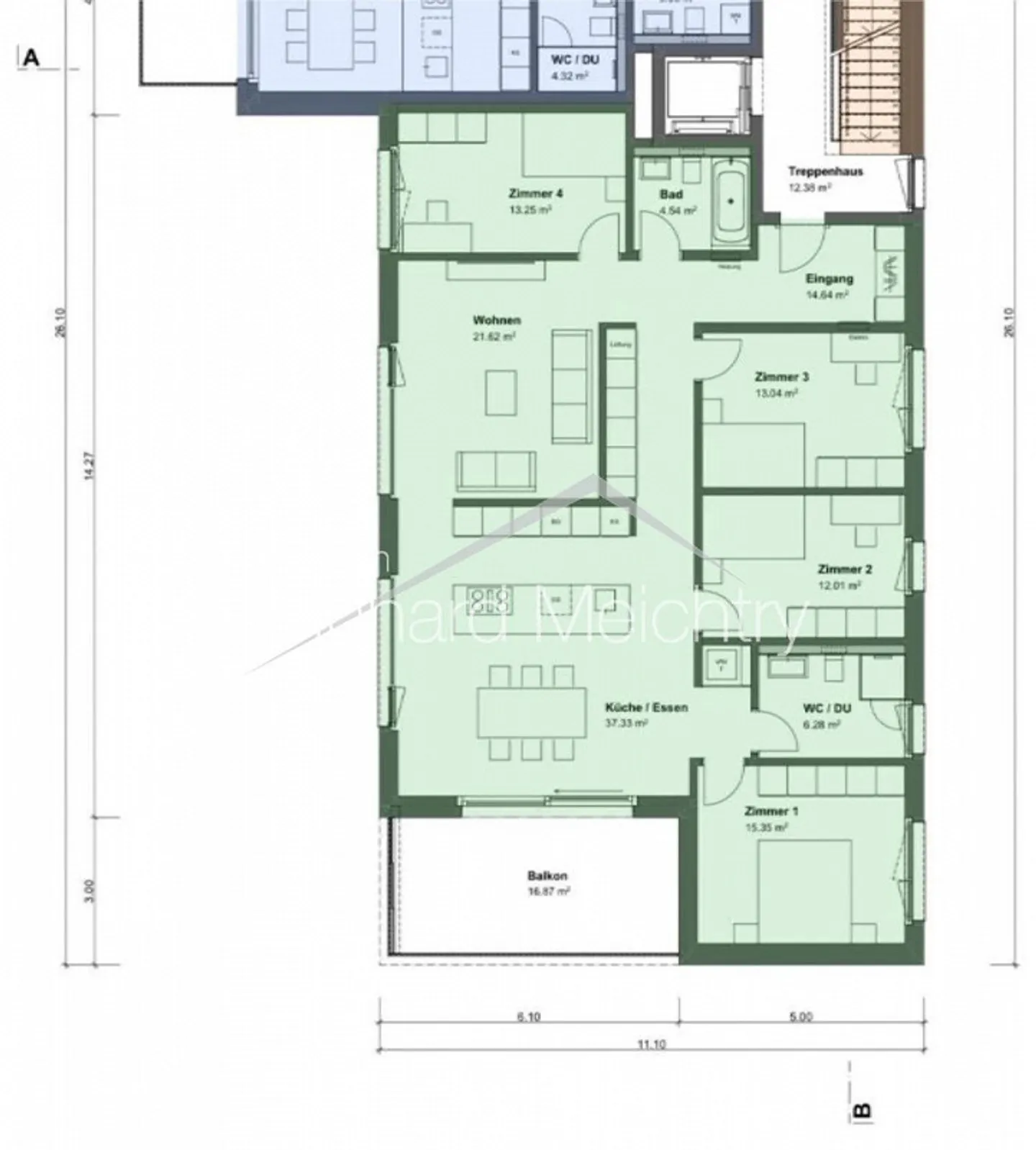
Hier entsteht Ihr Wohntraum in einem kleinen Mehrfamilienhaus mit nur 5 Wohnungen an absolut bevorzugter Wohnlage in Naters.
Der durchdachte Grundriss bietet einen angenehmen und unkomplizierten Tagesablauf und eine optimale Ausrichtung der Wohnung mit viel natürlichem Tageslicht und hellen Räumen.
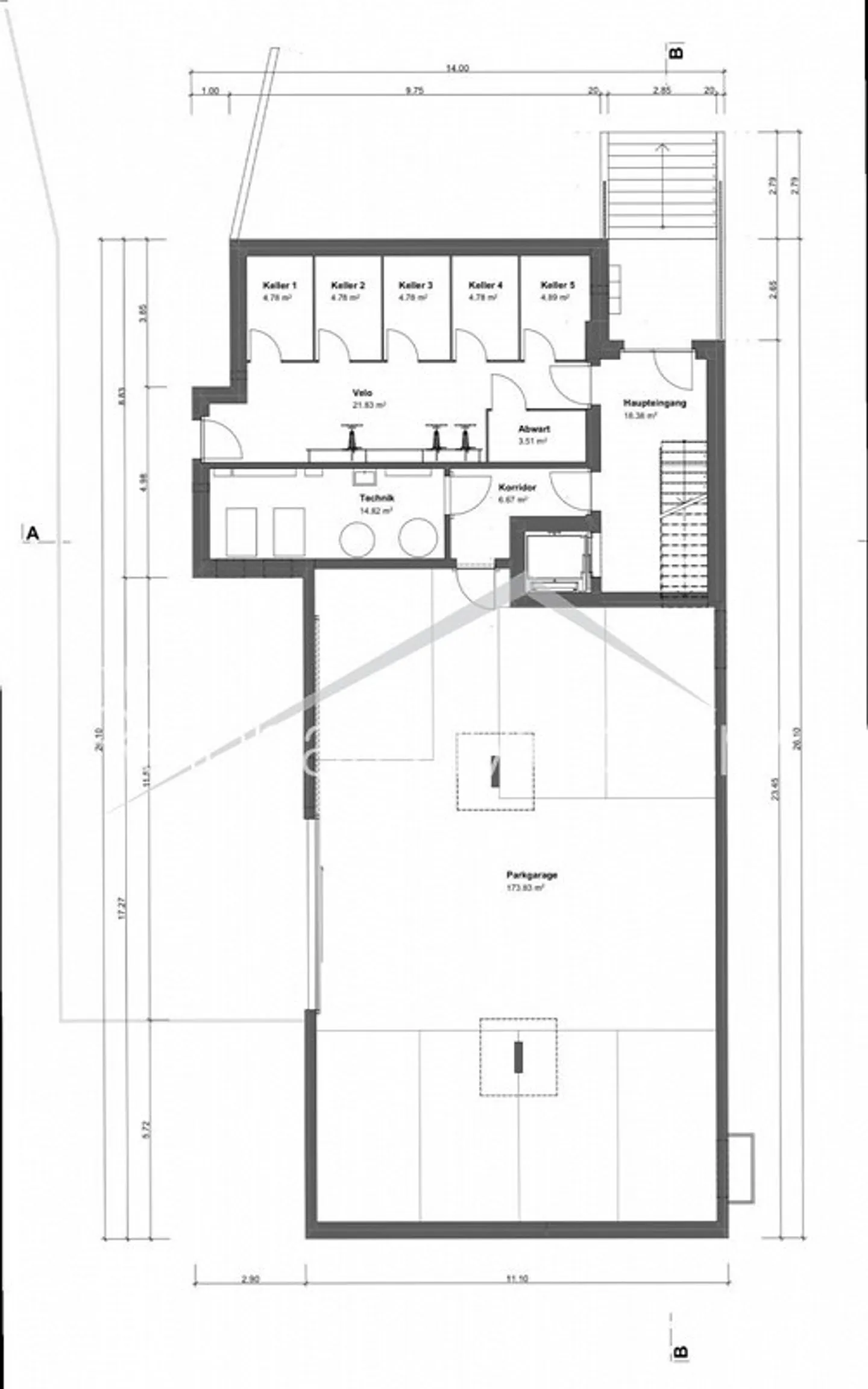
Der hohe Ausbaustandard entspricht den heutigen Anforderungen an zeitgemässes Wohnen mit tollen Materialien und allem Komfort, über Free-Cooling im Sommer mit kontrollierter Lüftung und Isolation mit ...
Immobiliendetails
- Verfügbar ab
- Nach Vereinbarung
- Zimmer
- 5.5
- Badezimmer
- 2
- Baujahr
- 2026
- Wohnfläche
- 166 m²
- Etage
- 2.



