Wohnung kaufen - Dorfstrasse 19, 9621 Oberhelfenschwil
Warum Sie diese Immobilie lieben werden
Atemberaubende Panoramaaussicht
Nachhaltige Energielösungen
Individuell gestaltbare Innenräume
Besichtigung vereinbaren
Besichtigung mit Döbeli buchen
TAG DER OFFENEN BAUSTELLE SAMSTAG, 28.02.2026: Neubau / Erstbezug: ...
Über das Neubauprojekt
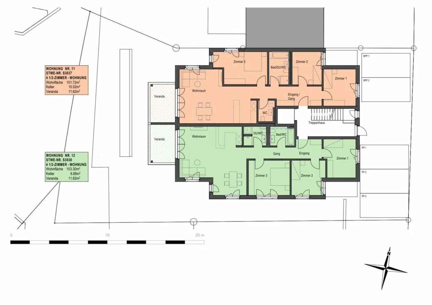
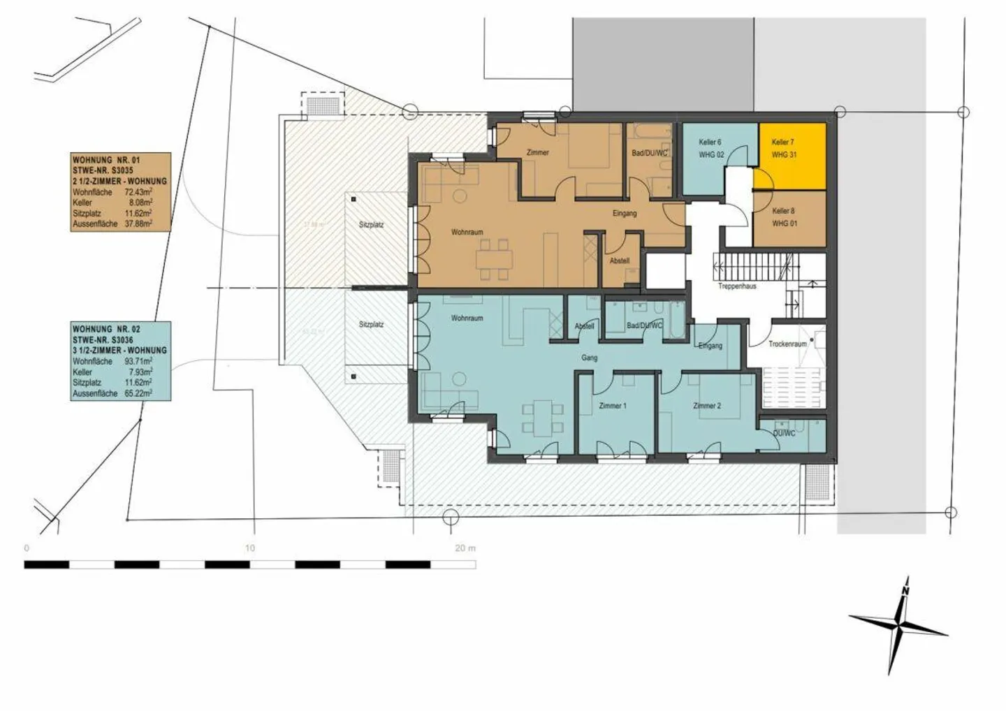
Im Dorfkern von Oberhelfenschwil entsteht ein Mehrfamilienhaus im Eigentumsstandard mit insgesamt acht Wohneinheiten. Der Baustart ist im Januar 2025 erfolgt und der Bezug der Wohnungen ist auf Juli 2026 geplant. Die Wohnungsgrössen variieren von 2.5 bis 4.5 Zimmer.
Alle Wohnungen sind durch die Lage und Anordnung optimal besonnt und verfügen über einen atemberaubenden Weitblick. Die Grundrisse sind modern und entsprechen dem heutigen Zeitgeist.
Das Mehrfamilienhaus verfügt ü...
Immobiliendetails
- Verfügbar ab
- Nach Vereinbarung
- Zimmer
- 4.5
- Baujahr
- 2025
- Wohnfläche
- 103 m²
- Etage
- EG



