Wohnung kaufen - 1870 Monthey
Warum Sie diese Immobilie lieben werden
Heller Wohnraum mit Kamin
Sonniger Balkon von 10 m2
In der Nähe der Stadtannehmlichkeiten
Besichtigung vereinbaren
Besichtigung mit Mathieu buchen
Geräumige und helle wohnung
Opportunité !
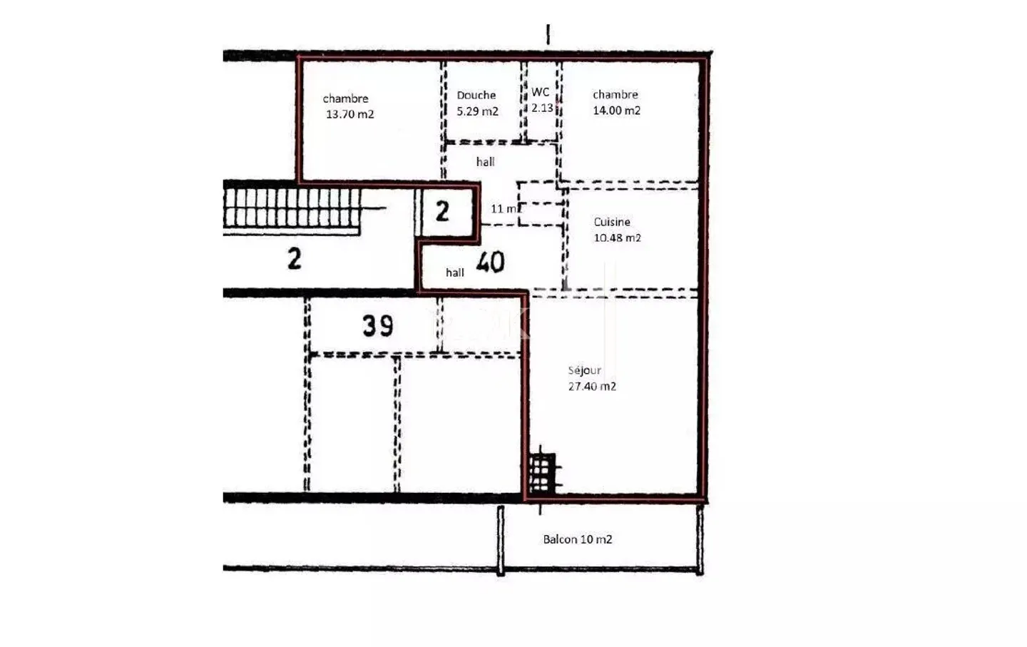
Un bel appartement de 3.5 qui offre une confortable surface habitable de 90 m2 et un balcon de 10 m2. Parfaitement situé à proximité immédiate des commodités de Monthey, il représente une opportunité idéale pour un investissement sûr et durable.
Répartition des pièces :
- Un hall d'entrée avec des armoires murales
- Une cuisine équipée
- Un chaleureux séjour avec une cheminée et un accès au balcon
- Deux confortables chambres de plus de 13m2
- Une salle de douche
- Un WC sépar...
Immobiliendetails
- Verfügbar ab
- Nach Vereinbarung
- Zimmer
- 3.5
- Wohnfläche
- 90 m²
- Etage
- 3.




