1 / 13

Wohnung mieten - 1870 Monthey

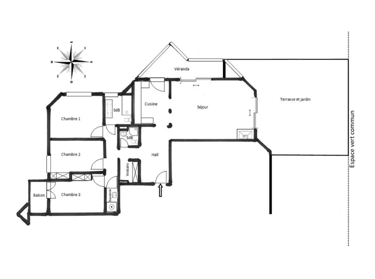
4.5 rooms • 133 m²
CHF 760’000.-
CHF 5’714 m²

Warum Sie diese Immobilie lieben werden

Geräumige Terrasse von 42m²

Heller Wohnbereich mit Kamin

Privater Garten und Grünfläche

Besichtigung vereinbaren

Besichtigung buchen

Nathalie Nicolier immobilier
Diese Beschreibung wurde automatisch von Französisch übersetzt.

Wunderschöne! geräumige 4,5-zimmer-wohnung mit veranda, terrasse und garten

Ein wahrer Ruhepol im Herzen von Monthey!

Eine privilegierte Wohnumgebung

Nahe aller Annehmlichkeiten:

- Geschäfte (M Central, Coop usw.)

- Öffentliche Verkehrsmittel

- Ärzte

- Schulen und Kindertagesstätten (Tagesmütter in der PPE)

Diese wunderschöne 4,5-Zimmer-Wohnung mit 133 m² ist Teil einer Eigentümergemeinschaft, die eine große Grünfläche von 2000 m² bietet, perfekt

für Familien oder Naturliebhaber.

Ideale Lage im Herzen von Monthey, in einer grünen und ruhigen Umgebung.

Diese Immobilie bietet...

Immobiliendetails

Verfügbar ab
Nach Vereinbarung
Zimmer
4.5
Baujahr
1986
Wohnfläche
133
Nutzfläche
133

Eigenschaften

Garage
Unverbaubare Aussicht

Agentur

Nathalie Nicolier immobilier
Adresse:Rue de la Tour 51, 1867 Ollon VD
Ref: P28366

Standort

1870 Monthey

Quellen