Wohnung kaufen - 1773 Léchelles
Warum Sie diese Immobilie lieben werden
Hochwertige Miele-Küche
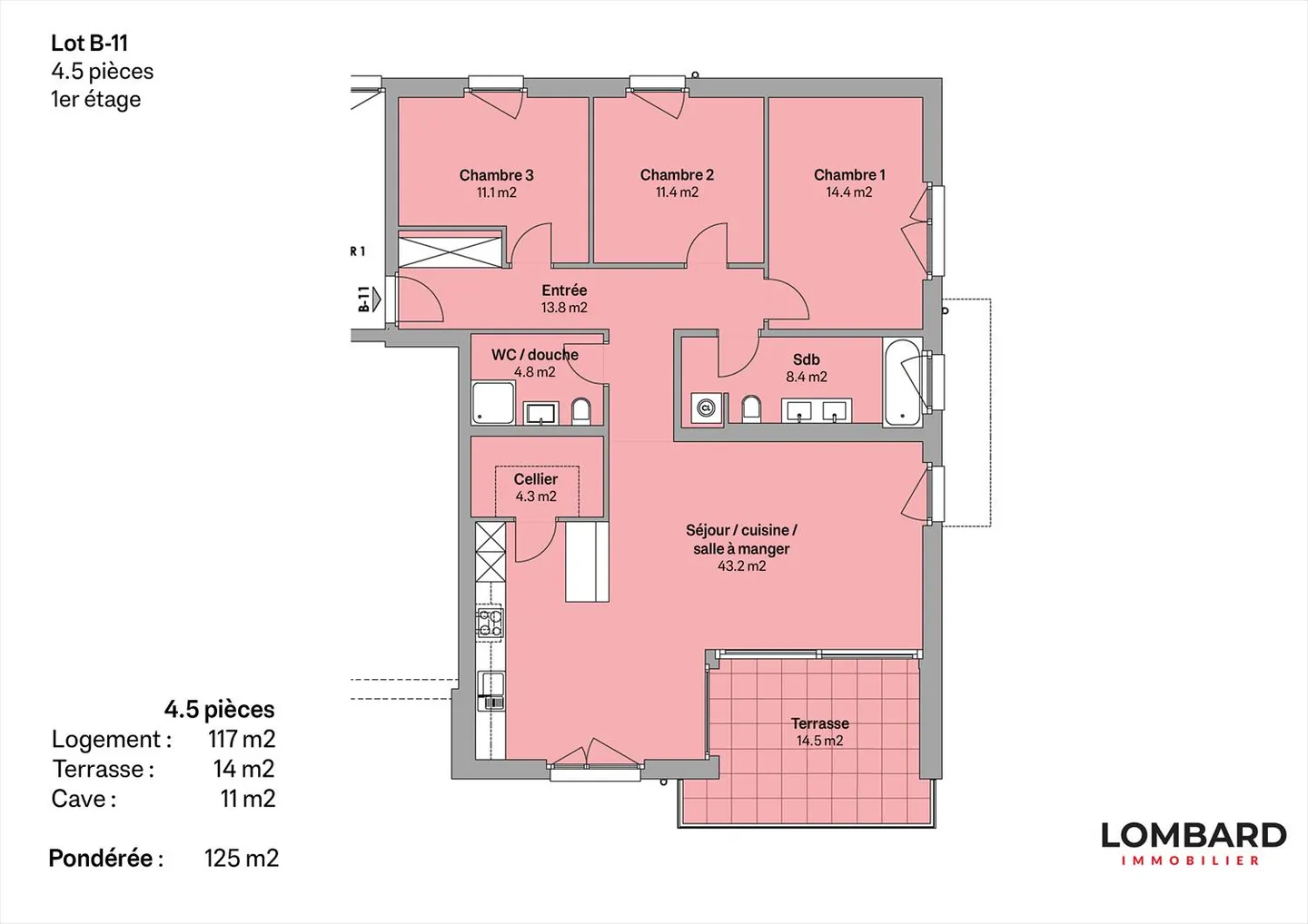
14 m² private Terrasse
Qualitätsmaterialien verwendet
Besichtigung vereinbaren
Besichtigung buchen
Neue 4,5-Zimmer-Wohnung im 1. Stock
Zu verkaufen in Léchelles: wunderschöne neue 4,5-Zimmer-Wohnung im 1. Stock (Gebäude B) in einem kleinen Gebäude mit 9 Einheiten und Aufzug.
Entdecken Sie die neue Promotion << Résidences des Hirondelles >> in Léchelles. Der Bau hat begonnen und die Lieferung der Wohnungen ist für Ende 2025 geplant.
- Große 4,5-Zimmer-Wohnung mit 125 m2 Fläche
- Voll ausgestattete Küche (Miele)
- 2 Badezimmer
- Stauraum im Eingangsbereich der Wohnung
- Hochwertige Materialien und Ausstattungen (motor...
Immobiliendetails
- Verfügbar ab
- Nach Vereinbarung
- Zimmer
- 4.5
- Baujahr
- 2025
- Wohnfläche
- 125 m²
- Nutzfläche
- 125 m²




