Wohnung kaufen - 1681 Billens
Warum Sie diese Immobilie lieben werden
Atemberaubende Alpenansicht
Geräumige offene Küche
Helles, natürliches Licht
Besichtigung vereinbaren
Besichtigung mit Firas buchen
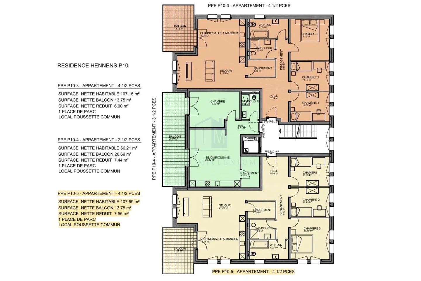
Ein der letzten schönen 4 ½ Zimmer-Stile zu ergreifen!
Ein der letzten 2 Apartments im Stil von 4 ½ Zimmern!
Willkommen im charmanten Dorf Billens-Hennens, einem friedlichen und angenehmen Ort zum Leben mit einem atemberaubenden Blick auf die Alpen und die historische Stadt Romont.
Dieses schöne Apartment mit 4 ½ Zimmern, voll südlich, ist geräumig und hell mit einer offenen Küche und einem schönen großen Balkon.
Die intelligente Anordnung dieses Apartments bietet ein Gefühl von Raum und einzigartigen Komfort. Sobald Sie die Tür betreten, werden Sie...
Immobiliendetails
- Verfügbar ab
- 01.11.2025
- Zimmer
- 4.5
- Baujahr
- 2025
- Wohnfläche
- 114 m²
- Nutzfläche
- 129 m²
- Etage
- 1.



