Wohnung kaufen - 1680 Romont FR
Warum Sie diese Immobilie lieben werden
Geräumiges, lichtdurchflutetes Wohnzimmer
Privatgarage im Stadtzentrum
Authentische Balken für Charme
Besichtigung vereinbaren
Besichtigung buchen
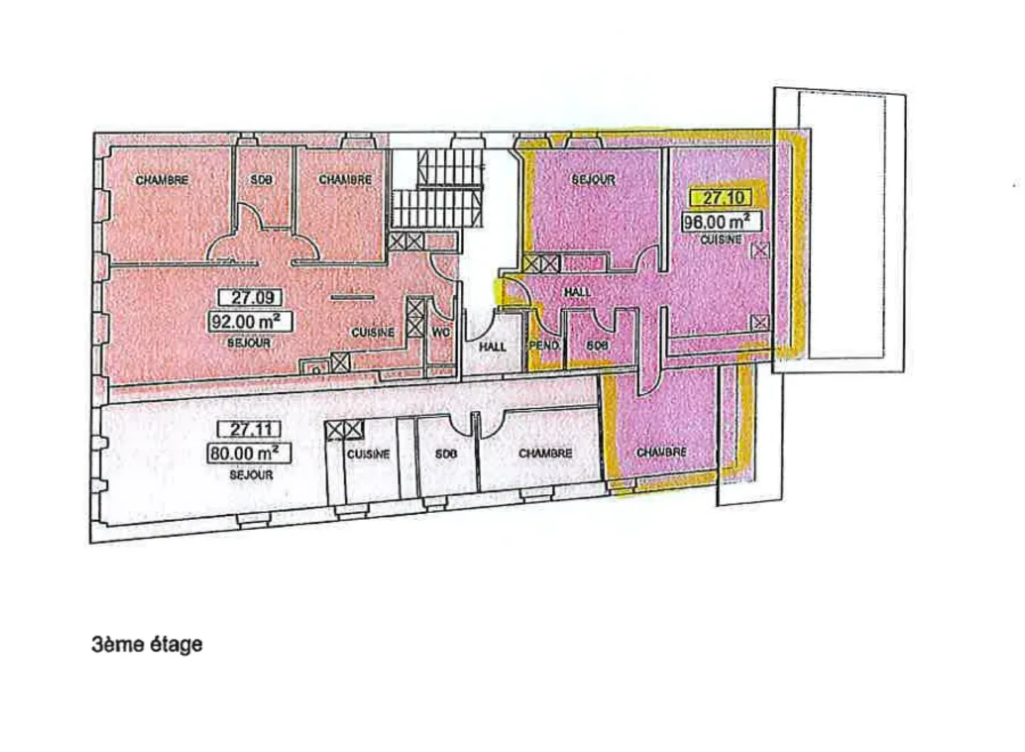
Charmante 2,5-zimmer-wohnung im herzen von romont
Charme, Volumen & Rentabilität im Herzen von Romont - 2,5 Zimmer mit privater Garage
Im Zentrum von Romont, nur wenige Schritte von Geschäften und dem urbanen Leben entfernt, liegt eine geräumige 2,5-Zimmer-Wohnung, die alten Charme mit großzügigen Volumen verbindet. Mit seinen 96 m² Wohnfläche, sichtbaren Balken und der Querkonfiguration wird diese Immobilie sowohl Liebhaber von Charme als auch clevere Investoren ansprechen.
Ein einzigartiges und warmes Interieur:
- Großes, lichtdurchflute...
Immobiliendetails
- Verfügbar ab
- Nach Vereinbarung
- Zimmer
- 2.5
- Wohnfläche
- 96 m²
- Nutzfläche
- 96 m²
- Etage
- 3.



