Wohnung kaufen - Steingasse 16, 4704 Niederbipp
Warum Sie diese Immobilie lieben werden
Heller offener Wohnbereich
Entspannender Balkon von 6 m²
Moderne Badezimmerausstattung
Besichtigung vereinbaren
Besichtigung mit Albion buchen
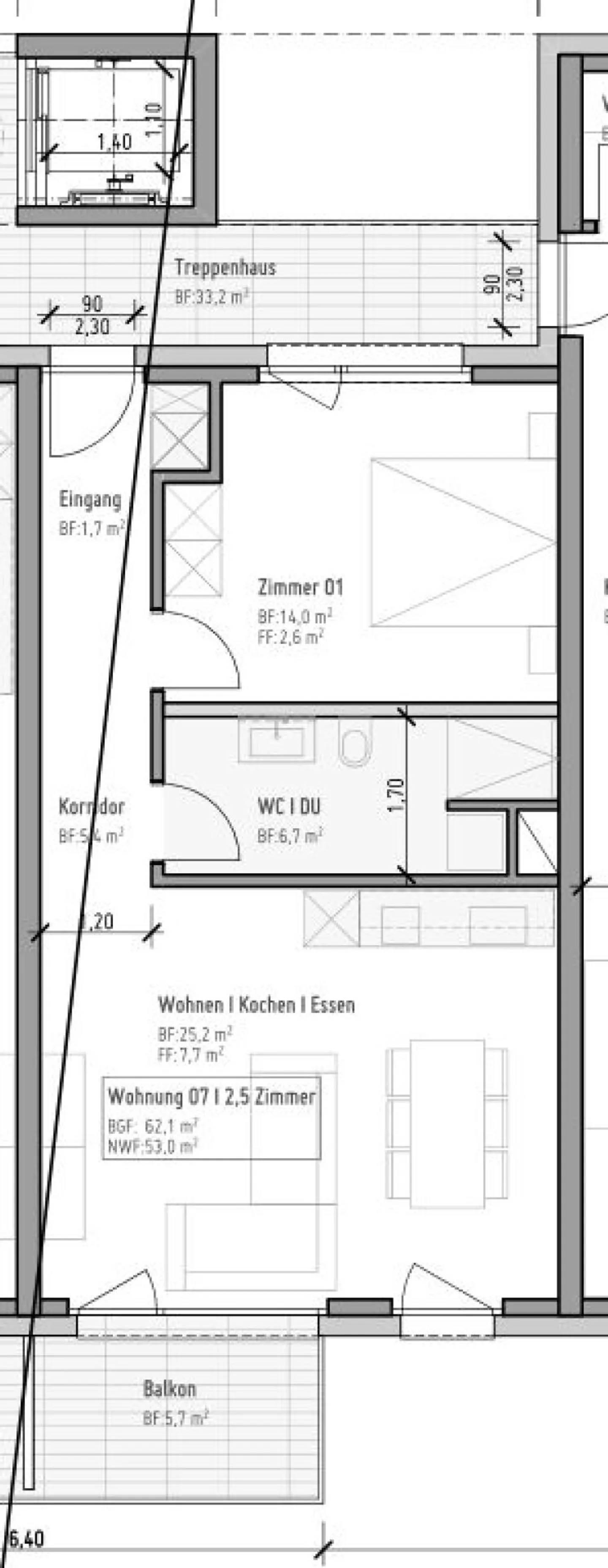
Attraktive Neubauwohnung mit Balkon - komfortables Wohnen auf 62 m²
In Niederbipp entsteht ein attraktives Neubau-Mehrfamilienhaus mit insgesamt 14 Wohneinheiten - und hier bietet sich Ihnen die Gelegenheit, eine gemütliche und lichtdurchflutete 2.5-Zimmerwohnungzu erwerben, welche modernen Wohnkomfort mit hochwertigem Ausbau vereint.
Die Wohnung umfasst eine Bruttowohnfläche von ca. 62 m² und verfügt über einen praktischen Grundriss, der ideal auf Singles oder Paare zugeschnitten ist. Der Balkon ...
Immobiliendetails
- Verfügbar ab
- Nach Vereinbarung
- Zimmer
- 2.5
- Badezimmer
- 1
- Baujahr
- 2025
- Wohnfläche
- 53 m²
- Balkonfläche
- 6 m²
- Etage
- 2.



