Maisonette kaufen - 1262 Eysins
Warum Sie diese Immobilie lieben werden
Heller Wohnraum
20 m² Balkon
Innen- und Außenparkplatz
Besichtigung vereinbaren
Besichtigung mit Alexandre buchen
Großes Duplex in Eysins
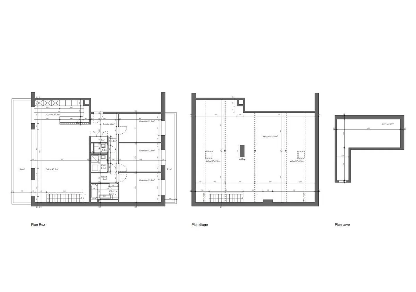
Entdecken Sie dieses prächtige Duplex mit 5,5 Zimmern in Eysins. Mit seinen 215 Quadratmetern Wohnfläche bietet diese Immobilie einen geräumigen und hellen Wohnbereich, ideal für eine Familie. Dieses Duplex bietet eine komfortable Wohnumgebung, die Eleganz und Modernität vereint.
* Wohnfläche von 215 Quadratmetern
* Balkon von 20 Quadratmetern
* 1 Innenparkplatz und 1 Außenparkplatz (CHF 60'000.- zusätzlich)
* Baujahr: 2008
Zögern Sie nicht, auf den Link zur virtuellen Tour zu klicken, um ein immersi...
Immobiliendetails
- Verfügbar ab
- Nach Vereinbarung
- Zimmer
- 5.5
- Baujahr
- 2008
- Wohnfläche
- 215 m²
- Etage
- 1.
- Geschosse
- 2



