Wohnung kaufen - 1000 Lausanne 25
4.5 Zimmer • 155 m² • Erdgeschoss
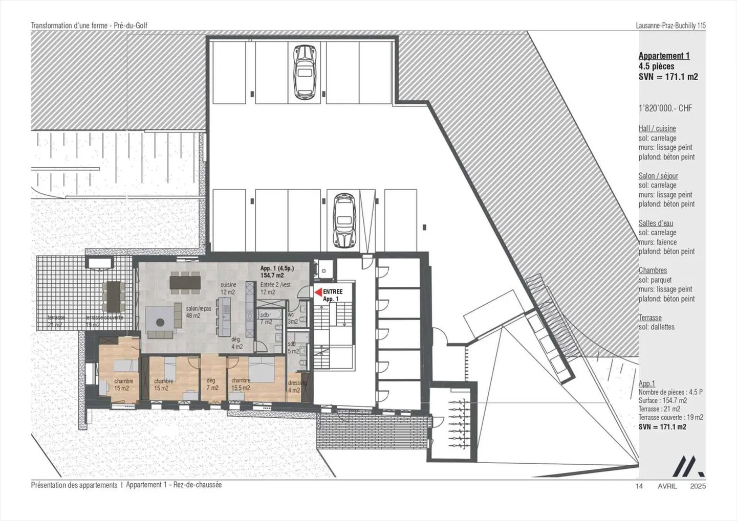
CHF 1’820’000
CHF 10’643 m²
Warum Sie diese Immobilie lieben werden
40 m² private Terrasse
Großer Gartenbereich
2 Innenparkplätze
Besichtigung vereinbaren
Besichtigung mit Festa buchen
Festa Carlo
Régie Duboux SA | Lausanne
Wohnung 4.5 zimmer in lausanne
Diese 4.5-Zimmer-Wohnung mit 155 m2 befindet sich im Erdgeschoss, sie bietet eine schöne Terrasse von 40 m2 und einen großen Garten.
2 Innenparkplätze vervollständigen dieses Objekt.
Wohnungspreis: CHF 1'820'000.-
2 Parkplätze: CHF 70'000.-
Gesamtpreis: 1'890'000.-
Immobiliendetails
- Verfügbar ab
- 30.06.2026
- Zimmer
- 4.5
- Wohnfläche
- 155 m²
- Nutzfläche
- 171 m²
- Etage
- EG
- Geschosse
- 4
Eigenschaften
Parkplätze
Neubau
Agentur
Régie Duboux SA | Lausanne
Adresse:Rue du Petit-Chêne 26, 1003, Lausanne
(3 reviews)
Ref: 61320-1074754
Online seit
01/10/2025
vor 27 Tagen
Standort
1000 Lausanne 25




