Doppelgarage kaufen - Unterer Batterieweg 145, 4059 Basel
Warum Sie diese Immobilie lieben werden
Derzeit reserviert
Keine Besichtigungen möglich
Besuchen Sie unsere Homepage für mehr
Besichtigung vereinbaren
Besichtigung mit Patric buchen
Reserviert
Derzeit ist diese Garagenbox reserviert, daher führen wir keine Besichtigungen mehr durch und versenden keine Exposés mehr.
Vielen Dank für Ihr Verständnis.
Weitere spannende Angebote finden Sie auf unserer Homepage.
Meister Immobilien-Treuhand
Immobiliendetails
- Verfügbar ab
- Nach Vereinbarung
- Baujahr
- 1991
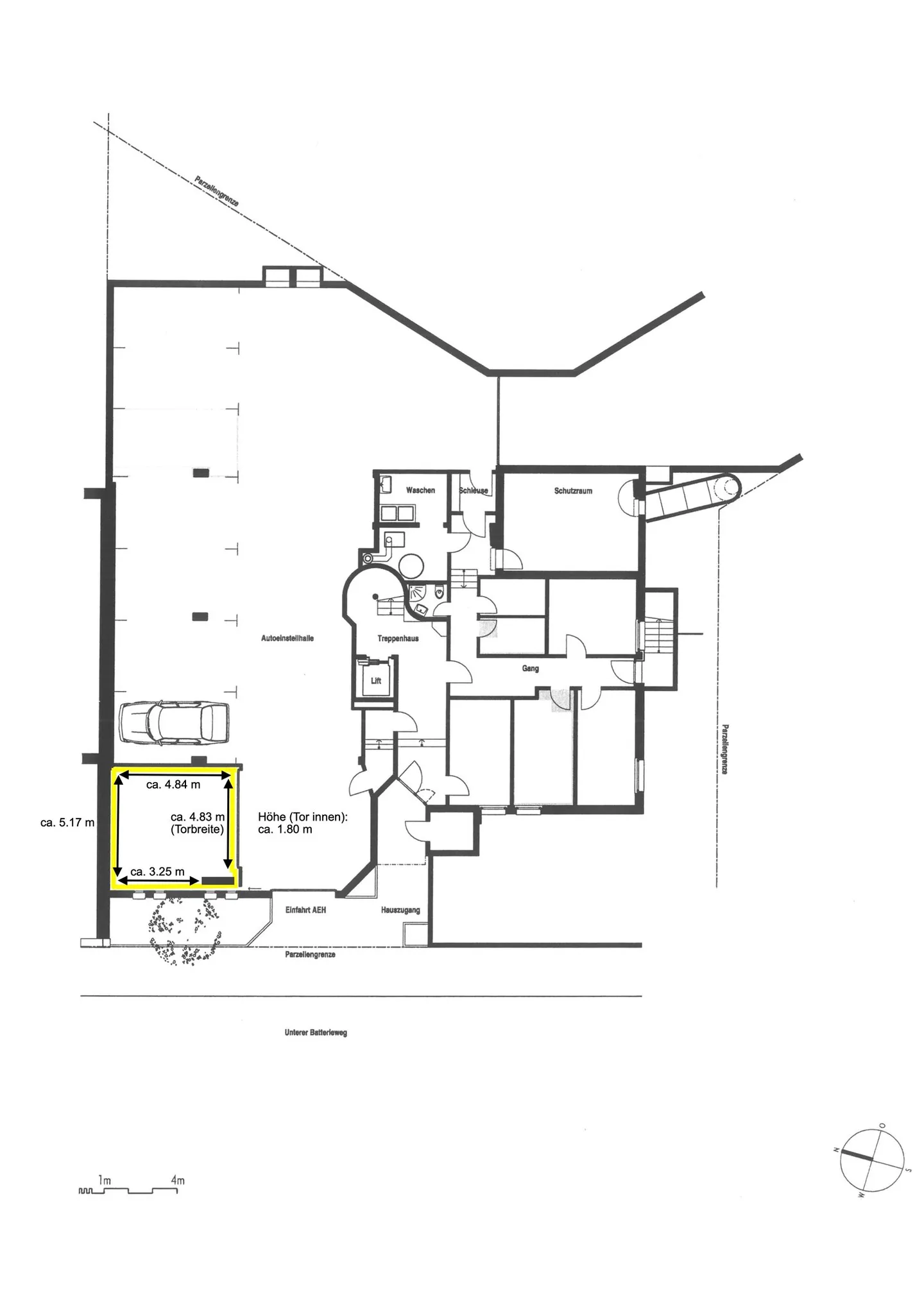
- Wohnfläche
- 25 m²
- Nutzfläche
- 25 m²




