Einfamilienhaus kaufen - Via Delle Palme, 6600 Muralto
Warum Sie diese Immobilie lieben werden
Atemberaubender Seeblick
Helles offenes Wohnkonzept
Große Außenflächen
Besichtigung vereinbaren
Besichtigung buchen
NEUER PREIS, PRIVATSPhäre UND KLASSE
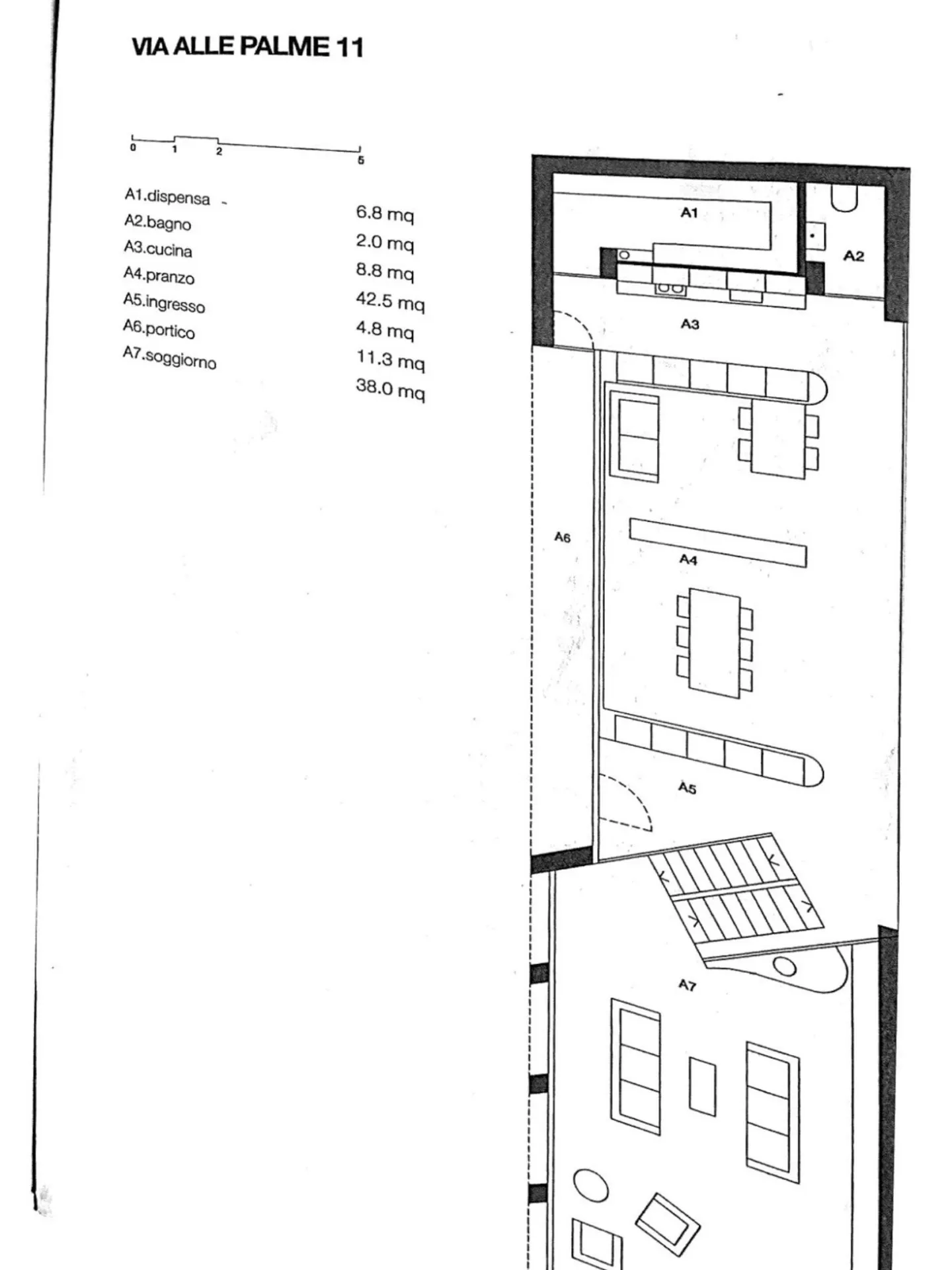
In ruhiger und sonniger Lage, nur wenige Schritte von allen Dienstleistungen entfernt, in einem ordentlichen Wohnkontext mit exklusivem Eigentum, großes Einfamilienhaus mit 7,5 Zimmern, erbaut 1984, in excellentem Zustand, gekennzeichnet durch große, helle Räume, edle Ausstattung und eine atemberaubende Aussicht auf den See; ein kleines Paradies, umgeben von Grün, ideal für eine Familie, die eine komfortable, moderne und funktionale Immobilie sucht.
Über mehrere Ebenen verteilt, bietet dieses Hau...
Immobiliendetails
- Verfügbar ab
- 11.06.2025
- Zimmer
- 7.5
- Baujahr
- 1984
- Wohnfläche
- 411 m²
- Nutzfläche
- 411 m²
- Grundstücksfläche
- 2681 m²
- Gebäudevolumen
- 1289 m³




