Einfamilienhaus kaufen - Via Altirolo, 6745 Giornico
Warum Sie diese Immobilie lieben werden
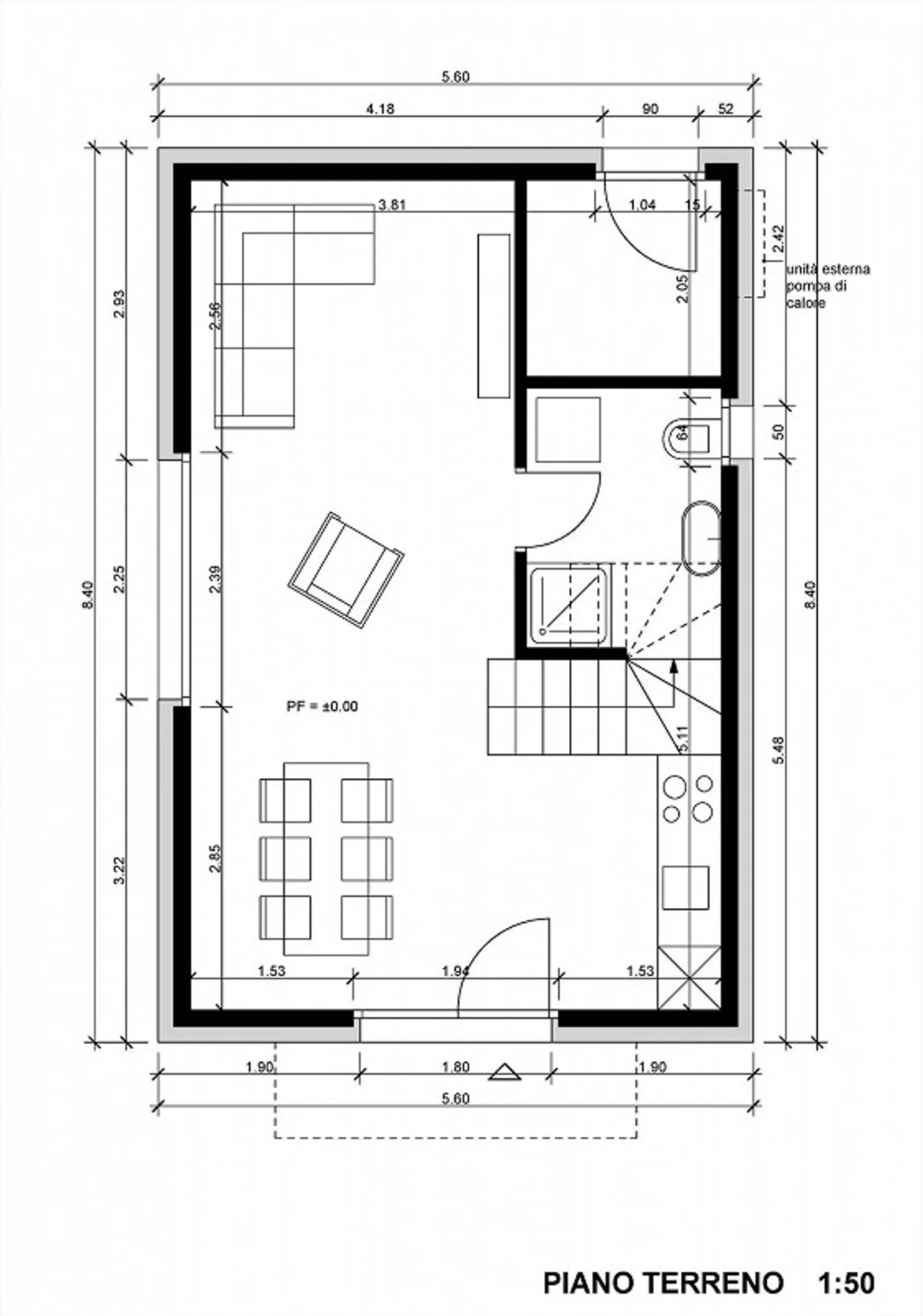
Offener Wohnbereich
Privater eingezäunter Garten
Energieeffizientes Heizsystem
Besichtigung vereinbaren
Besichtigung mit Orari buchen
Neue villa mit garten in ruhiger lage
Die verfügbare Villa befindet sich in der Via Altirolo, nur wenige Schritte vom Piazza Lavatoio im oberen Teil des Dorfes entfernt; die Autobahnausfahrt Biasca ist in nur 10 Minuten erreichbar.
Die neue Nachbarschaft besteht aus 3 Einfamilienhäusern, die ideal für Familien sind und hervorragend in das Gelände integriert sind: Besonderes Augenmerk wurde auf die Suche nach Privatsphäre zwischen ihnen gelegt, ein Ziel, das durch die Projektart der Ansiedlung erreicht wurde.
Die Häuser erstrecken sich...
Immobiliendetails
- Verfügbar ab
- Nach Vereinbarung
- Zimmer
- 4.5
- Baujahr
- 2025
- Wohnfläche
- 94 m²
- Grundstücksfläche
- 294 m²



