1 / 14

Villa kaufen - Route D'estavayer-Le-Lac, 1489 Murist

5.5 Zimmer • 140 m² • 245 m² Plot
CHF 855’000.-
CHF 6’107 m²

Warum Sie diese Immobilie lieben werden

Hohe Energieeffizienz

Geräumiger Wohnbereich

Überdachter Parkplatz inklusive

Besichtigung vereinbaren

Besichtigung mit Pierre buchen

Pierre Boiteux
Vimova Transactions SA
Diese Beschreibung wurde automatisch von Französisch übersetzt.

5,5-zimmer-villa mit hoher energieeffizienz und garten

Im Kanton Freiburg, im Ort "La Vounaise", 8 Minuten von der Autobahnauffahrt entfernt, profitiert diese neuere Villa von einer besonders ruhigen Umgebung.

Mit modernem Design wurde sie nach den Standards der hohen Energieeffizienz mit einer Luft/Wasser-Wärmepumpe und Solarpanelen zur Warmwasserproduktion gebaut.

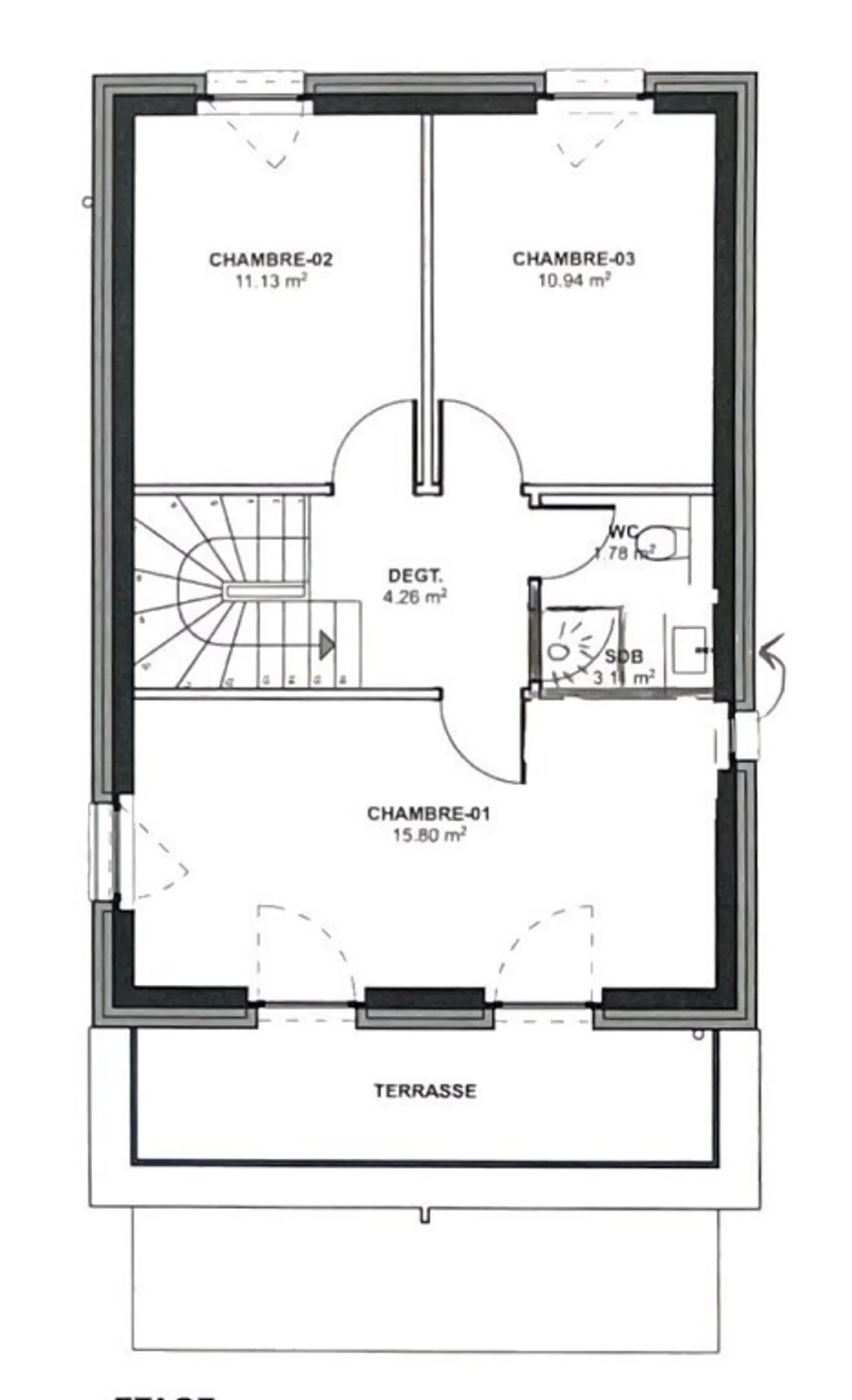
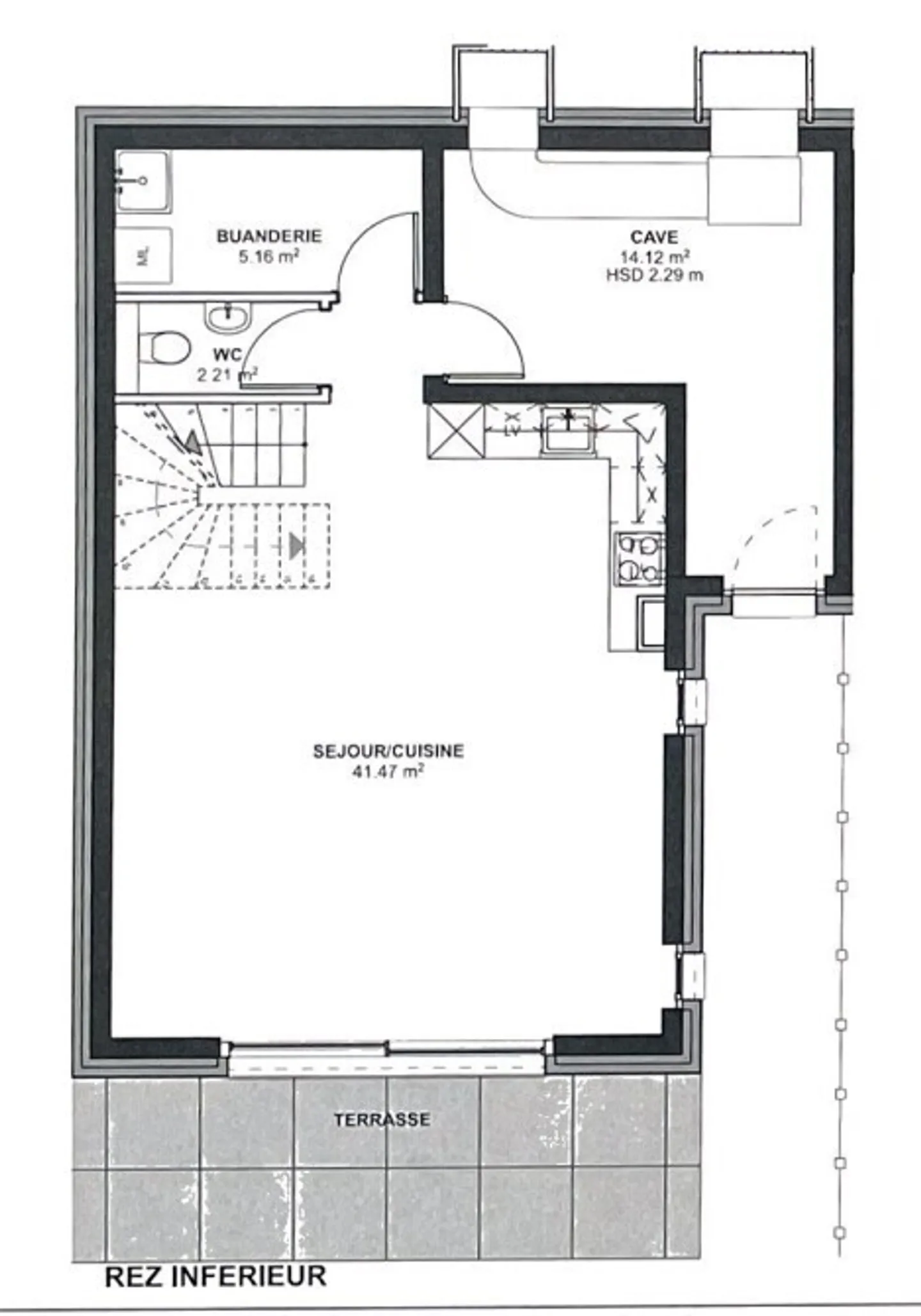
Besonders hell, besteht sie aus einem großen Wohnraum, der zur Terrasse hin offen ist, 4 geräumigen Schlafzimmern, darunter eines mit Ankleidezimmer, zwei Badezimmern, einer Gästetoilett...

Immobiliendetails

Verfügbar ab
Nach Vereinbarung
Zimmer
5.5
Badezimmer
2
Baujahr
2019
Wohnfläche
140
Grundstücksfläche
245

Eigenschaften

Parkplätze
Unverbaubare Aussicht
Waschmaschine
Wäschetrockner

Agentur

Vimova Transactions SA
Adresse:Place Benjamin-Constant 2, 1003, Lausanne
Pierre Boiteux
Ref: 3594077
Online seit
16/10/2025
vor 16 Stunden

Standort

Route D'estavayer-Le-Lac, 1489 Murist