Einfamilienhaus kaufen - La Cantonál, 6678 Coglio
Warum Sie diese Immobilie lieben werden
Geräumige Terrasse zum Entspannen
Hobbyraum für kreative Projekte
Zwei Außenparkplätze
Besichtigung vereinbaren
Besichtigung mit Brown buchen
Einfamilienhaus 4.5 zimmer in ronchini di aurigeno, valle maggia
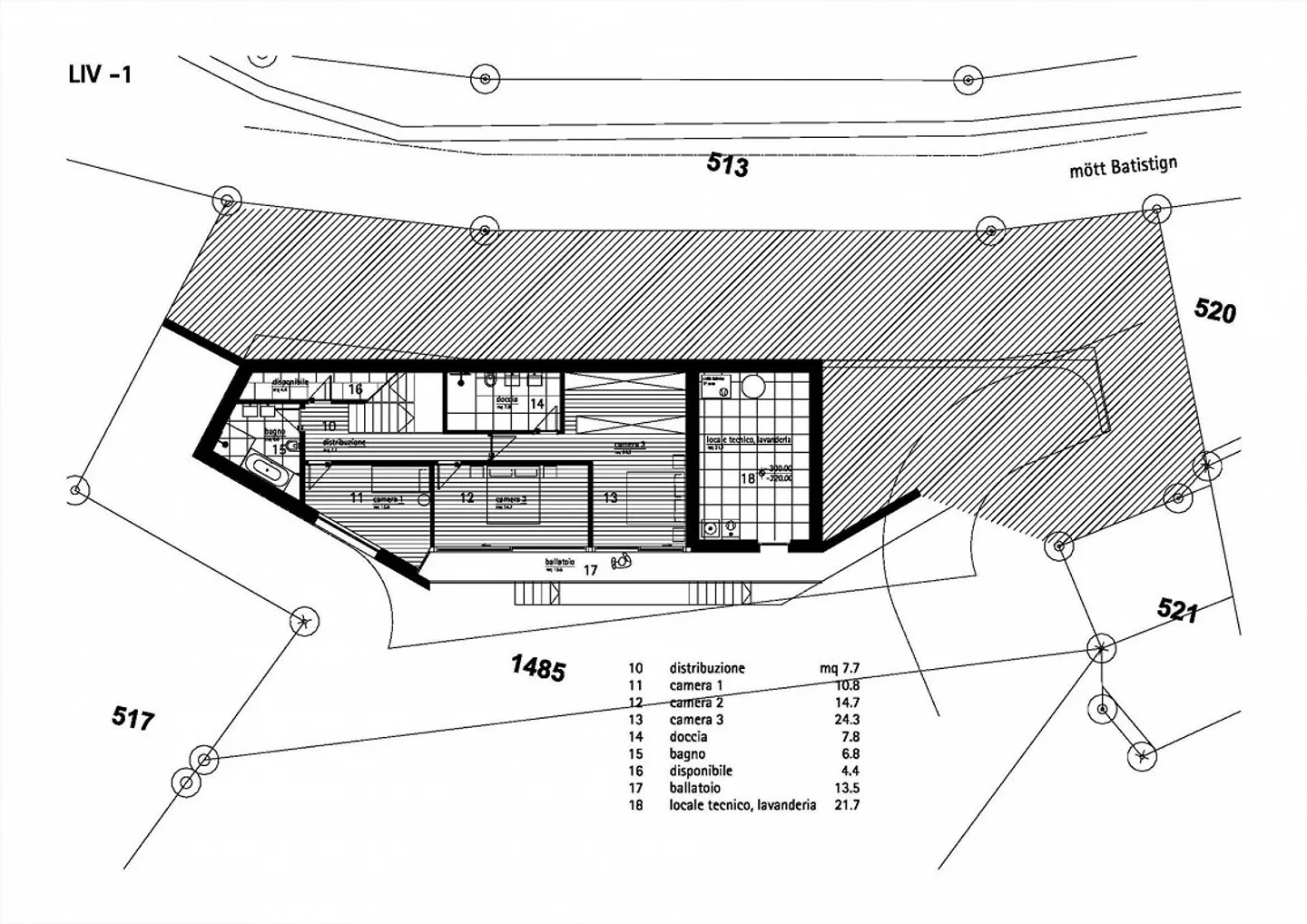
Wir bieten Ihnen dieses moderne 4.5-Zimmer-Haus in Ronchini in Vallemaggia, nur 15 Minuten von Locarno entfernt. 3 Schlafzimmer, 2 Badezimmer, Wohnzimmer mit Küche und Zugang zur Terrasse, Hobbyraum und Waschküche, 2 Außenparkplätze.
Immobiliendetails
- Verfügbar ab
- Nach Vereinbarung
- Zimmer
- 4.5
- Baujahr
- 2026
- Wohnfläche
- 160 m²
- Grundstücksfläche
- 700 m²



