Einfamilienhaus kaufen - Corniche Du Soleil, 3960 Muraz (Sierre)
Warum Sie diese Immobilie lieben werden
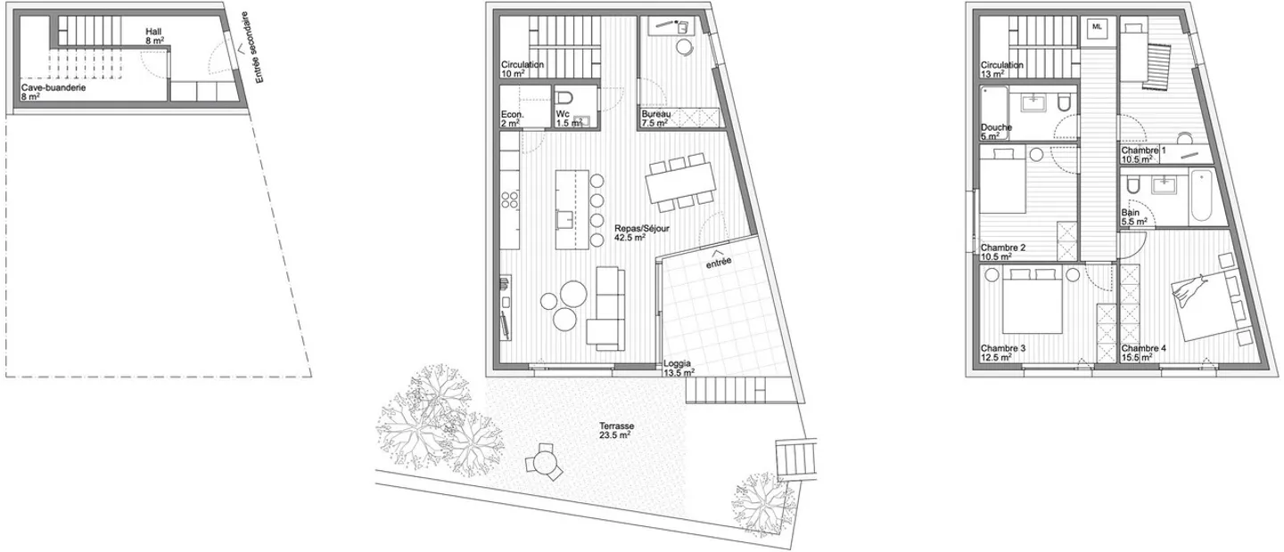
Atemberaubender Alpenblick
Geräumige Außen-Terrassen
Modernes Design mit hochwertigen Materialien
Besichtigung vereinbaren
Besichtigung buchen
«prächtige villa corniche du soleil - sierre»
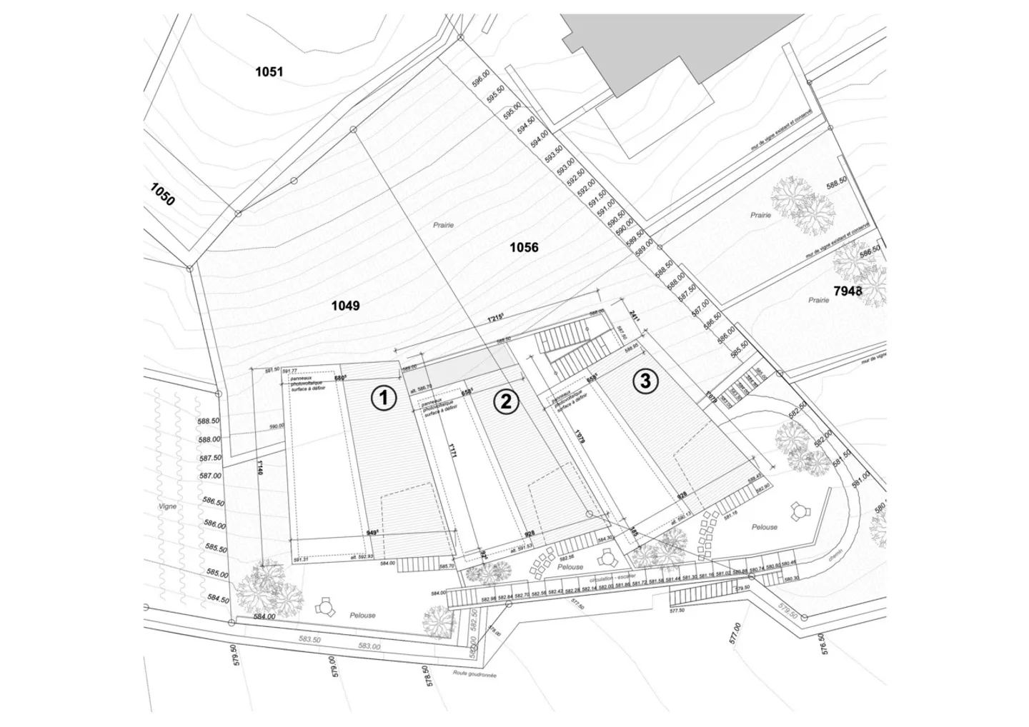
Auf den Höhen von Sierre gelegen, bieten die Villen Corniche du Soleil eine einzigartige Gelegenheit, in einer Umgebung zu leben, die Ruhe, Komfort und einen freien Blick auf die Walliser Alpen vereint. Entworfen und entwickelt vom Architekturbüro GASSER SIGGEN Architectes SA, werden sich diese Villen in einer ruhigen Wohngegend auf einem nach Süden ausgerichteten Grundstück mit optimaler Sonneneinstrahlung befinden. Die Lage dieser Villen bietet einen privilegierten Zugang zu allen Annehmlichke...
Immobiliendetails
- Verfügbar ab
- Nach Vereinbarung
- Zimmer
- 5.5




