Einfamilienhaus kaufen - Badstrasse, 9410 Heiden
Warum Sie diese Immobilie lieben werden
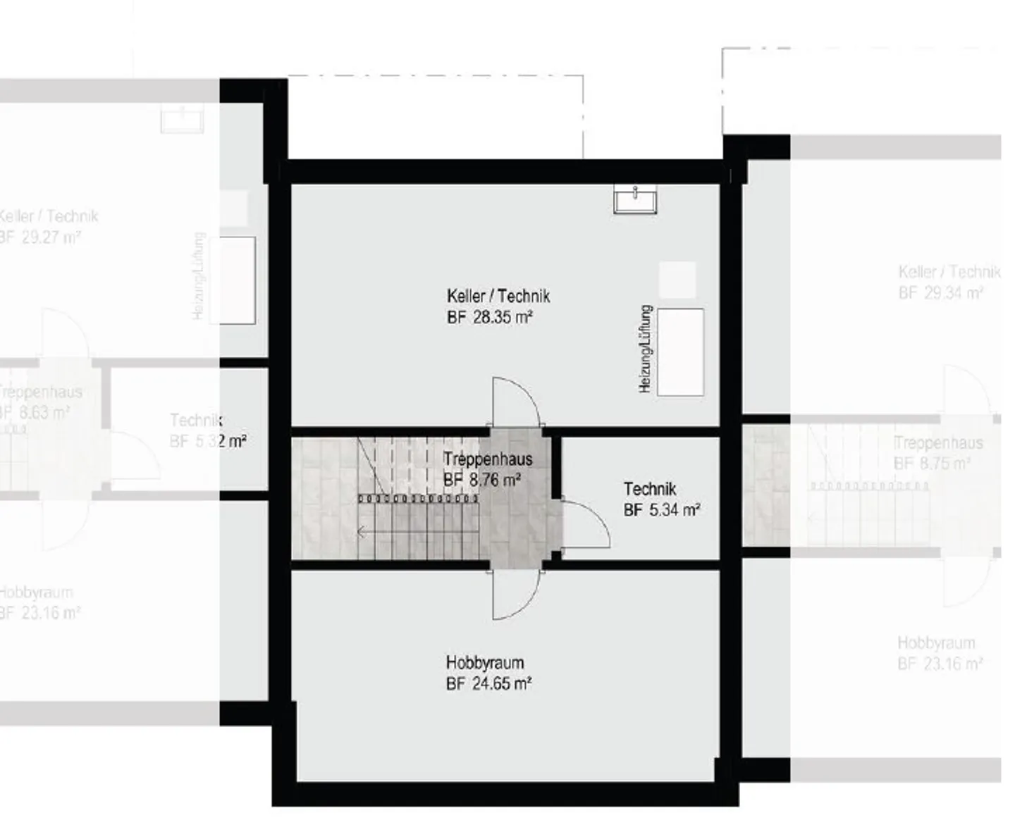
Geräumiger Privatgarten
Moderne offene Küche
Ruhige, familienfreundliche Lage
Besichtigung vereinbaren
Besichtigung mit Theres buchen
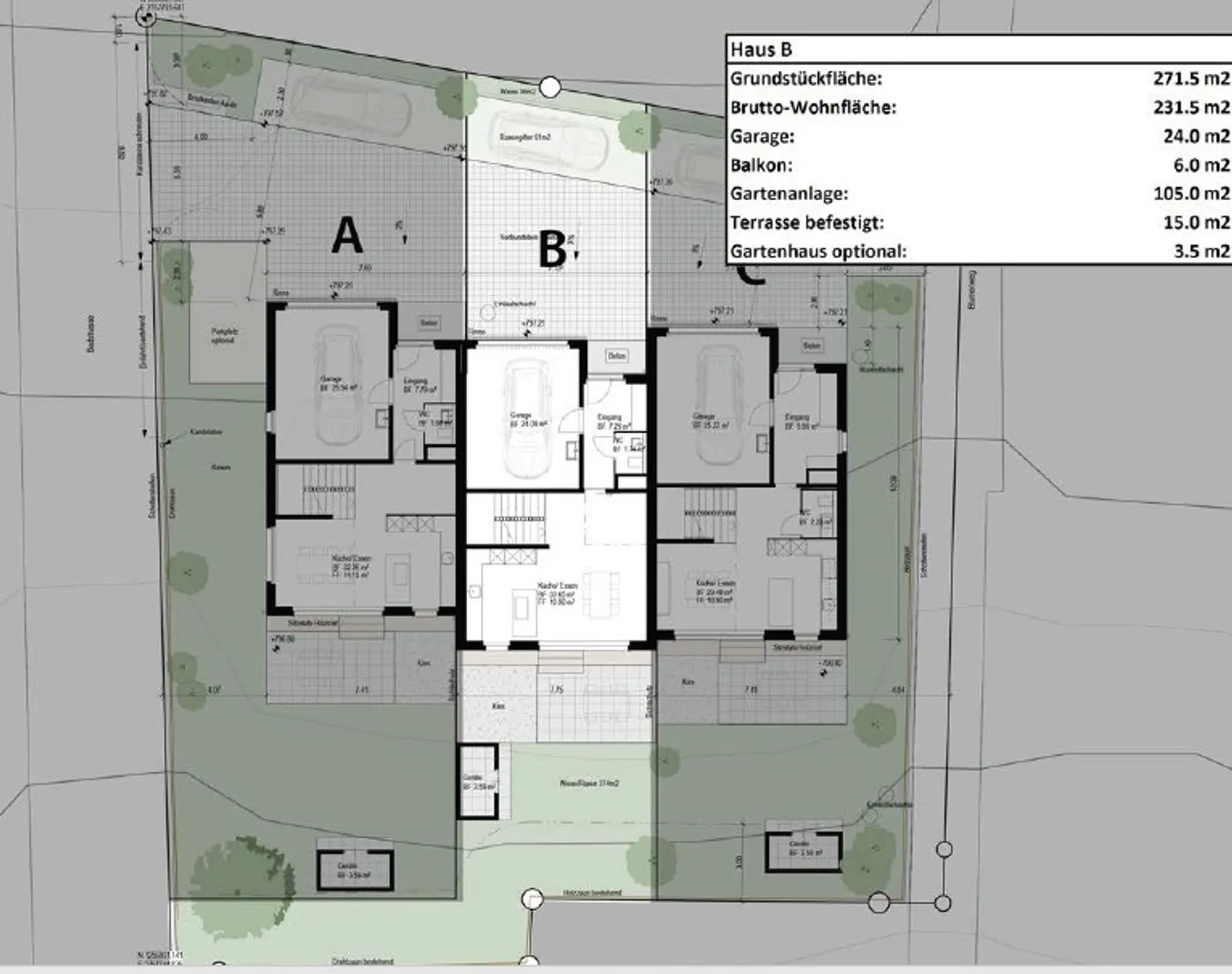
Heiden: Neubau 5.5-Zimmer-Mittelhaus will entdeckt werden
Entdecken Sie an der Badstrasse, im Zentrum von Heiden unser attraktives,
grosszügiges 5.5-Zimmer Mittelhaus, Baujahr 2023, mit südlichem Flair, eigenem Garten und Gartenhaus
an sehr ruhiger, kinderfreundlicher Lage, in 30-er Zone, Nähe Zentrum und Schulen.
* _Bruttowohnfläche 231.5 m2_
* _Grundstückfläche 271.5 m2_
* _idyllischer Sitzplatz_
* _offene, topmoderne Küche mit Essbereich, mit Zugang zu Garten_
* _im OG: viel Ruhe und Rückzugsmöglichkeiten:_ _grosse Kinderzimmer und separates Bad_
* _Grosszü...
Immobiliendetails
- Verfügbar ab
- Nach Vereinbarung
- Zimmer
- 5.5
- Baujahr
- 2023
- Wohnfläche
- 232 m²
- Grundstücksfläche
- 272 m²




