Einfamilienhaus kaufen - 7514 Sils/Segl Maria
Warum Sie diese Immobilie lieben werden
Atemberaubende Aussicht auf Silsersee
Wellnessbereich mit Sauna
Designer-Küche mit Weinkühler
Besichtigung vereinbaren
Besichtigung buchen
Chalet
In Sils lassen wir Ihre Wohnträume wahr werden. An absoluter Toplage und mit einmaliger Aussicht auf die Silser Ebene verkaufen wir dieses Chalet der Extraklasse.
Ein exklusives und beeindruckendes Angebot für Käufer mit höchsten Ansprüchen, die das Beste aus Luxus und Natur in einem gemütlichen Rückzugsort suchen.
Es handelt sich um einen einzigartigen ERSTWOHNSITZ im Seglias Quartier.
Mit architektonischem Schick und einem gehobenen Qualitäts-Standard wurde hier ein geschmackvolles Chalet geschaf...
Immobiliendetails
- Verfügbar ab
- Nach Vereinbarung
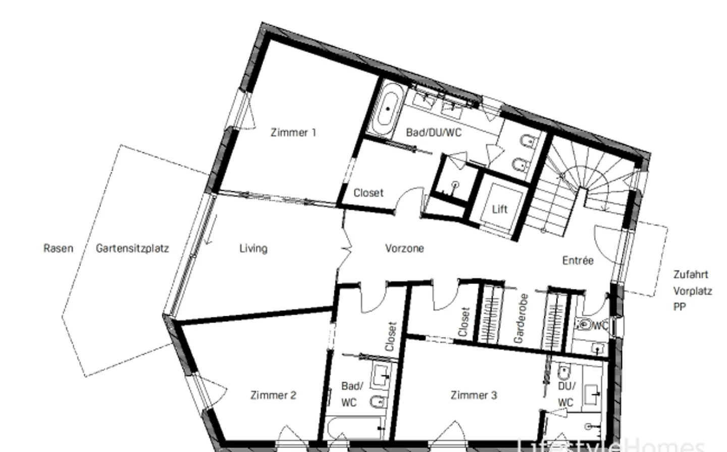
- Zimmer
- 6.5
- Wohnfläche
- 445 m²
- Grundstücksfläche
- 1655 m²



