Einfamilienhaus kaufen - 7270 Davos Platz
Warum Sie diese Immobilie lieben werden
Unabhängiger Wohnraum
Grosszügige Aussenflächen
Beeindruckende Bergsicht
Besichtigung vereinbaren
Besichtigung mit Damian buchen
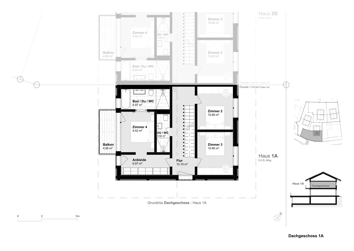
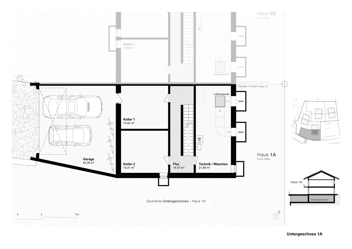
5.5-zimmer-doppeleinfamilienhaus als hochwertiger erstwohnsitz (3c) in davos wiesen
Die Siedlung MARIELLA
Die Konzeption der Siedlung MARIELLA ist auf maximale Eigenständigkeit ausgelegt.
Jedes Doppeleinfamilienhaus besteht aus zwei Einheiten mit je 5.5 Zimmern. Eine eigenständige Hausinfrastruktur, grosszügige Nebenräume sowie das eigene Grundstück mit komfortabler Parkierung gewährleisten Unabhängigkeit und Raum für individuelle Gestaltung.
Die Siedlung besteht aus den Haustypen <> (Haus 1A - 4D) und <> (Haus 5E - 8H). Die Erstellung der Siedlung wird gemäss Verkaufs...
Immobiliendetails
- Verfügbar ab
- Nach Vereinbarung
- Zimmer
- 5.5
- Baujahr
- 2026
- Grundstücksfläche
- 396 m²



