Einfamilienhaus kaufen - Illharterstrasse 7, 8556 Lamperswil TG
Warum Sie diese Immobilie lieben werden
Hochwertige Massivbauweise
Moderne Küche mit Geräten
Energieeffizientes Heizsystem
Besichtigung vereinbaren
Besichtigung mit J. buchen
Wigoltingen
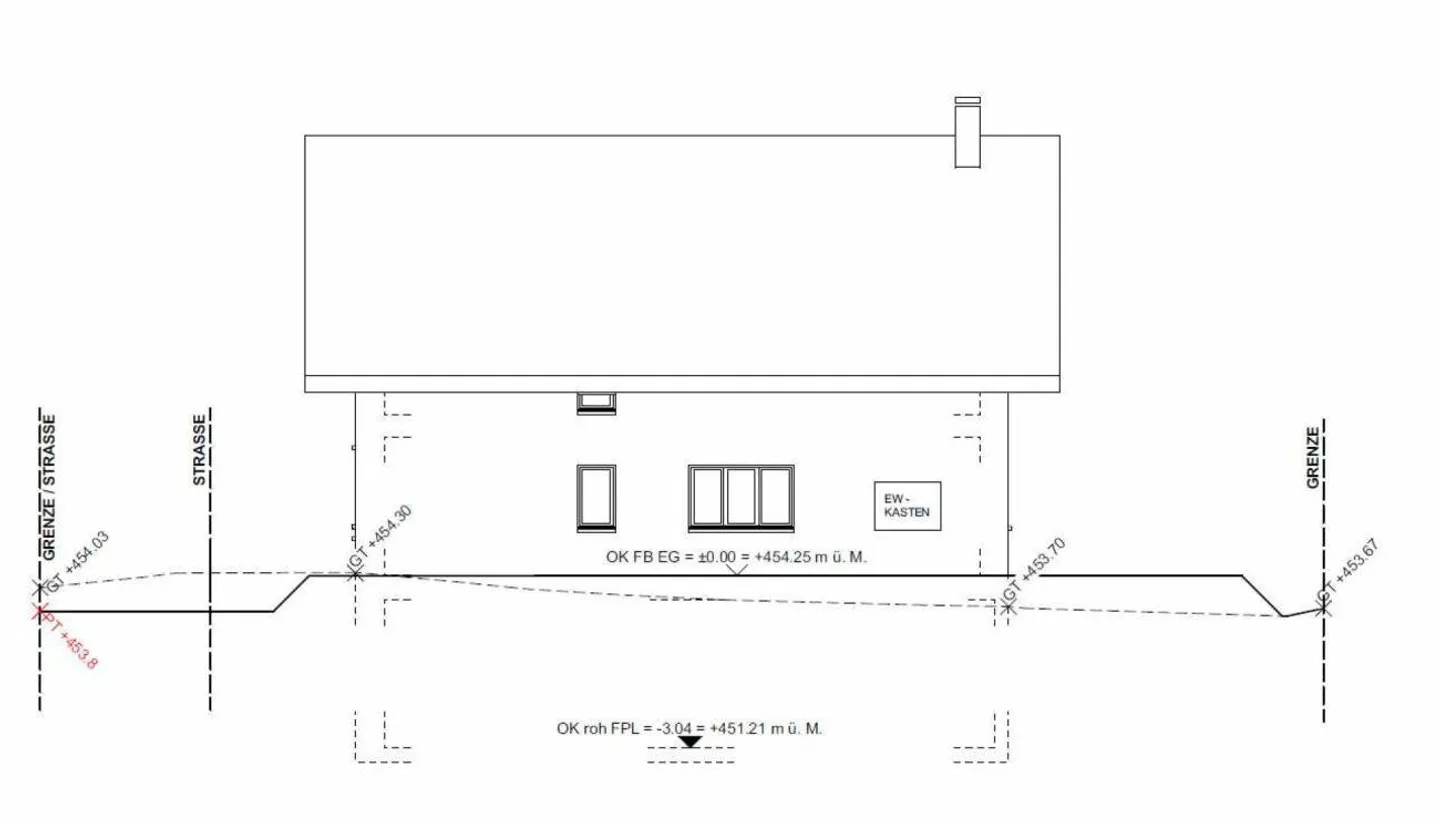
Zu verkaufen an der Illharterstrasse in 8556 Lamperswil bei Wigoltingen am Südhang.
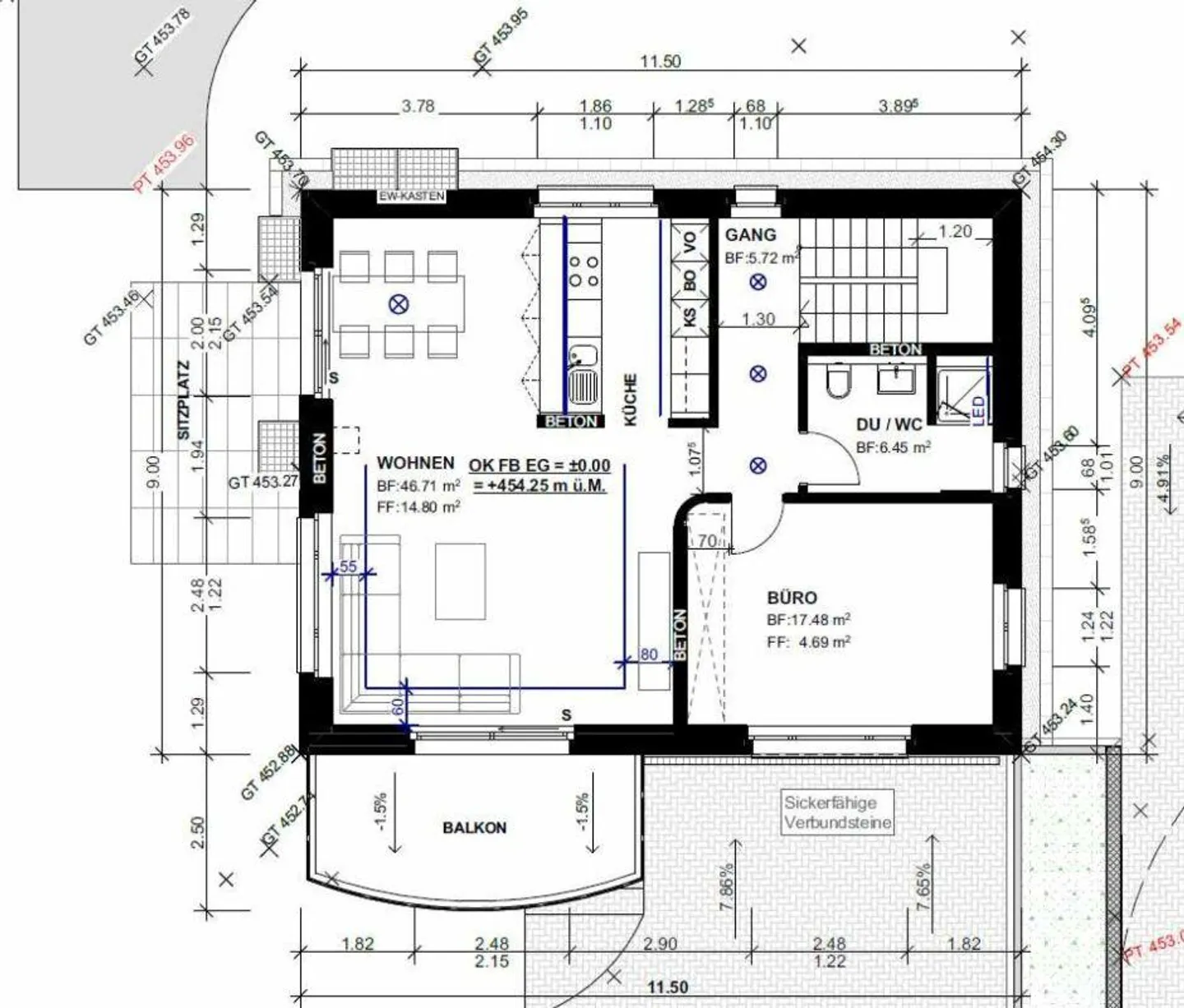
Neues freistehendes 6½ Zi.-EFH
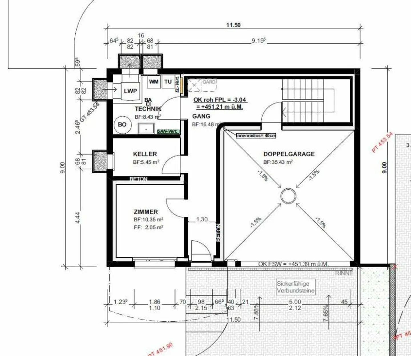
Bauart, Massivbau:
Die Aussenwände sind 48 cm stark mit Doppelschalen-Backstein und 20 cm Mineralwolle dazwischen. Der Verputz der Backsteine ist innen und aussen aus Mineral-Verputz Dies ergibt ein gesundes und sehr angenehmes Wohnklima im Sommer wie im Winter. Das Haus ist massiv gebaut, mit Erdbebenschutz
Innenausbau:
Top Einteilung, Treppen mit Zwischenpodest. Das Haus ist...
Immobiliendetails
- Verfügbar ab
 - Nach Vereinbarung
 - Zimmer
 - 6.5
 - Baujahr
 - 2026
 - Grundstücksfläche
 - 191 m²
 



