Höhlenhaus kaufen - 6900 Lugano
Warum Sie diese Immobilie lieben werden
Atemberaubender Seeblick
Zwei geräumige Terrassen
Privater Gartenbereich
Besichtigung vereinbaren
Besichtigung buchen
5 1/2-Zimmer-Villa mit Panoramaseeblick
Località: 6900 Lugano-Paradiso, Via Boggia 19
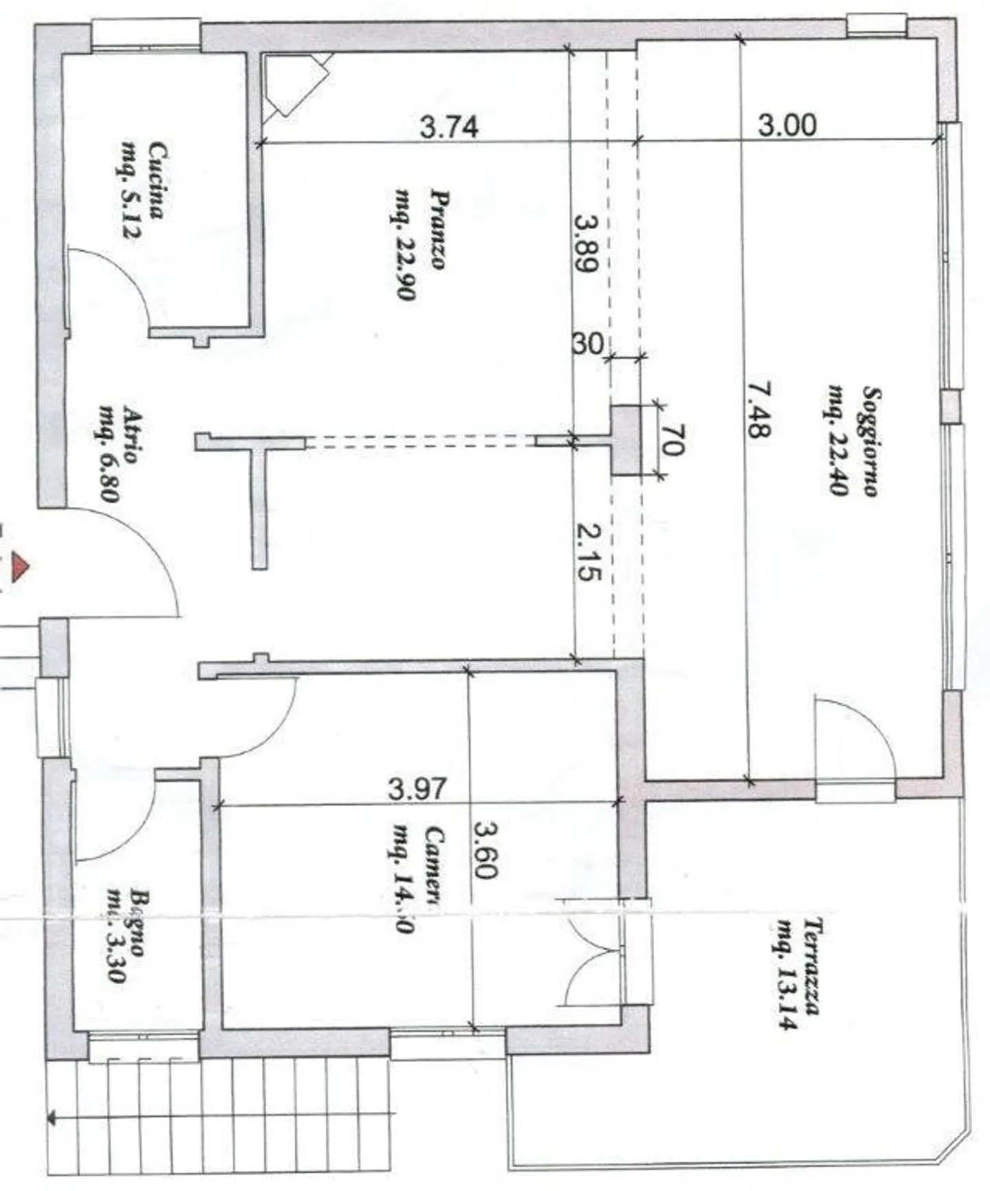
Tipo dell'immobile: villa di 5 ½ locali con bellissima vista lago
Superficie abitabile: ca. 130 m2
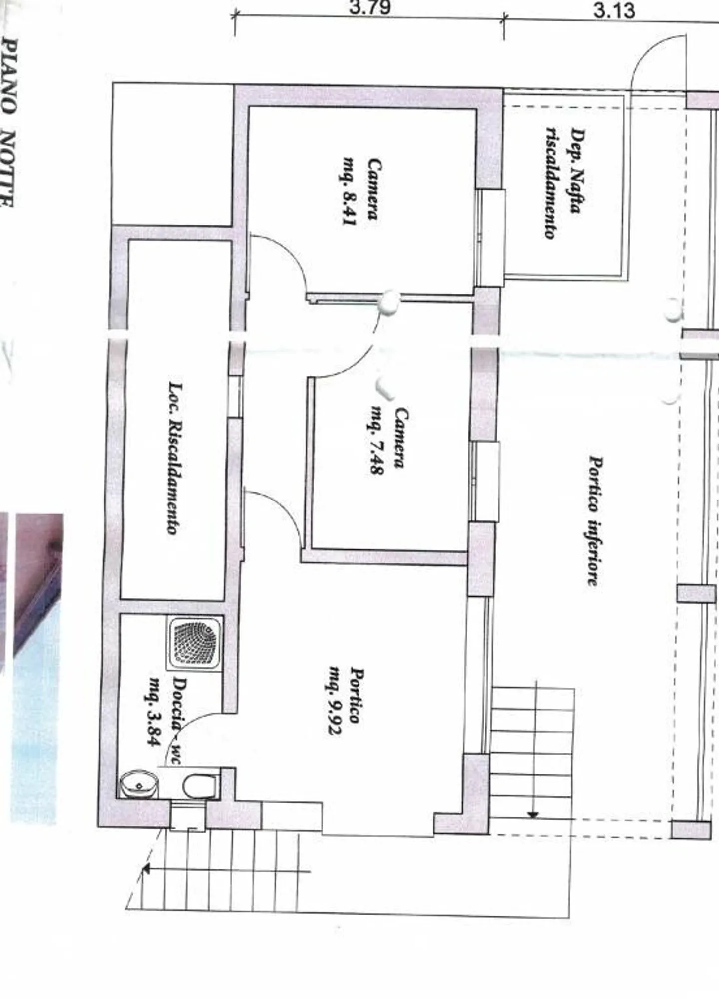
Terrazza: 2
Anno di costruzione: 1953
Ristrutturazione: 1993
Locali: 5
Terrazze: 2
Posteggi: garage e posteggi esterni
Riscaldamento: nafta
Abitazione secondaria: si
Posizione: bellissima vista sul lago
Vista lago: si
Scuole: si
Possibilità d'acquisti: si
Mezzi pubblici: si
Distanza prossima città: 2 km
Distanza autostrada: 1km
Descrizione dell'immo...
Immobiliendetails
- Verfügbar ab
- Nach Vereinbarung
- Zimmer
- 5.5
- Baujahr
- 1953
- Wohnfläche
- 130 m²
- Grundstücksfläche
- 665 m²



