1 / 12

Einfamilienhaus kaufen - 6863 Besazio

5.5 Zimmer • 120 m² • 328 m² Plot
CHF 750’000.-
CHF 5’725 m²

Warum Sie diese Immobilie lieben werden

Privater Garten von 200 m²

Gemütlicher Kamin im Wohnzimmer

Helle Zimmer mit Klimaanlage

Besichtigung vereinbaren

Besichtigung buchen

Metropolis Immobiliare
Diese Beschreibung wurde automatisch von Italienisch übersetzt.

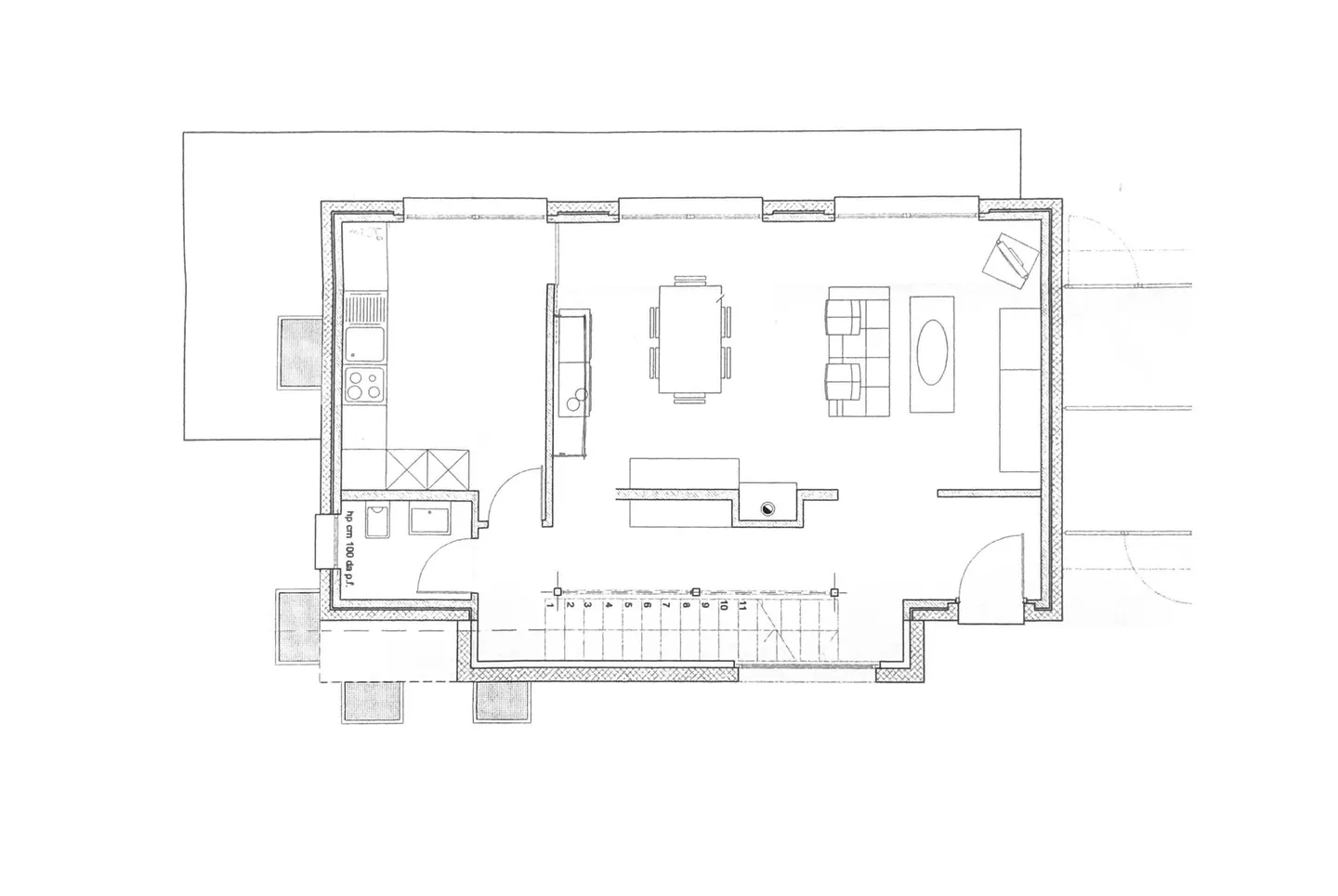
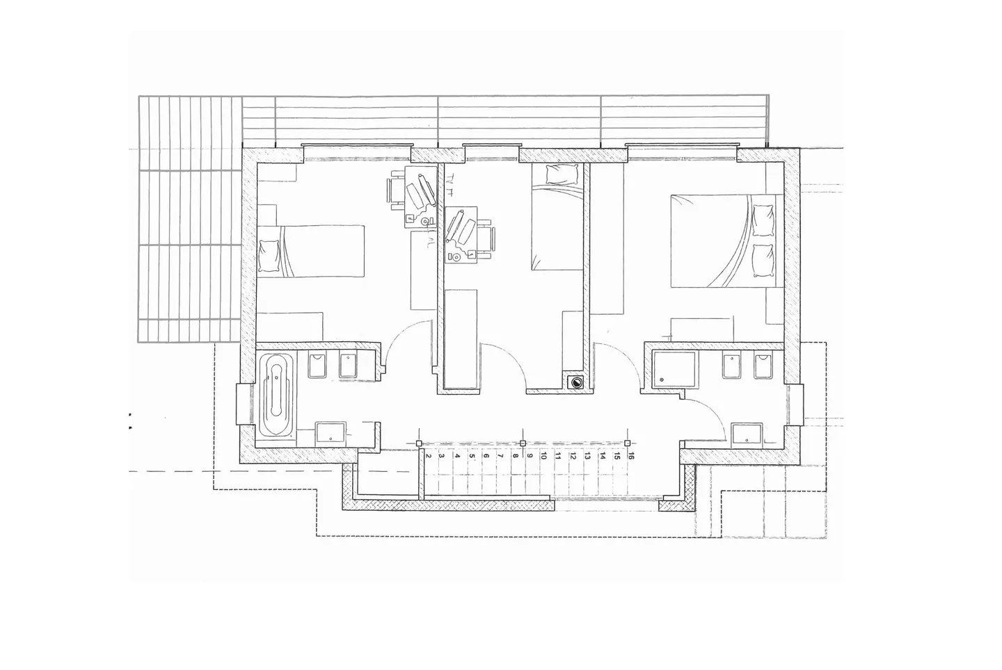
Geräumige villa 5.5 zimmer mit kamin und garten in besazio

Schöne unabhängige Villa, die sich in einem kleinen Komplex von 4 Zwillingshäusern befindet, die 2006 in Besazio erbaut wurden, mit privatem Garten und gemeinsamer Garage.

Das Haus blickt auf den 200 m² großen Privatgarten, der flach und gut zur Sonne ausgerichtet ist, mit einem Terrassenbereich und einem Pavillon, der von der Küche aus zugänglich ist.

Diese schöne Villa verfügt über 5.5 Zimmer mit insgesamt ca. 130 m² Bruttoraum, verteilt auf zwei Wohnniveaus und ein Niveau mit einem beheizten Ho...

Immobiliendetails

Verfügbar ab
Nach Vereinbarung
Zimmer
5.5
Baujahr
2006
Wohnfläche
120
Nutzfläche
131
Grundstücksfläche
328

Eigenschaften

Garage
Rollstuhlgerecht
Haustiere erlaubt

Interessante Orte in der Nähe

Öffentlicher Verkehr - 0 km
Läden - 0.5 km
Kindergarten - 2 km
Primarschule - 2 km
Oberstufenschule - 4 km

Agentur

Metropolis Immobiliare
Metropolis Immobiliare
Adresse:Via Cantonale, 43, 6928, Manno, CH
(175 reviews)
Ref: RP-7159-9909
Online seit
15/10/2025
vor 15 Stunden

Standort

6863 Besazio