Einfamilienhaus kaufen - 6833 Vacallo
Warum Sie diese Immobilie lieben werden
Zugang zum privaten Garten
Moderne offene Küche
Ruhige Wohngegend
Besichtigung vereinbaren
Besichtigung buchen
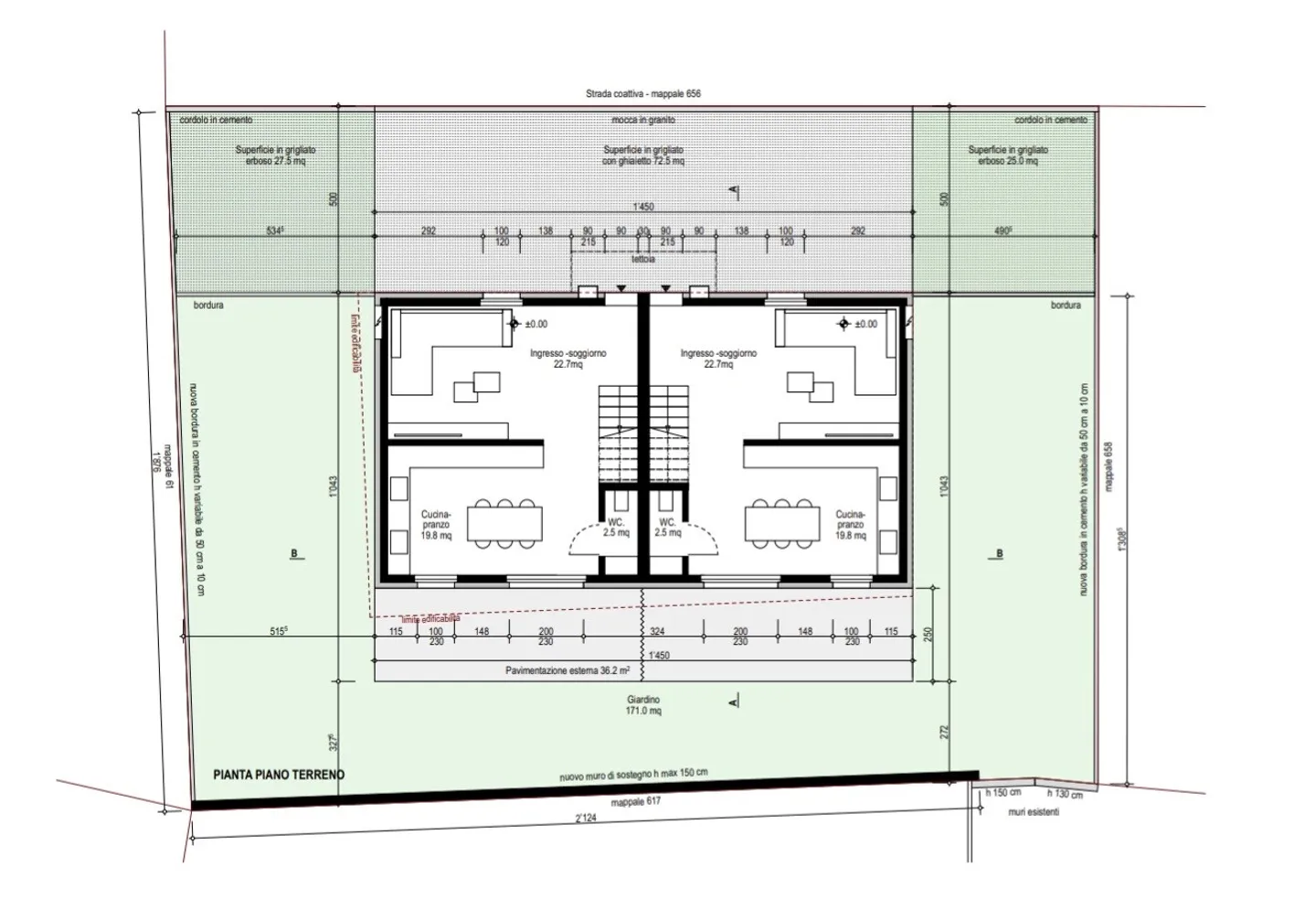
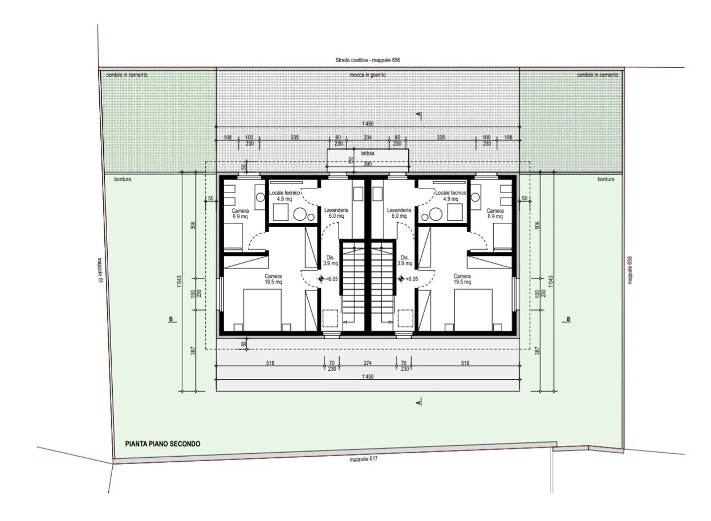
ELEGANTE EINFAMILIENHAUS-DOPPELT MIT GARTEN IN VACALLO
In einer ruhigen Wohngegend von Vacallo bieten wir zum Verkauf zwei moderne Doppelhaushälften, jede ca. 115 m² brutto, in einem eleganten neu gebauten Zweifamilienhaus an.
Die Wohnungen sind unabhängig, jede mit einem privaten Eingang, einem exklusiven Garten und zwei bereits im Preis enthaltenen Außenparkplätzen.
Die Lage garantiert eine gute Sonnenexposition, Privatsphäre und einen einfachen Zugang zu allen wichtigen Dienstleistungen.
Eine ideale Lösung für Familien oder für diejenigen, die ein m...
Immobiliendetails
- Verfügbar ab
- 01.05.2026
- Zimmer
- 4.5
- Baujahr
- 2025
- Wohnfläche
- 115 m²
- Nutzfläche
- 115 m²
- Grundstücksfläche
- 215 m²




