Einfamilienhaus kaufen - 6817 Maroggia
Warum Sie diese Immobilie lieben werden
Atemberaubende Panoramaterrasse
Direkter Zugang zum See
Smart-Home-Technologie
Besichtigung vereinbaren
Besichtigung mit Stabile buchen
Exklusives Seeblick-Villa 4.5 mit Bootsliegeplatz in Maroggia
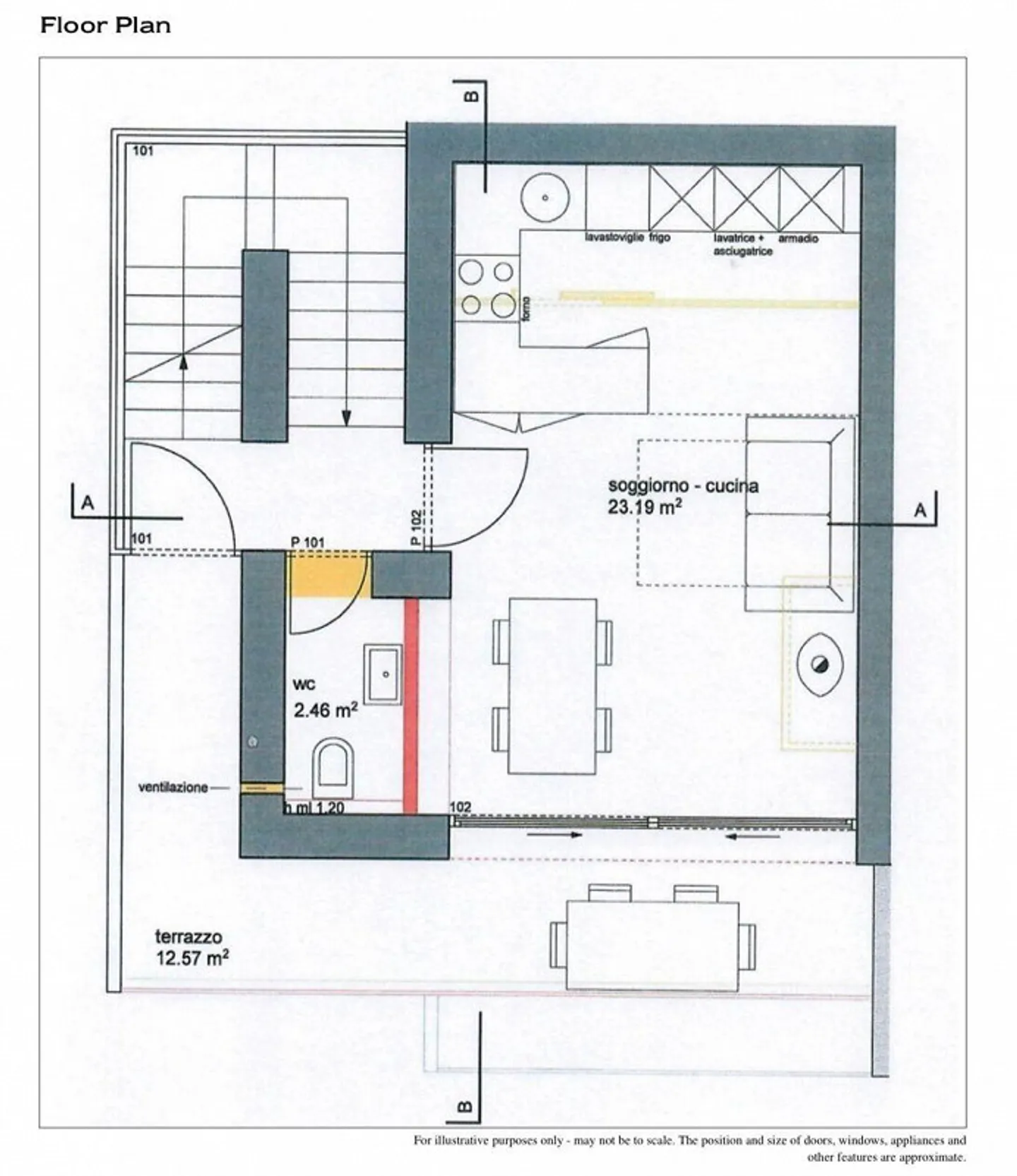
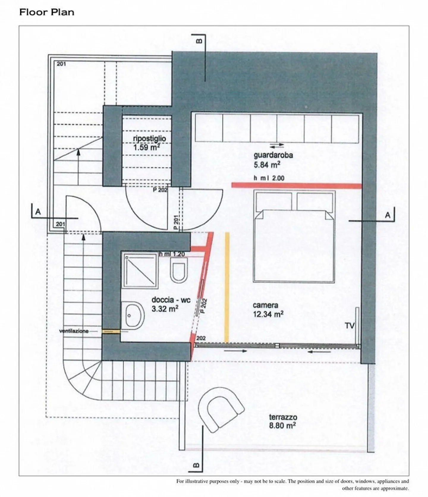
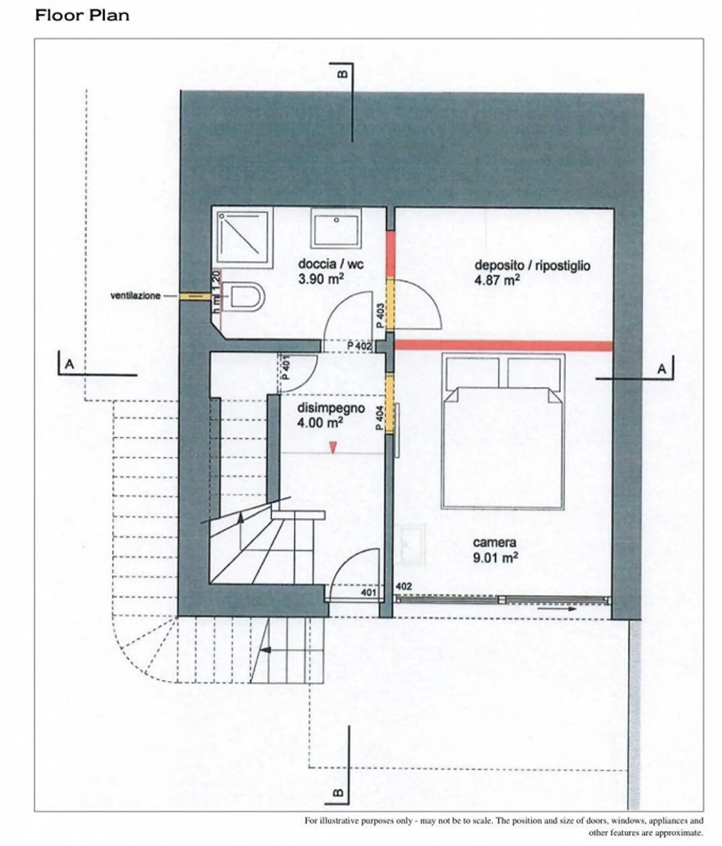
Exklusives Villen-Anwesen mit 4.5 Zimmern auf 120 m², Dachterrasse mit Panoramablick von 30 m² und Seeblick-Terrasse von 55 m² mit direktem Zugang zum See, Bootsanleger und Liegeplatz in Maroggia.
Eine seltene und raffinierte Residenz, eingebettet zwischen den Hügeln und den kristallklaren Gewässern des Luganer Sees. Komplett renoviert im Jahr 2010, vereint sie den Charme der ursprünglichen Architektur von 1975 mit dem Komfort modernster Wohntechnologien.
Perfekt als erstes Wohnhaus, charmantes ...
Immobiliendetails
- Verfügbar ab
- 23.07.2025
- Zimmer
- 4.5
- Baujahr
- 1975
- Wohnfläche
- 162 m²
- Nutzfläche
- 162 m²
- Grundstücksfläche
- 108 m²



