Einfamilienhaus kaufen - 6817 Maroggia
Warum Sie diese Immobilie lieben werden
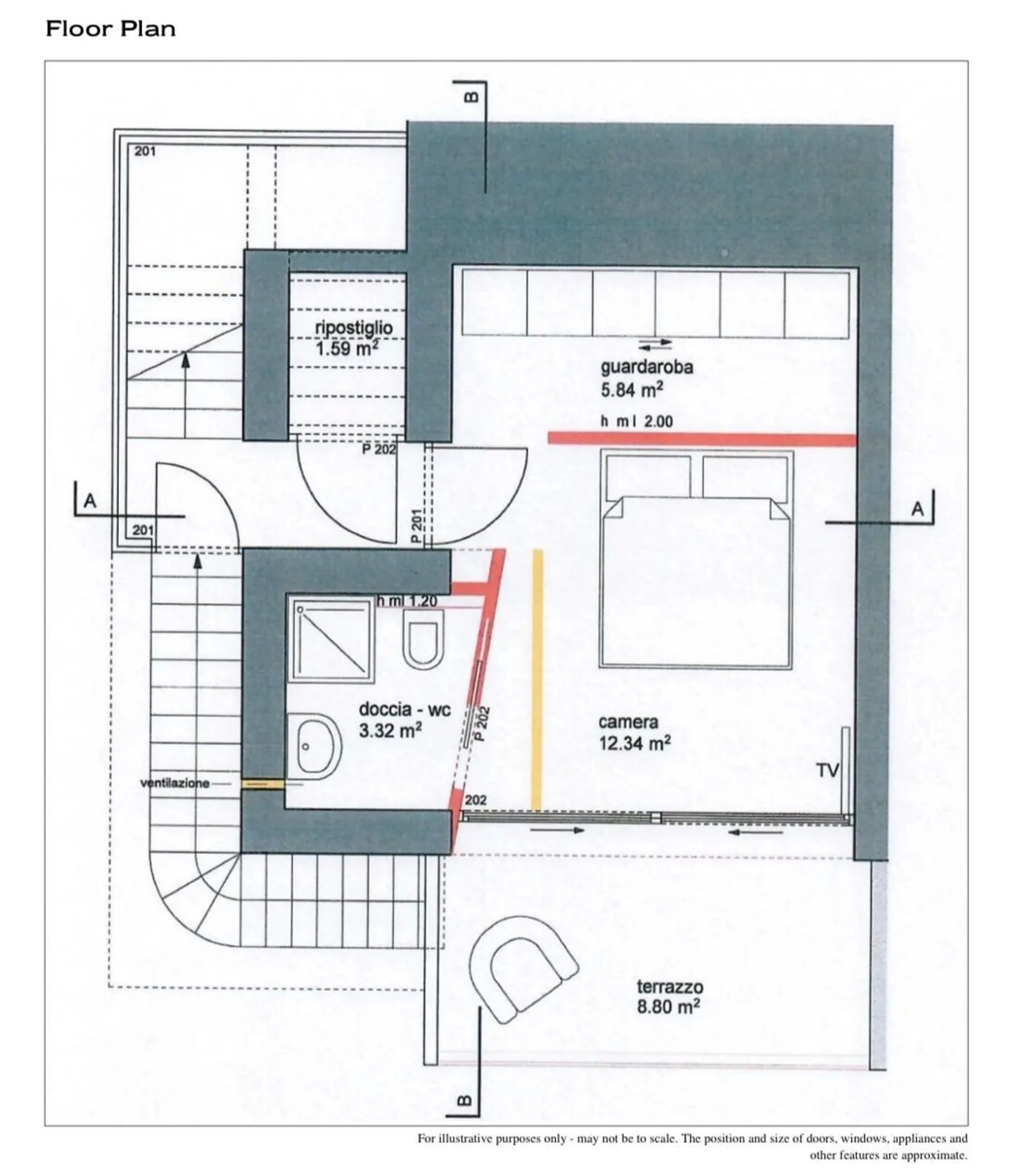
Panoramaterrasse
Direkter Zugang zum See
Smart-Home-Technologie
Besichtigung vereinbaren
Besichtigung buchen
Exklusive villa mit 4,5 zimmern und zugang zum see in maroggia
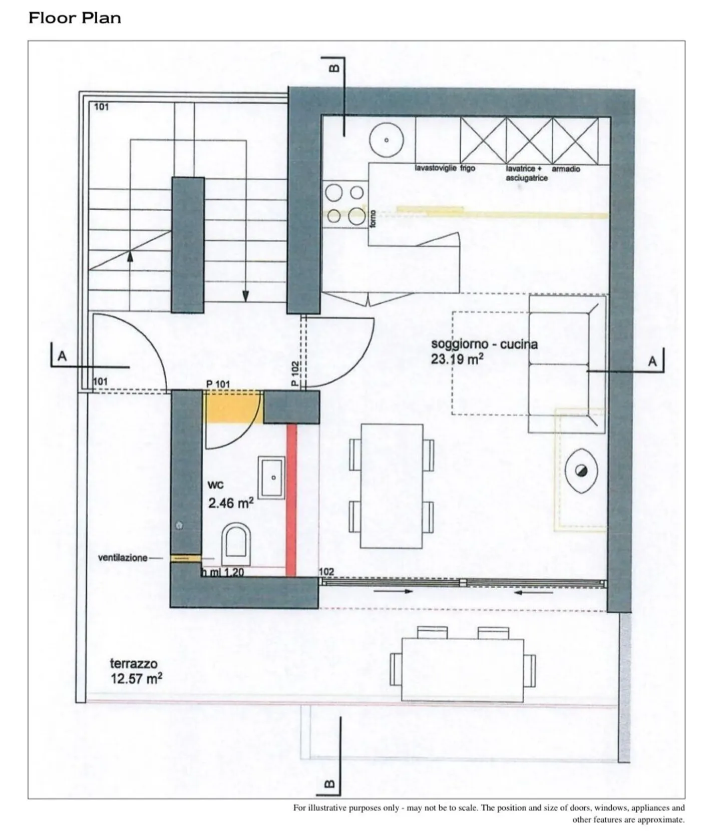
Exklusive Villa mit 4,5 Zimmern auf 120 m² mit einem Panoramadachgarten von 30 m² und einer Seeterrasse von 55 m² mit direktem Zugang zum See, Bootsanleger und Sonnenliege in Maroggia.
Eine seltene und raffinierte Residenz, eingebettet zwischen den Hügeln und dem kristallklaren Wasser des Luganersees. 2010 komplett renoviert, vereint sie den Charme der ursprünglichen Architektur von 1975 mit dem Komfort der modernsten Wohntechnologien.
Perfekt als prestigeträchtige Hauptresidenz, charmantes Ferien...
Immobiliendetails
- Verfügbar ab
- 23.07.2025
- Zimmer
- 4.5
- Baujahr
- 1975
- Wohnfläche
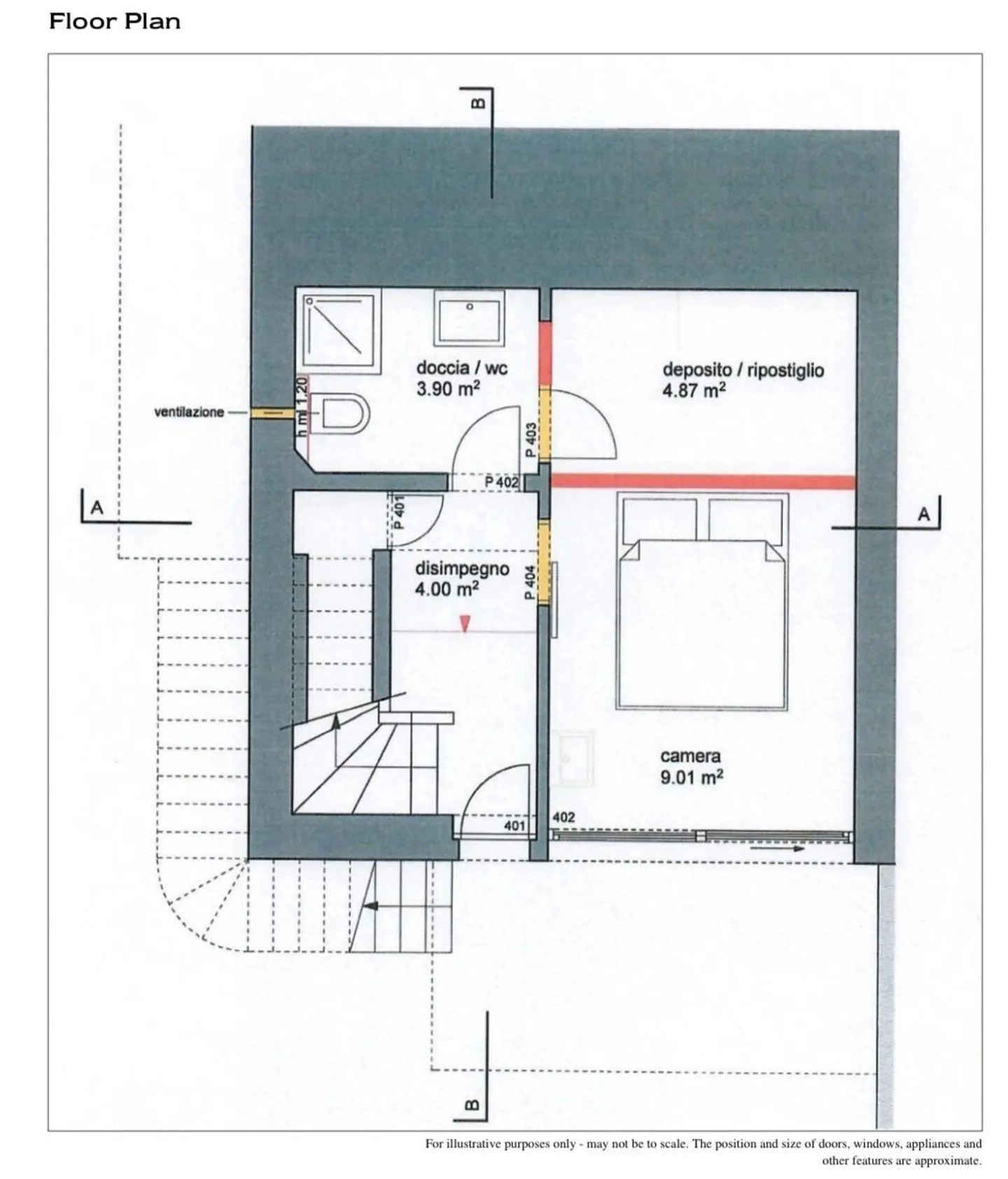
- 162 m²
- Nutzfläche
- 162 m²
- Grundstücksfläche
- 108 m²




