Einfamilienhaus kaufen - 6817 Maroggia
Warum Sie diese Immobilie lieben werden
Panoramatische Dachterrasse
Direkter Zugang zum See
Smart-Home-Technologie
Besichtigung vereinbaren
Besichtigung buchen
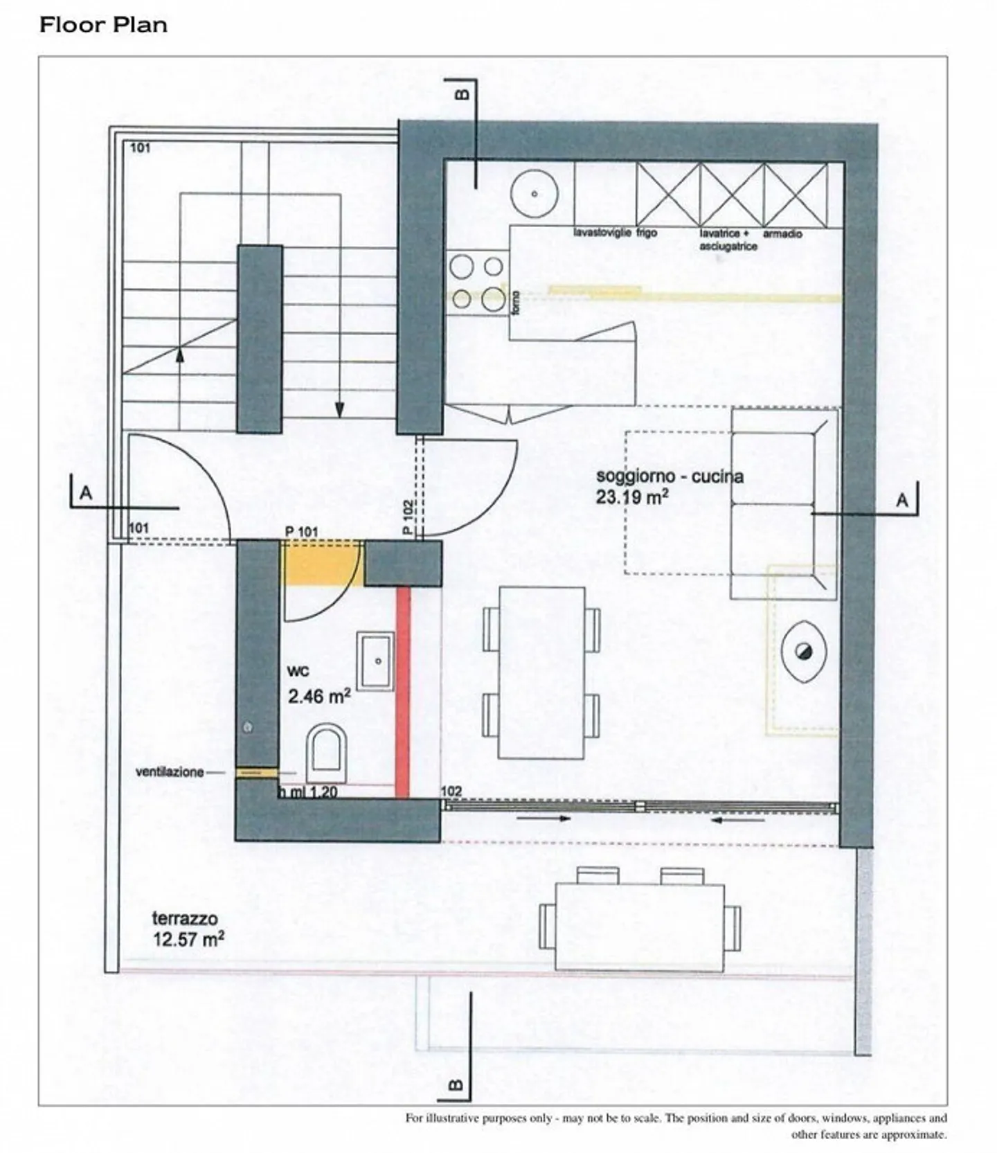
VILLA ESCLUSIVA FRONTE LAGO 4.5 CON POSTO BARCA A MAROGGIA
Esclusiva villa di 4.5 locali su 120 mq con rooftop panoramico di 30 mq e terrazza fronte lago di 55 mq con accesso diretto al lago, attracco barca e prendisole a Maroggia.
Una residenza rara e raffinata, incastonata tra le colline e le acque cristalline del Lago di Lugano. Completamente rinnovata nel 2010, unisce il fascino dell'architettura originale del 1975 al comfort delle più moderne tecnologie abitative.
Perfetta come prima residenza di prestigio, seconda casa di charme o come investimento...
Immobiliendetails
- Verfügbar ab
- Nach Vereinbarung
- Zimmer
- 4.5
- Baujahr
- 1975
- Wohnfläche
- 162 m²
- Grundstücksfläche
- 108 m²



