1 / 11

Einfamilienhaus kaufen - 6763 Mairengo

4.5 Zimmer • 142 m² • 350 m² Plot • Erdgeschoss
CHF 668’000
CHF 4’704 m²

Warum Sie diese Immobilie lieben werden

Atemberaubender Bergblick

Privater Gartenbereich

Hochwertige Bauweise

Besichtigung vereinbaren

Besichtigung mit Rosa buchen

Rosa Maria Giannini
Properti AG

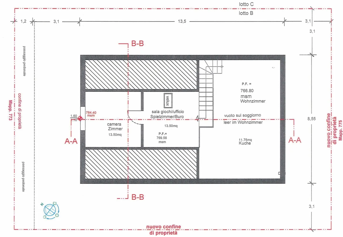
Neubau in Faido - Einfamilienhaus mit 4,5 Zimmern, Garten und Bergblick

Innerhalb eines neuen Immobilienprojekts, das aus nur drei Wohneinheiten besteht, bieten wir ein unabhängiges Einfamilienhaus zum Verkauf an, mit geplanter Fertigstellung bis Ende 2025.

Jede Wohneinheit verfügt über eigene Außenparkplätze und eine Garantie von über 6 Metern Abstand zwischen den Eigentümern, um die Privatsphäre und die Qualität des Wohnens zu schützen.

Das Objekt, (LOTTO A) eingebettet in die Natur und mit optimaler Sonneneinstrahlung, bietet eine atemberaubende Aussicht auf die Be...

Immobiliendetails

Verfügbar ab
Nach Vereinbarung
Zimmer
4.5
Baujahr
2025
Wohnfläche
142
Grundstücksfläche
350

Eigenschaften

Parkplätze
Haustiere erlaubt

Agentur

Properti AG
Adresse:Flurstrasse 62, 8048, Zurich
Ref: a00Vj00000IXlvSIAT_05JB6
Online seit
22/05/2025
vor 9 Monaten

Standort

6763 Mairengo