Einfamilienhaus kaufen - 6710 Biasca
Warum Sie diese Immobilie lieben werden
Historischer Charme erwartet Sie
Geräumiger Dachboden für Kreativität
Vielseitiger Hobbyraum inklusive
Besichtigung vereinbaren
Besichtigung buchen
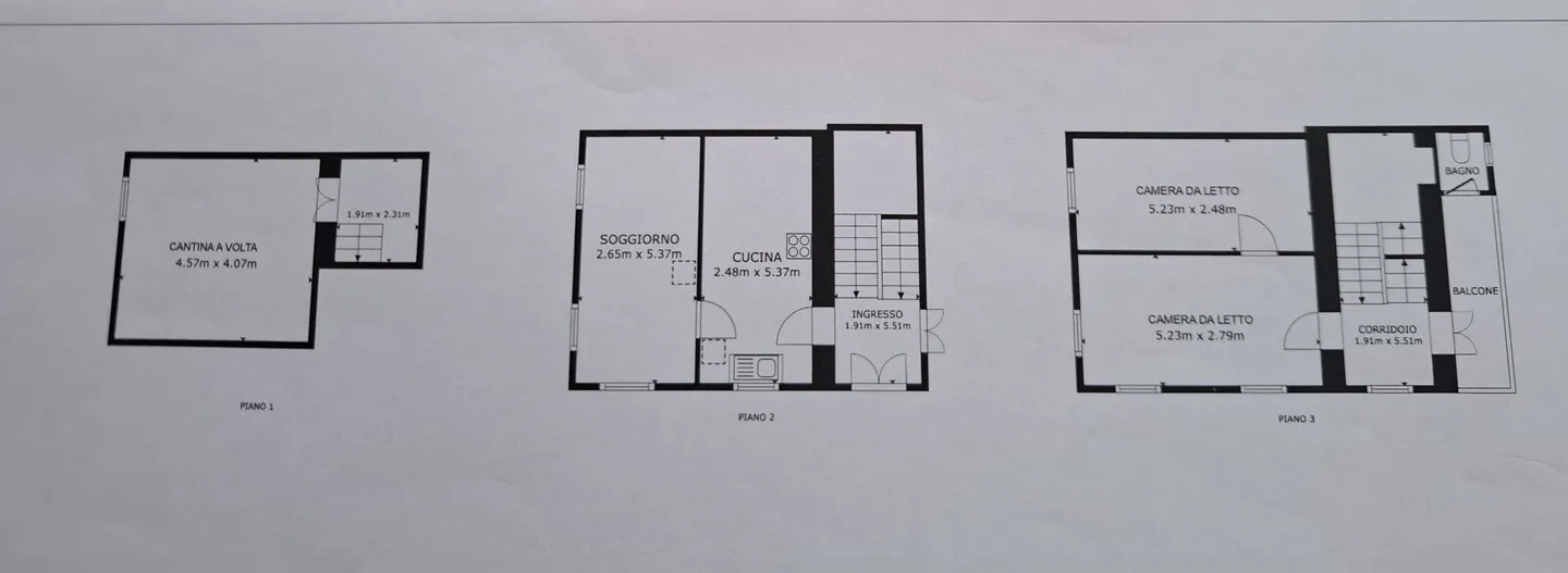
HAUS ZU RENOVIEREN IM HERZEN VON BIASCA
Im malerischen historischen Zentrum von Biasca, nur wenige Schritte von allen wichtigen Dienstleistungen und Annehmlichkeiten entfernt, bieten wir zum Verkauf ein charakteristisches Tessiner Haus, das vollständig renoviert werden muss, ideal für diejenigen, die ein maßgeschneidertes Wohnprojekt realisieren möchten.
Die Immobilie erstreckt sich über ca. 200 m², verteilt auf drei Ebenen, zusätzlich zu einem geräumigen Dachboden und einem praktischen Keller, insgesamt 7,5 Zimmer. Die großzügigen Räu...
Immobiliendetails
- Verfügbar ab
- 06.03.2026
- Zimmer
- 4.5
- Baujahr
- 1900
- Wohnfläche
- 165 m²
- Nutzfläche
- 165 m²
- Grundstücksfläche
- 107 m²
- Gebäudevolumen
- 668 m³




