Einfamilienhaus kaufen - 6525 Gnosca
Warum Sie diese Immobilie lieben werden
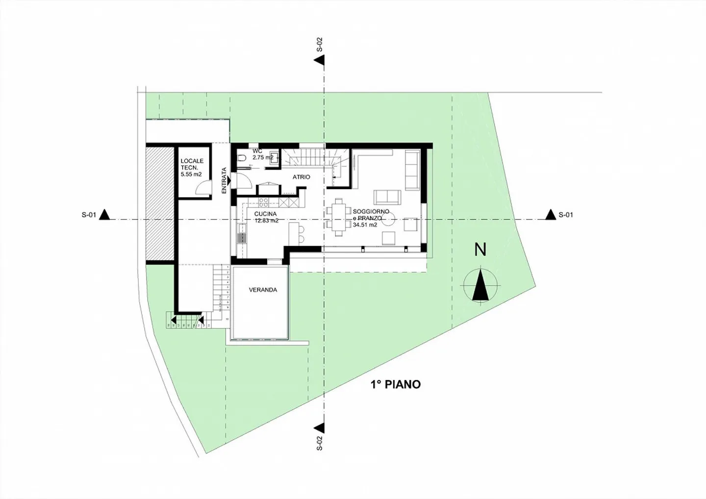
Anpassbarer Grundriss
Atemberaubende Bergsicht
Inklusive 2 Außenparkplätze
Besichtigung vereinbaren
Besichtigung mit Stabile buchen
Baugrundstück mit genehmigtem Projekt für ein vorgefertigtes Holzhaus in Gnosca
Wir bieten ein bebaubares Grundstück von 370 m² mit genehmigtem Projekt für die Errichtung einer modernen, vorgefertigten Kager-Wohnung mit 4,5 Zimmern auf zwei Ebenen in Gnosca. Diese Wohnlösung bietet eine einzigartige Gelegenheit für diejenigen, die von einer maßgeschneiderten und hochwertigen Konstruktion träumen.
Möglichkeit, die Ausführung und die Raumaufteilung anzupassen.
Das Grundstück ist direkt von der Parkfläche aus über eine Außentreppe und eine sichere Panzertür zugänglich, und die...
Immobiliendetails
- Verfügbar ab
- Nach Vereinbarung
- Zimmer
- 4.5
- Baujahr
- 2025
- Wohnfläche
- 130 m²
- Nutzfläche
- 153 m²
- Grundstücksfläche
- 368 m²



