1 / 7

Einfamilienhaus kaufen - 6525 Gnosca

4.5 Zimmer • 130 m² • 368 m² Plot
CHF 950’000.-
CHF 6’209 m²

Warum Sie diese Immobilie lieben werden

Anpassbare Ausstattungen

Atemberaubende Bergsicht

Energieeffizientes Heizsystem

Besichtigung vereinbaren

Besichtigung buchen

Metropolis Immobiliare
Diese Beschreibung wurde automatisch von Italienisch übersetzt.

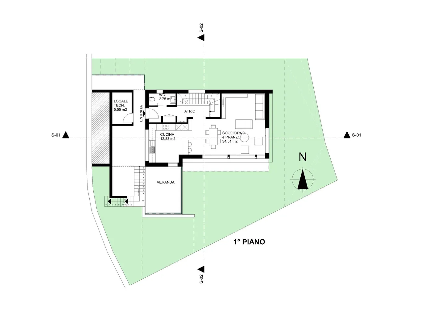
Grundstück mit prefabrikativem holzprojekt in gnosca

Wir bieten ein Baugrundstück von 370 m² mit genehmigtem Projekt für den Bau eines modernen Kager-Fertighauses mit 4,5 Zimmern auf zwei Etagen in Gnosca an. Diese Wohnlösung stellt eine einzigartige Gelegenheit für diejenigen dar, die von einem maßgeschneiderten und hochwertigen Bau träumen.

Möglichkeit zur Anpassung der Ausstattungen und der Raumaufteilung.

Der Zugang zur Immobilie erfolgt direkt über den Parkplatz über eine Außentreppe und ein großes überdachtes Podest, von dem aus Sie links zu e...

Immobiliendetails

Verfügbar ab
Nach Vereinbarung
Zimmer
4.5
Baujahr
2025
Wohnfläche
130
Nutzfläche
153
Grundstücksfläche
368

Eigenschaften

Balkon

Interessante Orte in der Nähe

Öffentlicher Verkehr - 0.5 km
Läden - 4 km
Kindergarten - 0.9 km
Primarschule - 0.5 km

Agentur

Metropolis Immobiliare
Metropolis Immobiliare
Adresse:Via Cantonale, 43, 6928, Manno, CH
(175 reviews)
Ref: RP-7693-3563

Standort

6525 Gnosca