Reihenhaus kaufen - 3960 Sierre
Warum Sie diese Immobilie lieben werden
Helles und modernes Design
Gemütlicher Balkon zum Entspannen
Effiziente Fußbodenheizung
Besichtigung vereinbaren
Besichtigung mit Kristof buchen
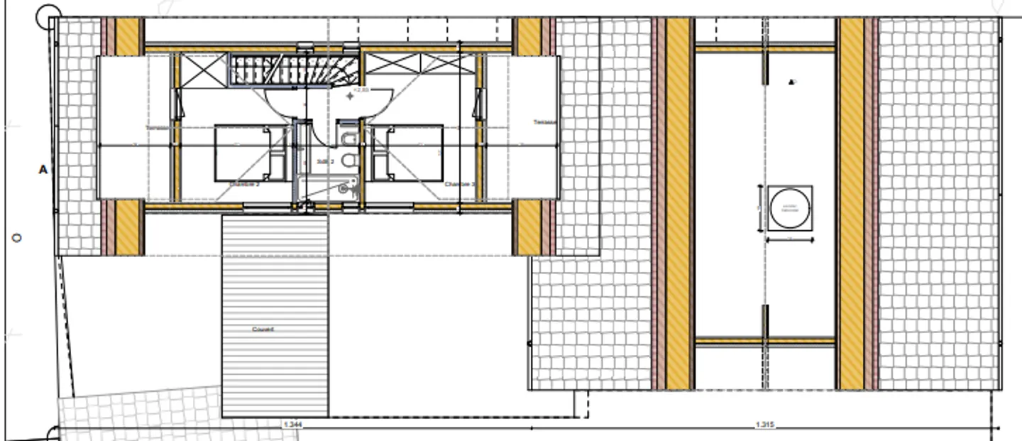
Moderne Reihenhaus mit 3,5 Zimmern und Balkon, Sierre - Neubau!
(Haus rechts auf den Plänen)
Seltene Gelegenheit in Sierre: Dieses 3,5-Zimmer-Reihenhaus verkörpert einen Lebensstil zwischen Gelassenheit, modernem Komfort und attraktiver Nähe. Lassen Sie sich von einer eleganten und hellen Atmosphäre verzaubern, in der jeder Raum so gestaltet wurde, dass er Ihre schönsten Lebensprojekte in einer sowohl friedlichen als auch vernetzten Umgebung beherbergt.
Die funktionale Aufteilung umfasst zwei einladende Schlafzimmer und zwei Badezimmer, ideal für Paare oder kl...
Immobiliendetails
- Verfügbar ab
- Nach Vereinbarung
- Zimmer
- 3.5
- Baujahr
- 2027
- Wohnfläche
- 75 m²
- Nutzfläche
- 135 m²
- Grundstücksfläche
- 260 m²



