Einfamilienhaus kaufen - 3556 Trub
Warum Sie diese Immobilie lieben werden
Gestalten Sie Ihr Traumhaus
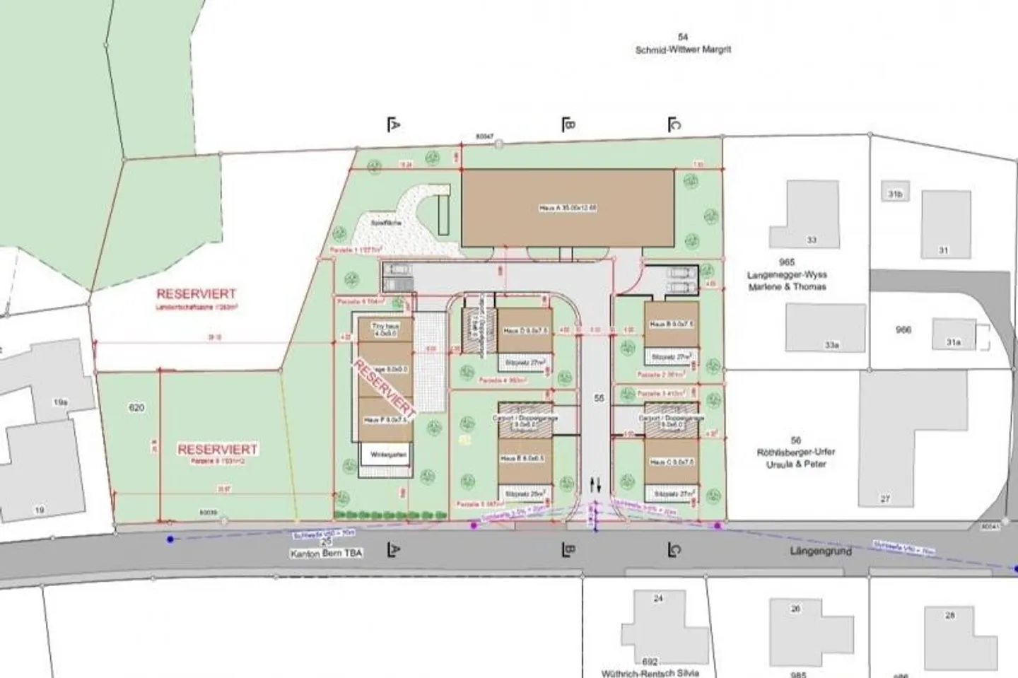
Wählen Sie aus verschiedenen Parzellen
Grüne Lage, ruhiges Wohnen
Besichtigung vereinbaren
Besichtigung buchen
S'Mittlere Gestalten Sie Ihr neues Eigenheim
Ein Traum wird wahr.
Auf einer riesigen Fläche im Grünen entstehen mehrere charmante Häuser, erbaut durch ansässige Firmen, verbunden mit der Natur. Lassen Sie Ihr Traumhäuschen nach Ihren Wünschen erstellen. Sie wählen nicht nur die Parzelle, sondern auch die Grösse Ihres neuen Zuhauses.
Lassen Sie Ihren Ideen freien Lauf und beginnen Sie noch heute mit Ihrer Wunschliste.
Dieses ImmoSky-Angebot bietet Ihnen folgende "Mehr Leistung":
* Neubau nach Ihren Wünschen
* Verschiedene Parzellen zur Auswahl
* ...
Immobiliendetails
- Verfügbar ab
- Nach Vereinbarung
- Zimmer
- 3.5
- Badezimmer
- 1
- Baujahr
- 2026
- Wohnfläche
- 75 m²
- Grundstücksfläche
- 350 m²



