Einfamilienhaus kaufen - 2732 Reconvilier
Warum Sie diese Immobilie lieben werden
Erstklassige Lage im Berner Jura
Sofortiger Baubeginn möglich
Flexible Erweiterungsoptionen des Projekts
Besichtigung vereinbaren
Besichtigung buchen
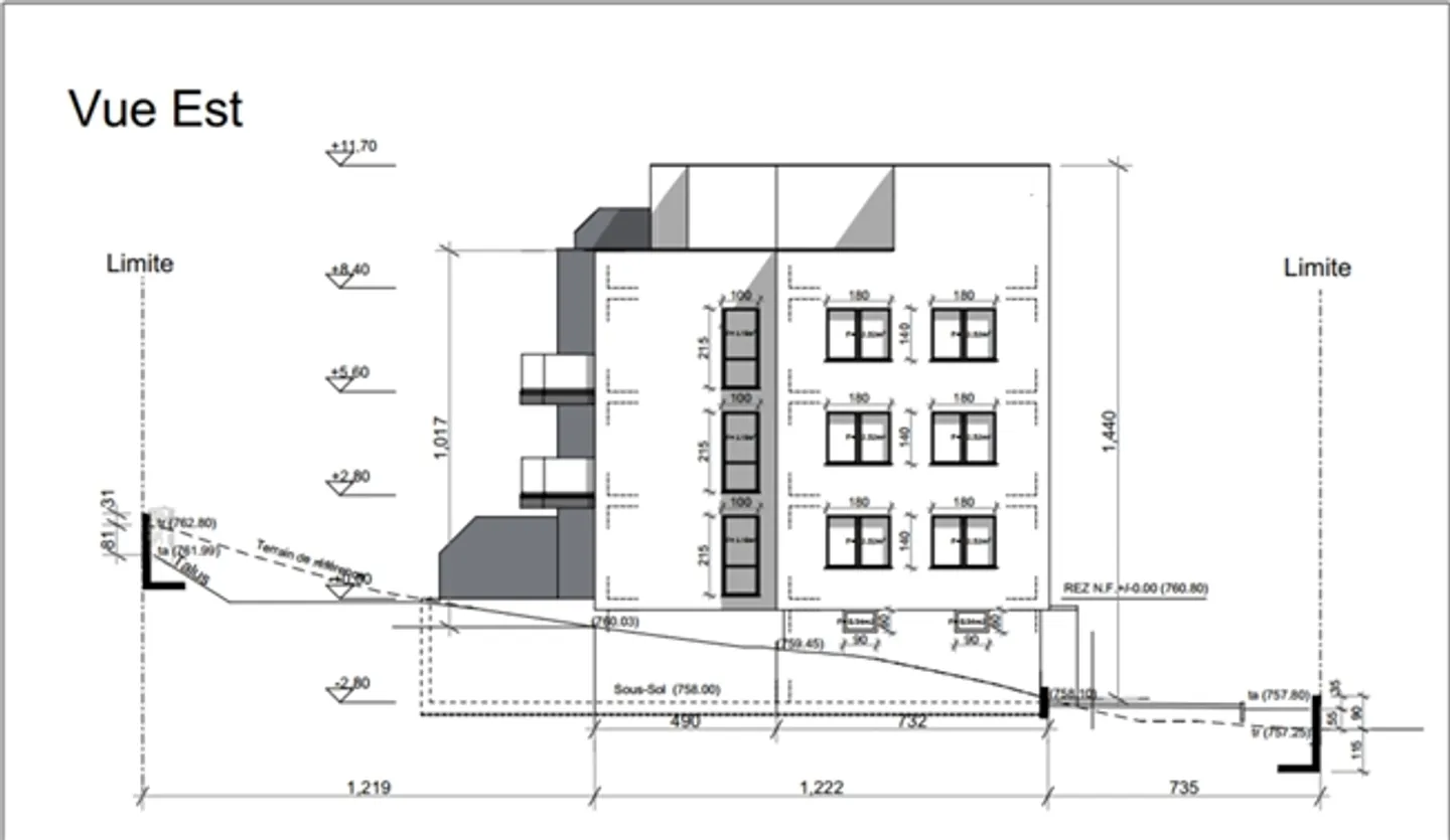
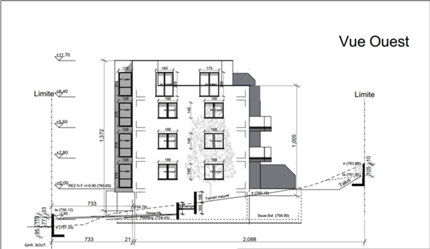
«attraktives baugrundstück mit bewilligtem projekt für 11 moderne wohnungen in reconvilier (berner jura)»
Attraktives Bauland mit bewilligtem Projekt für 11 moderne Wohnungen in Reconvilier (Berner Jura) Ein Projekt mit hohem Potenzial - ideal für Investoren, Bauherren oder Privatpersonen, die in nachhaltigen Wohnraum investieren möchten. Zum Verkauf: ein Baugrundstück von 1'943 m² in Reconvilier, für das bereits die Baubewilligung für 11 moderne Eigentumswohnungen (PPE) erteilt wurde.
Das Projekt besticht durch seine durchdachte Architektur, die ruhige und sonnige Lage, sowie die Möglichkeit, sofor...
Immobiliendetails
- Verfügbar ab
- Nach Vereinbarung
- Grundstücksfläche
- 1943 m²



