Villa kaufen - Route De Domdidier 27, 1566 St-Aubin FR
Warum Sie diese Immobilie lieben werden
Geräumiger Wohnbereich von 64 m²
Geothermische Heizungsanlage
Grosse Terrasse von 32 m²
Besichtigung vereinbaren
Besichtigung buchen
Einzelvilla mit 5 zimmern, neu
Gelegen in Saint-Aubin (FR) in der Nähe von Geschäften, besteht dieses neue Projekt aus 6 neuen Einfamilienhäusern. Jede Villa bietet großzügige Räume, hochwertige Ausführungen und moderne Ausstattungen (Ausführungen nach Wahl der Käufer).
Schlüsselmerkmale dieses Projekts: Fußbodenheizung mit geothermischer Wärmepumpe, Photovoltaikpanele, motorisierte Rollläden, Glasfaser, Raumthermostat, usw...
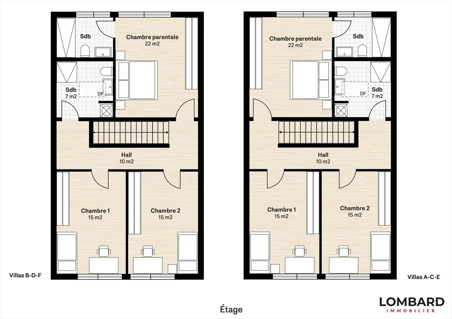
Die Villa A besteht aus:
Erdgeschoss:
* Eingangshalle mit eingebauten Schränken
* Geräumiges Wohn-/Esszim...
Immobiliendetails
- Verfügbar ab
- Nach Vereinbarung
- Zimmer
- 5
- Baujahr
- 2025
- Wohnfläche
- 140 m²
- Nutzfläche
- 214 m²
- Grundstücksfläche
- 352 m²




