Einfamilienhaus kaufen - Sonnmattweg 2, 5636 Benzenschwil
Warum Sie diese Immobilie lieben werden
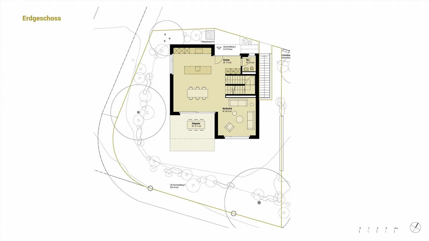
Geräumige offene Wohnbereiche
Private Sitzplätze im Freien
Direkter Zugang zur Garage
Besichtigung vereinbaren
Besichtigung mit Peterhans buchen
Neubauprojekt 25 häuser im grünen in benzenschwil ag
Am Dorfeingang von Benzenschwil entsteht eine attraktive Wohnüberbauung mit mehrheitlich Doppeleinfamilienhäuser und hohem Wohnkomfort. Auf dem leicht abfallenden Grundstück am Waldrand werden 25 Wohneinheiten mit je 5.5 Zimmern realisiert.
Die Häuser verfügung jeweils über offen gestaltete Erdgeschosse mit lichtdurchfluteten Wohn- Essbereichen sowie einer modernen Küche. Grosszügige teilweise gedeckete Sitzplätze bilden den Übergang zu den privaten Aussenbereichen. In den Obergeschossen unter de...
Immobiliendetails
- Verfügbar ab
- Nach Vereinbarung
- Zimmer
- 5.5
- Baujahr
- 2026
- Wohnfläche
- 166.1 m²
- Grundstücksfläche
- 335.14 m²



