Villa kaufen - 1950 Sion
Warum Sie diese Immobilie lieben werden
Geräumige Terrasse zum Entspannen
Hochwertige Holzstruktur
Ideal für Familien oder Vermietungen
Besichtigung vereinbaren
Besichtigung mit buchen
Haus zu verkaufen in sion, schweiz
1. IMMOBILIENNETZWERK DES VALAIS ®...................SWISS SUN VALAIS ®
.
.
In WELTEXKLUSIVITÄT
.
.
Ihr SOLIDARITÄTSVERTRETER
.
Schöpfer von Herzensangelegenheiten ®
.
Für den Bau in R1* R2* oder Mietrendite
.
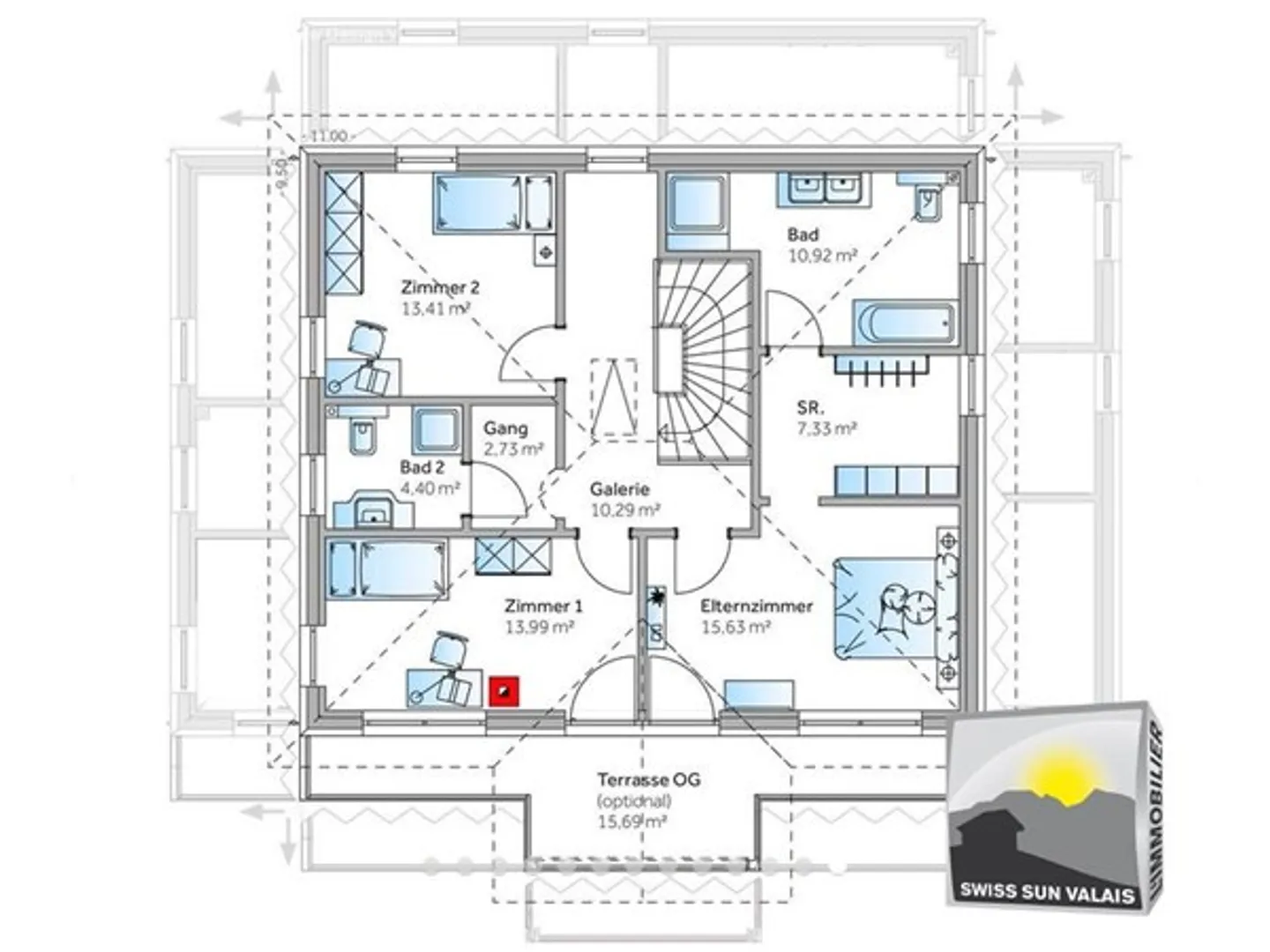
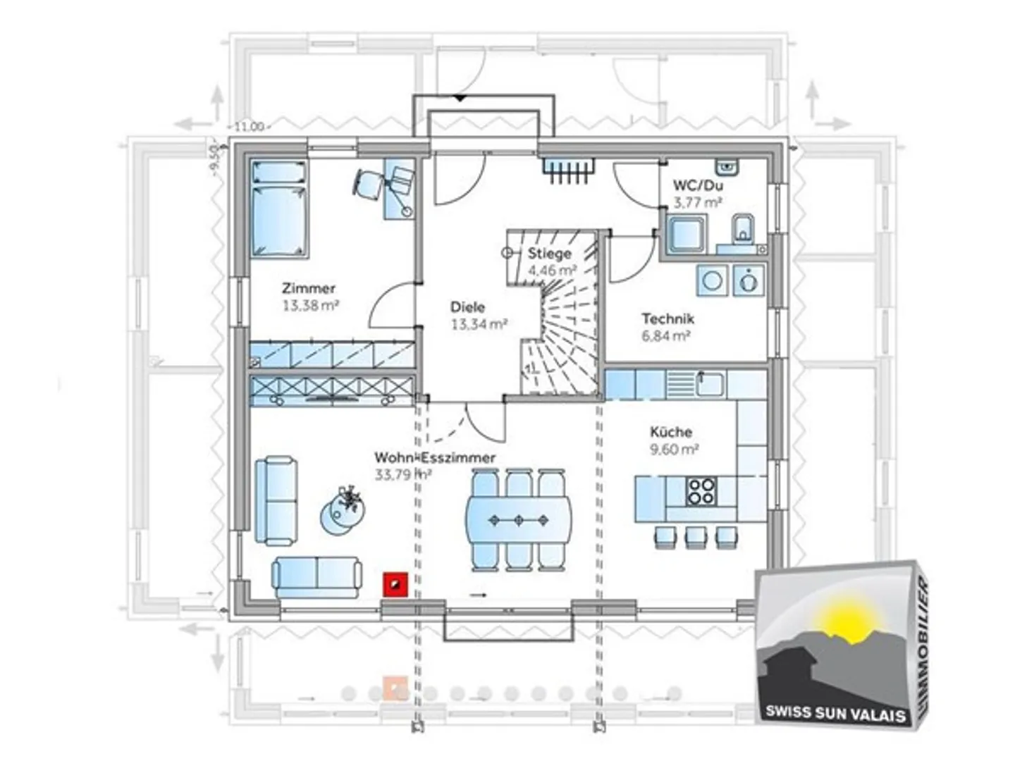
Wir haben die Ehre, Ihnen "Louisiane" vorzustellen: WUNDERSCHÖNES Bauprojekt einer individuellen Villa mit 4,5 Zimmern von 160 m²: 150 m² + 20 m² Terrasse, gelegen im Wallis auf dem Grundstück Ihrer Wahl. Ich bin Holzrahmen, entworfen mit allen aktuellen Anforderungen in Bezug auf thermische, akustisc...
Immobiliendetails
- Verfügbar ab
- Nach Vereinbarung
- Badezimmer
- 2
- Toiletten
- 2
- Parkplätze im Freien
- 2
- Baujahr
- 2019
- Wohnfläche
- 160 m²



