In Évionnaz, ganz in der Nähe des Dorfzentrums und der Schule, bieten wir Ihnen diese wunderschöne Doppelhaushälfte mit 192 m2 Wohnfläche, die 2023 komplett renoviert wurde.
Das Haus wurde mit sehr hochwertigen Materialien vollständig aufgewertet. Die Böden und einige Wände sind aus Marmor aus Carrara, Griechenland und Iran. Die im Fischgrätmuster verlegten Parkettböden in den Schlafzimmern sind aus massivem Eichenholz. Alle Armaturen sind aus Messing.
Die Ausführungen sind von einwandfreier Qualität. Alle praktischen Details wurden gründlich durchdacht, um einen idealen Wohnkomfort zu bieten. Das Haus erfüllt die neuen Energiestandards aufgrund seiner 20 cm dicken Perimeterdämmung sowie der Installation einer Luft/Wasser-Wärmepumpe. Die Heizung erfolgt über Fußbodenheizung in allen Räumen. Alle Fenster sind dreifach verglast. Das Haus ist nach Süden ausgerichtet und bietet einen schönen Blick auf die Berge.
Verteilung des Hauses:
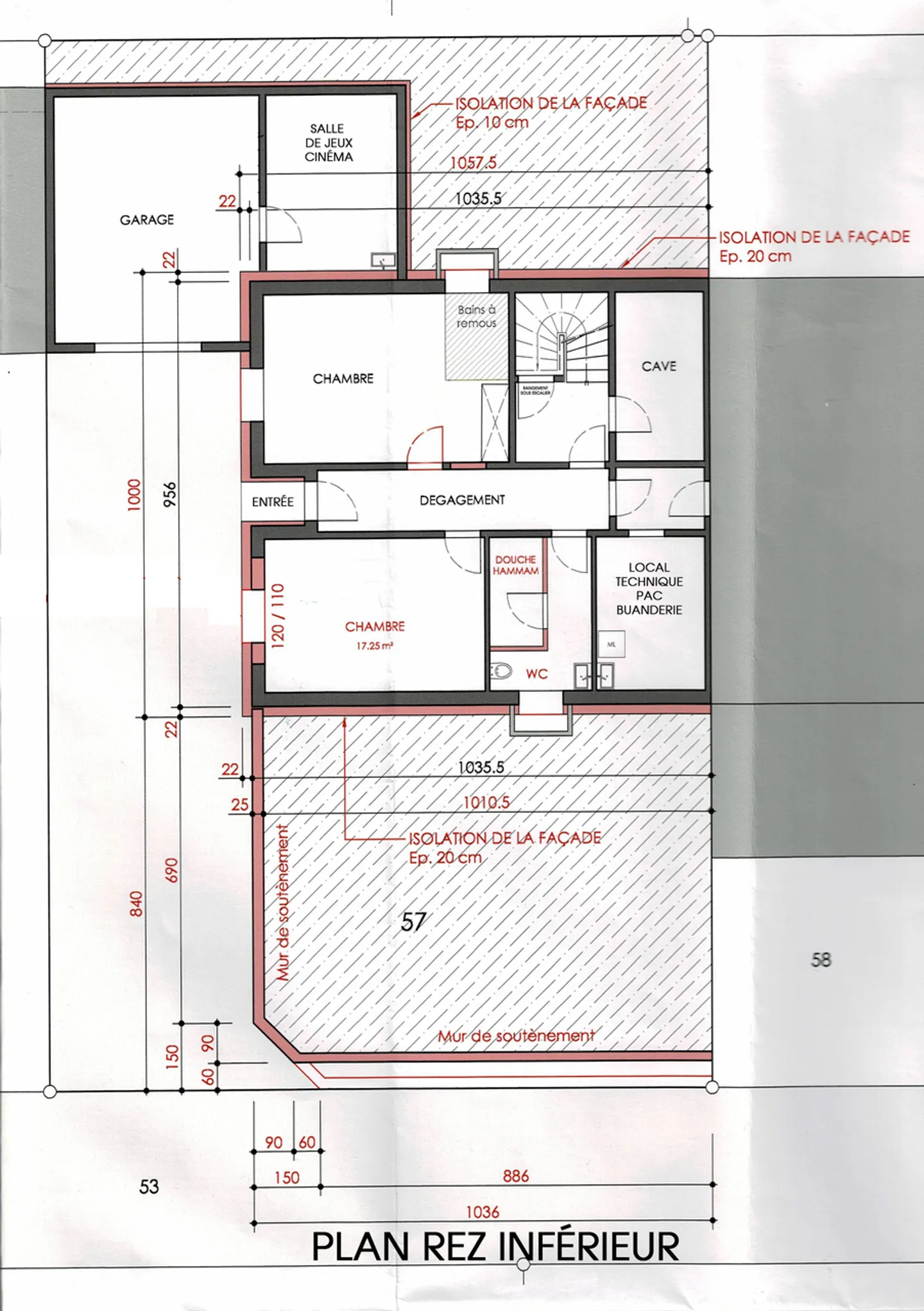
- Untergeschoss:
- Eingangsbereich mit einem in die Wand eingebauten Schuhschrank
- Hauptschlafzimmer mit einem Wandkleiderschrank und einer großen Badewanne/Jacuzzi für 2 Personen
- Zweites großes Schlafzimmer
- Dusch-WC-Raum (die Dusche dient auch als Dampfbad)
- Technikraum / Waschküche
- Vorratsraum
- Kleiner Abstellraum unter der Treppe
- Kino- oder Spielzimmer
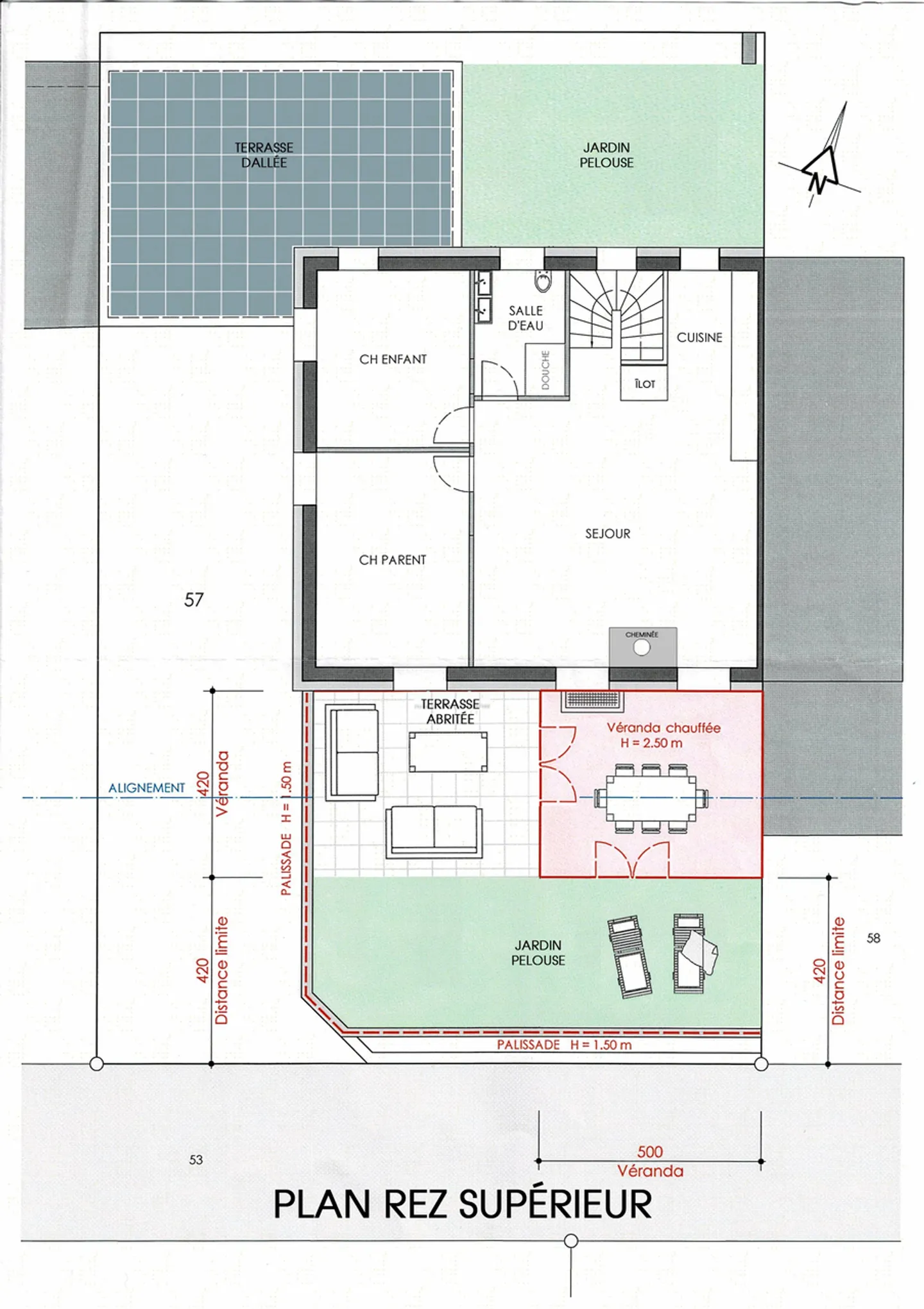
Obergeschoss:
- Voll ausgestattete Küche mit Zugang zum Garten und zur hinteren Terrasse und offen zum
- Großes und helles Wohnzimmer mit einem wunderschönen Kamin aus Carrara-Marmor
- Geräumige Veranda, die als Esszimmer dient
- Drittes Schlafzimmer mit einem Wandkleiderschrank
- Viertes Schlafzimmer mit Zugang zum Garten und zur hinteren Terrasse
- Italienisches Duschbad und WC
- Geschützte Südterrasse
- Garten mit Außendusche
Nebengebäude:
- Großer Garage mit automatischem Tor
- Drei Außenparkplätze
- Gemüsegarten von etwa 70 m2 in der Nähe des Hauses
Ein Besuch ist ein Muss, und währenddessen werden Sie von der Qualität und dem Komfort, den Ihnen dieses Haus bietet, beeindruckt sein.
Jean-Baptiste Vernerey
Energy consumption
No dataGreenhouse gas emmissions
No data1902 Evionnaz (VS)