Chalet kaufen - 1832 Villard-sur-Chamby
Warum Sie diese Immobilie lieben werden
Malerische grüne Umgebung
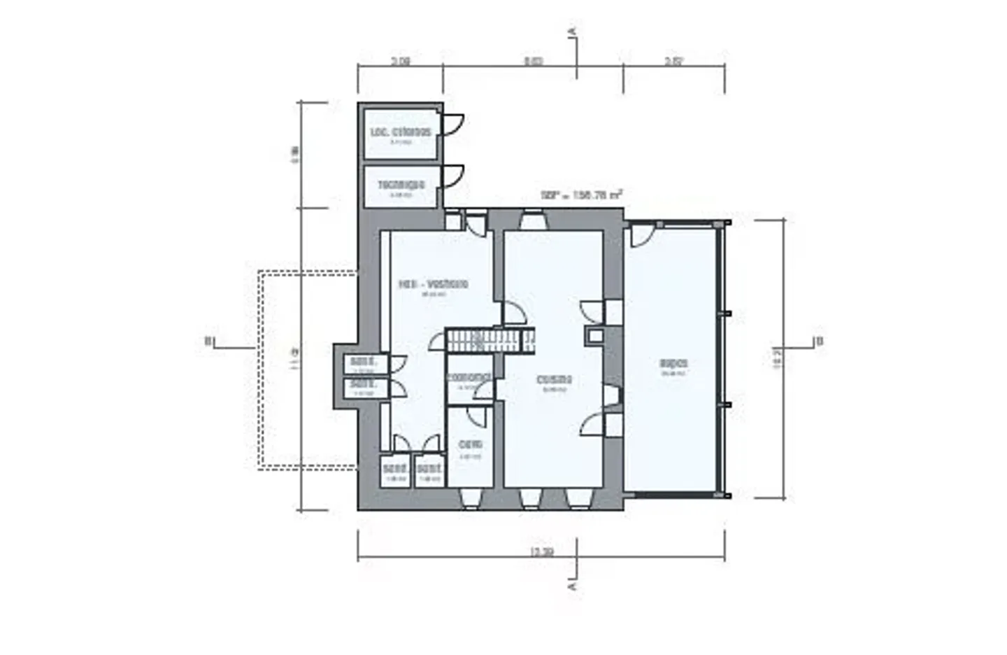
Großer Speisesaal für 45
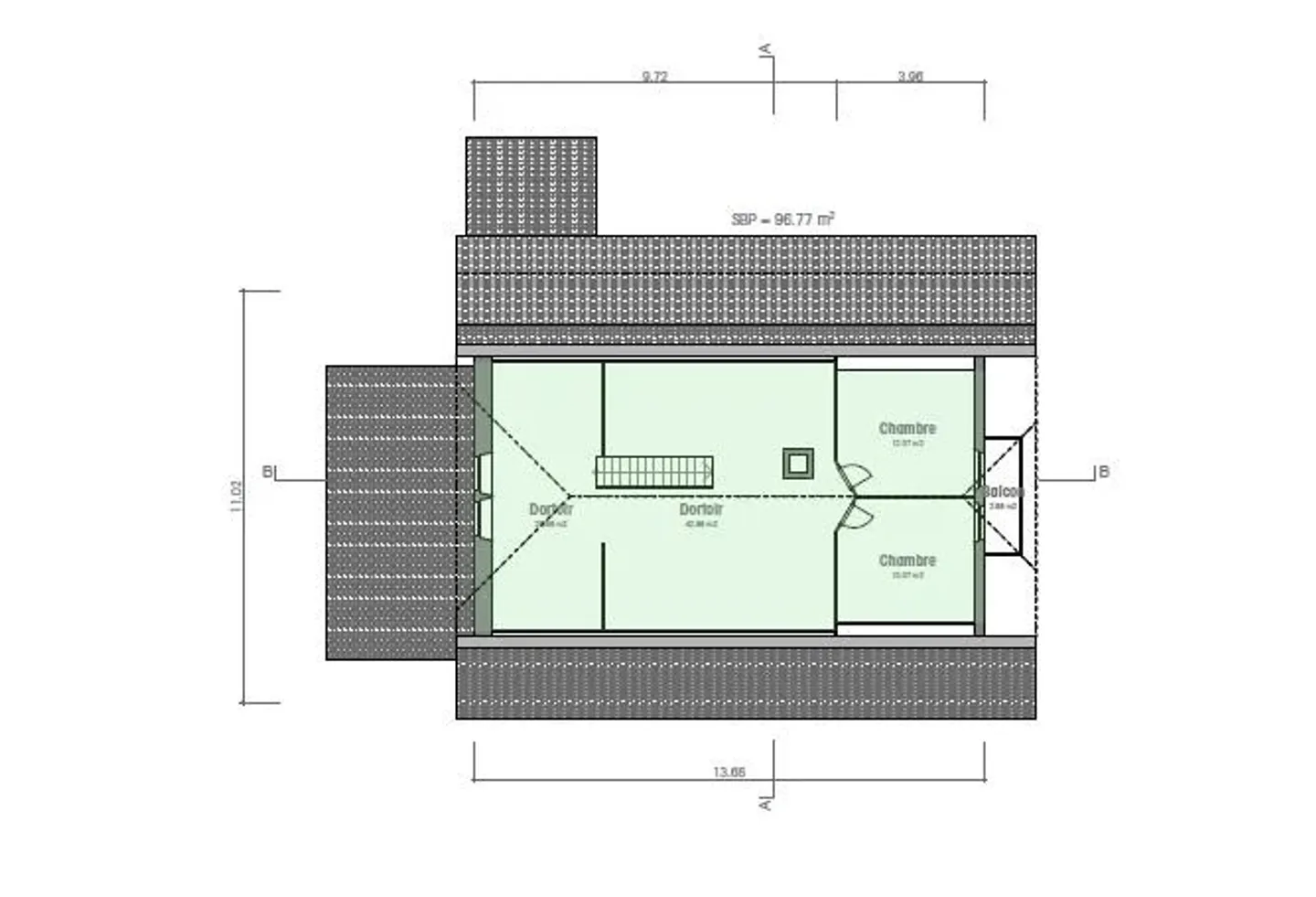
Potenzial für separate Wohnungen
Besichtigung vereinbaren
Besichtigung mit Julie buchen
Charme und authentizität mit großem potenzial für transformation
OMNIA IMMOBILIER RIVIERA präsentiert Ihnen zum Verkauf dieses wunderschöne Chalet, das Anfang des letzten Jahrhunderts errichtet und teilweise 1996 renoviert wurde.
Es liegt in den Höhen der Riviera, im bukolischen Vallon de Villard, und profitiert von einer ruhigen und grünen Umgebung, mitten in der Natur, und bleibt dennoch nahe bei den Städten Montreux und Vevey.
In den Händen einer Föderation wurde es bis heute speziell für die Unterbringung von Personengruppen genutzt.
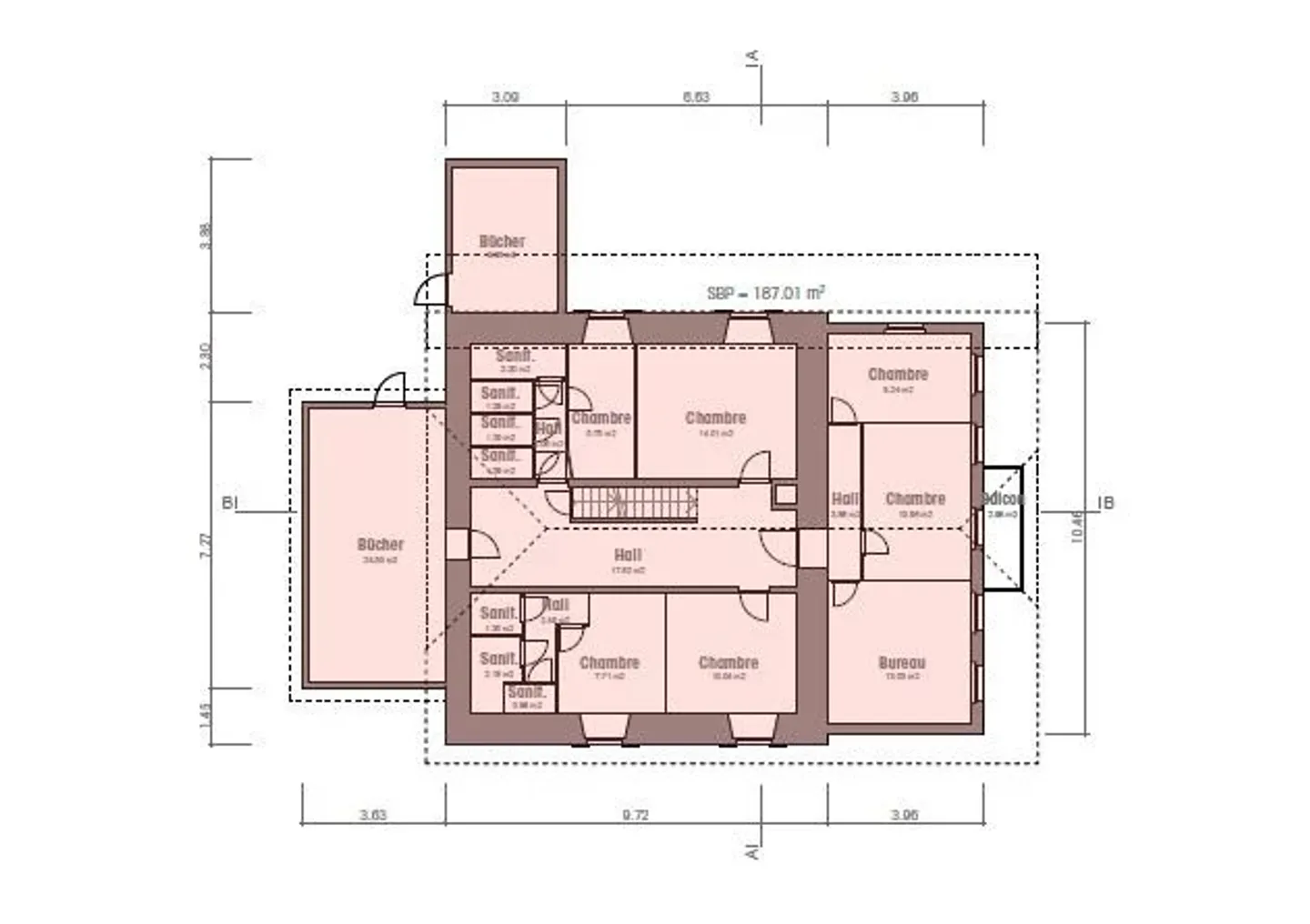
Mit einer Wohnfläche ...
Immobiliendetails
- Verfügbar ab
- Nach Vereinbarung
- Zimmer
- 15
- Baujahr
- 1911
- Renovierungsjahr
- 1996
- Wohnfläche
- 462 m²
- Nutzfläche
- 492 m²
- Grundstücksfläche
- 2664 m²
- Gebäudevolumen
- 1205 m³



