Chalet kaufen - Route Du Sergnou 179, 1978 Lens
Warum Sie diese Immobilie lieben werden
Privatgarten mit Terrasse
Panoramablick auf die Alpen
In der Nähe von Wanderwegen
Besichtigung vereinbaren
Besichtigung mit GENOUD buchen
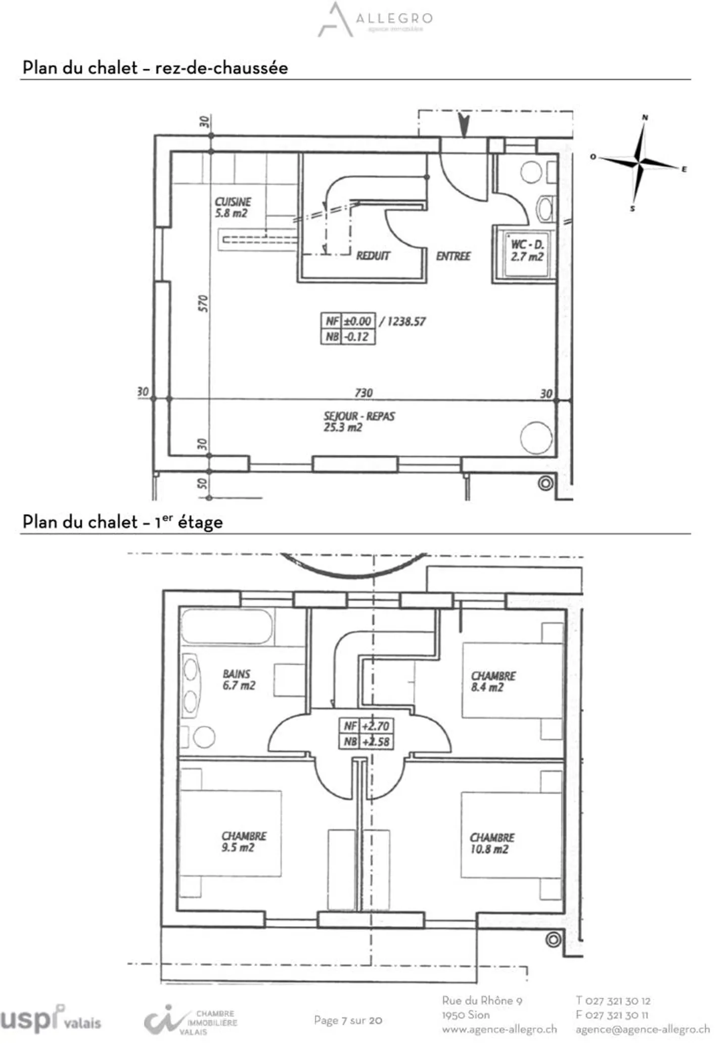
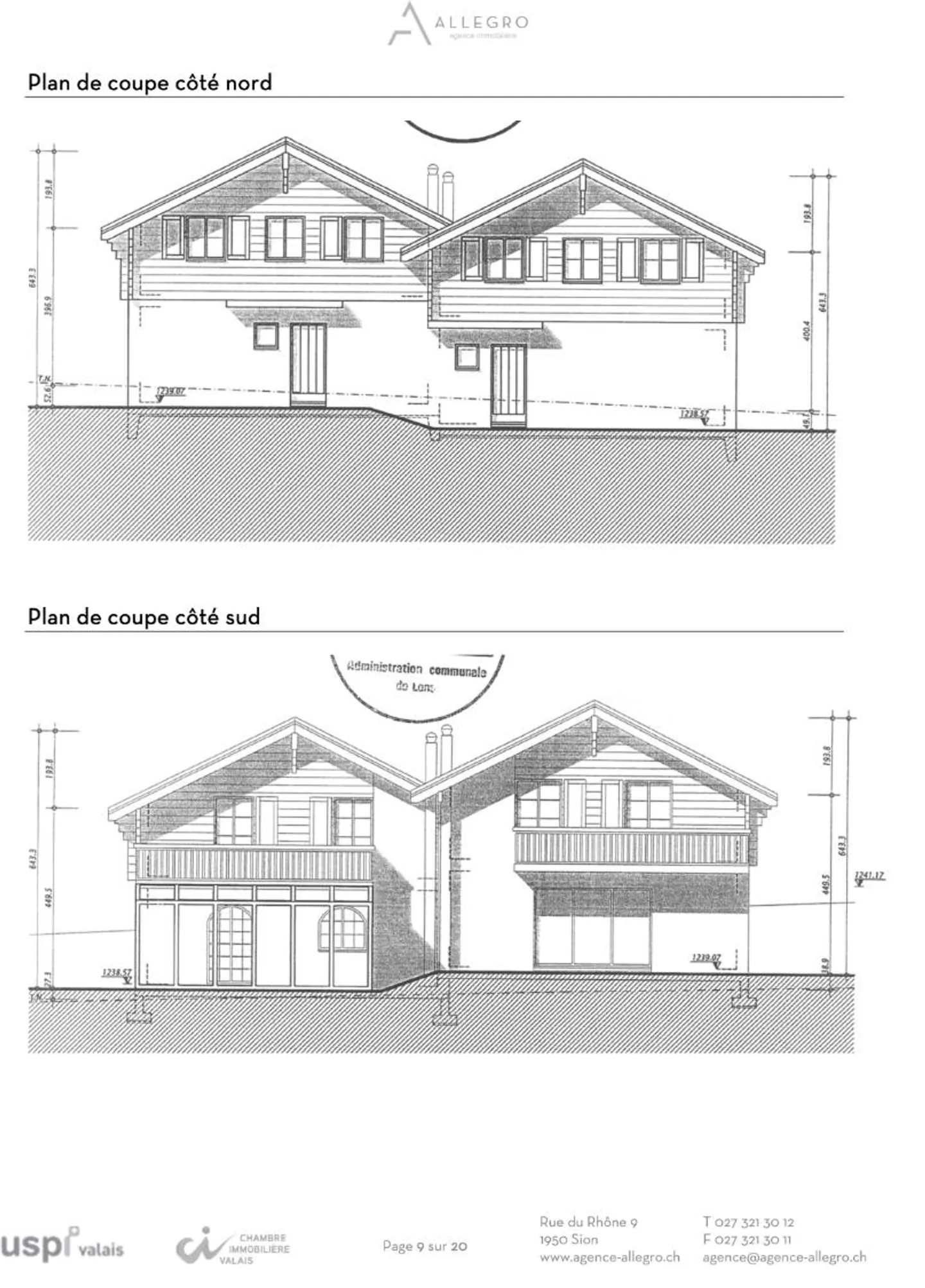
Chalet 4,5 Zimmer
Lens, wunderschönes Reihenhaus mit 105 m2, Terrasse, privatem Garten, Parkplatz und Garage Box
Das im Jahr 2002 erbaute charmante Reihenhaus mit 4,5 Zimmern befindet sich auf einem Grundstück von 358 m2 in der Route du Sergnou 179a in Pra Riond, in der Gemeinde Lens, auf einer Höhe von etwa 1.245 m.
In einer ruhigen und grünen Wohngegend gelegen, bietet dieses Chalet eine friedliche Umgebung mit einem außergewöhnlichen Panoramablick auf die Walliser Alpen, der langfristig garantiert ist.
Das Grunds...
Immobiliendetails
- Verfügbar ab
- Nach Vereinbarung
- Zimmer
- 4.5
- Badezimmer
- 2
- Wohnfläche
- 105 m²


