Chalet kaufen - Route Du Sergnou 179, 1978 Lens
Warum Sie diese Immobilie lieben werden
Atemberaubende Panoramaaussicht
Privatgarten mit Terrasse
In der Nähe von Wanderwegen
Besichtigung vereinbaren
Besichtigung mit GENOUD buchen
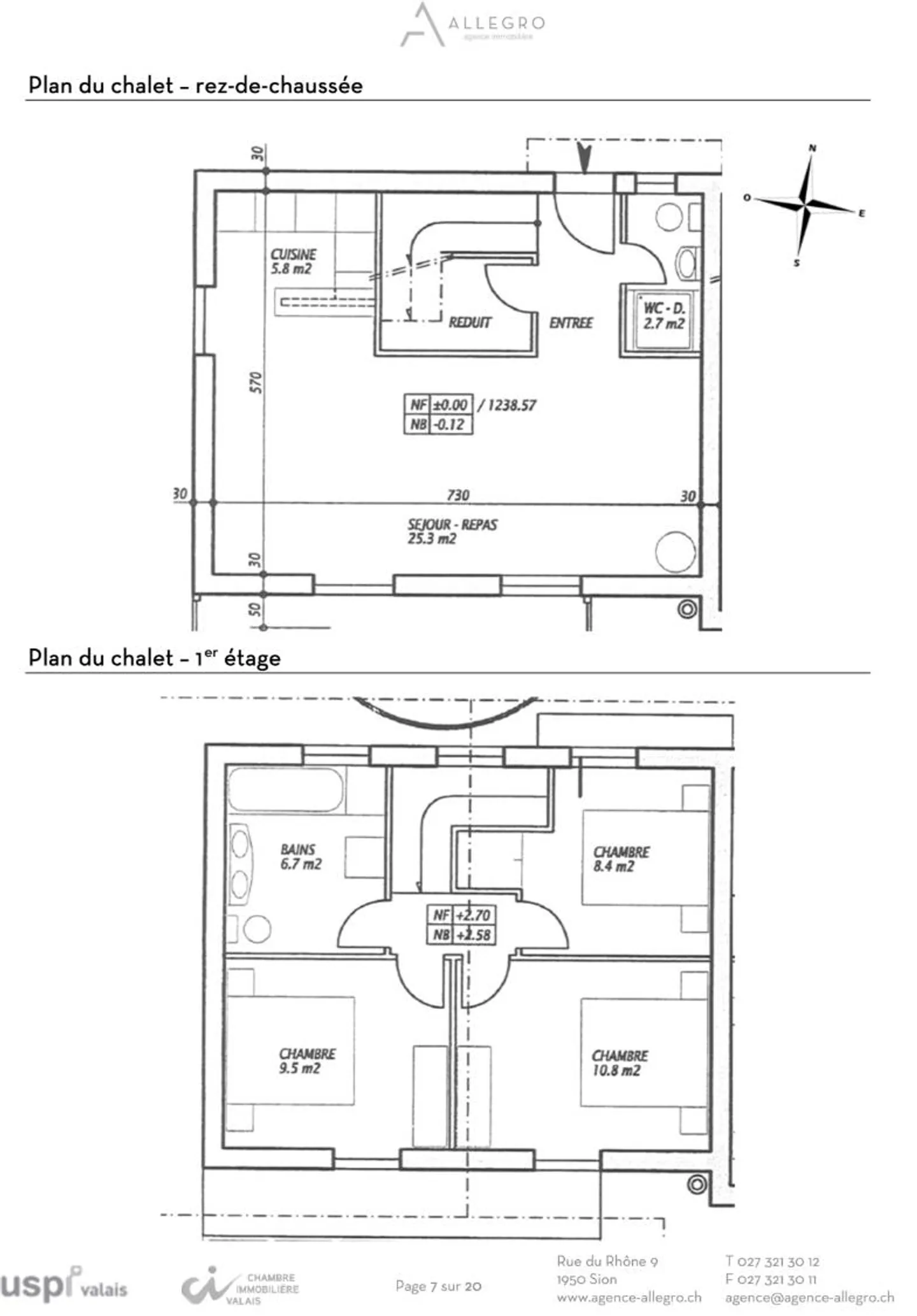
Chalet 4.5 Zimmer
Lens, charmantes Doppelhaushälfte von 105 m2 mit Terrasse, privatem Garten, Parkplatz und Garage Box
Baujahr 2002, befindet sich dieses charmante 4.5-Zimmer-Doppelhaus auf einem Grundstück von 358 m2 in der Route du Sergnou 179a in Pra Riond, in der Gemeinde Lens, auf einer Höhe von etwa 1.245 m.
In einer ruhigen und grünen Wohngegend gelegen, bietet dieses Chalet eine friedliche Umgebung mit einer außergewöhnlichen Panoramaaussicht auf die Walliser Alpen, die langfristig garantiert ist.
Das Grunds...
Immobiliendetails
- Verfügbar ab
- Nach Vereinbarung
- Zimmer
- 4.5
- Badezimmer
- 2
- Wohnfläche
- 105 m²



