Einfamilienhaus kaufen - 1538 Treytorrens (Payerne)
Warum Sie diese Immobilie lieben werden
Ökologischer Holzbau
Geräumiges Grundstück von 2000 m²
Pferdeeinrichtungen in der Nähe
Besichtigung vereinbaren
Besichtigung buchen
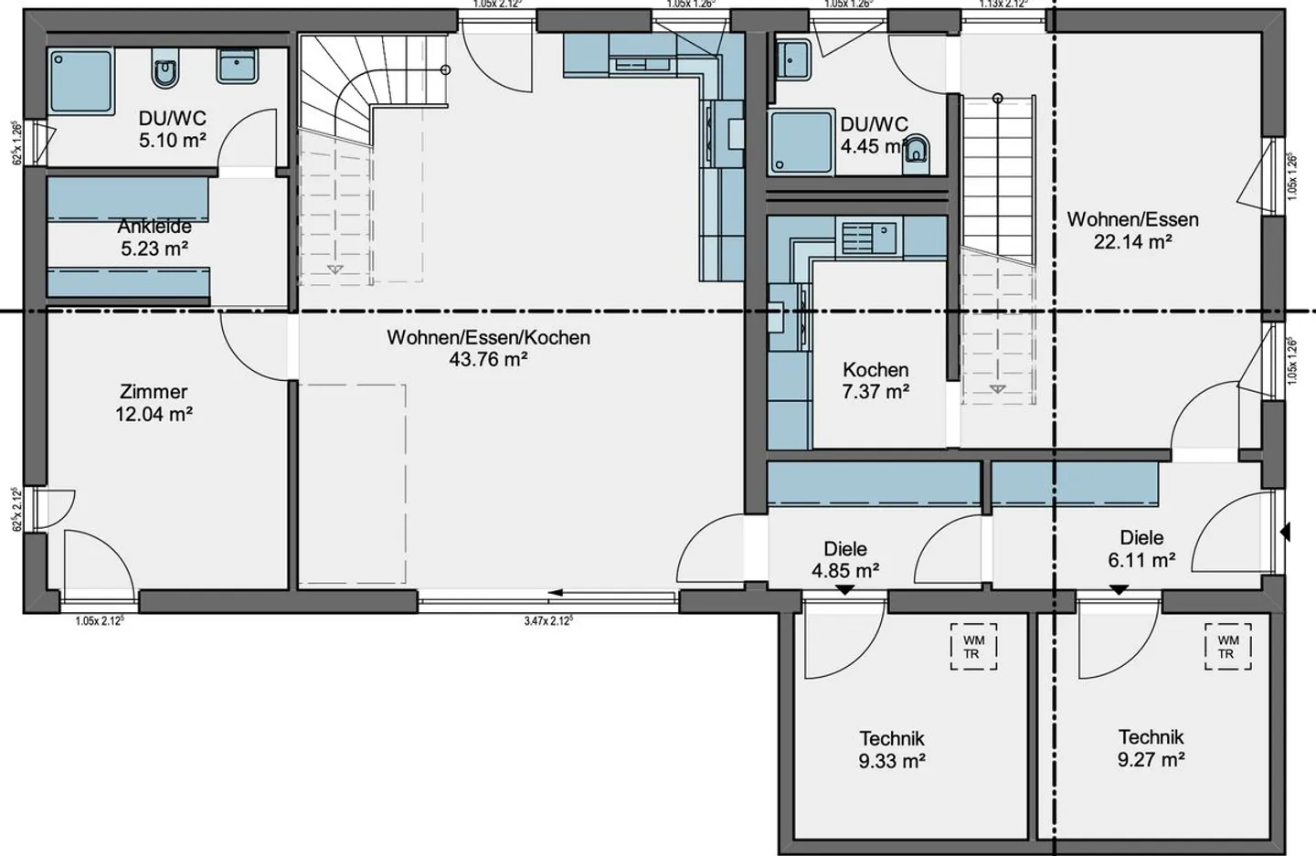
Doppelhaushälfte mit 5,5 Zimmern und Stall für 3 Pferde - Genehmigung in Kraft
In einer ruhigen und grünen Umgebung gelegen, bietet diese hervorragende 5,5-Zimmer-Villa eine privilegierte Umgebung für Natur- und Pferdeliebhaber.
Sie wurde von Hanse Haus in Holzrahmenbauweise errichtet und vereint Energieeffizienz, modernen Komfort und Umweltschutz.
Auf einem großzügigen Grundstück von etwa 2.000 m² kann sie je nach Bedarf einen freien Stall für drei Pferde zusätzlich zum Preis beinhalten.
Auch angrenzende landwirtschaftliche Flächen können gemietet werden, um die Einrichtu...
Immobiliendetails
- Verfügbar ab
- Nach Vereinbarung
- Zimmer
- 5.5
- Baujahr
- 2026
- Wohnfläche
- 125 m²
- Nutzfläche
- 140 m²
- Grundstücksfläche
- 2000 m²



