Einfamilienhaus kaufen - 1536 Combremont-le-Petit
Warum Sie diese Immobilie lieben werden
Exklusive grüne Umgebung
Anpassbare Innenräume
Geräumige Dachbodenoptionen
Besichtigung vereinbaren
Besichtigung buchen
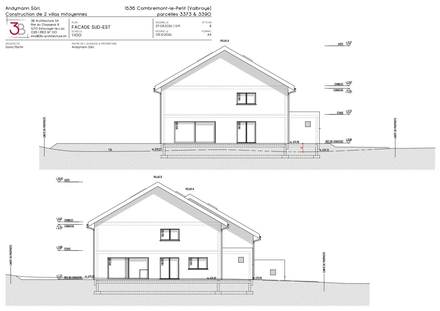
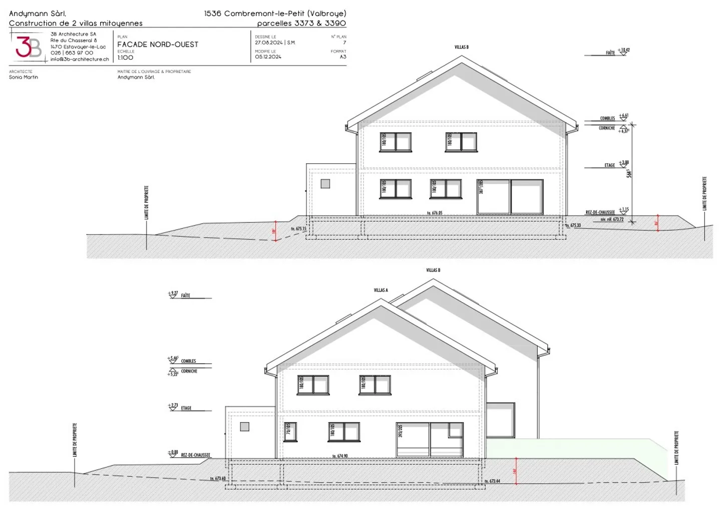
Neue Villa nach Plan in einem grünen Raum
Architektenhaus Doppelhaushälfte mit 4,5 oder 5,5 Zimmern und einem exklusiven Grundstück von 391 m2 oder 360 m2 in Combremont-le-Petit.
DIE VORTEILE AUF EINEN BLICK
- Architektenhaus
- Traditioneller Bau
- Maßgeschneiderte Innenräume
- Ländliche und naturnahe Umgebung
- Unverbaubare Aussicht
- 32m2 zusätzliche Wohnfläche optional verfügbar
LAGE
Das charmante Dorf Combremont im Bezirk Broye liegt im Kanton Freiburg in unmittelbarer Nähe zu Estavayer-le-Lac und Payerne:
- 17 Minuten von Estavay...
Immobiliendetails
- Verfügbar ab
- Nach Vereinbarung
- Zimmer
- 5.5
- Baujahr
- 2025
- Wohnfläche
- 132 m²
- Nutzfläche
- 215 m²
- Grundstücksfläche
- 391 m²



