Villa kaufen - 1174 Montherod
Warum Sie diese Immobilie lieben werden
Privater Garten und Terrasse
Ruhige Lage auf dem Land
Hohe Energieeffizienz
Besichtigung vereinbaren
Besichtigung mit Valérie buchen
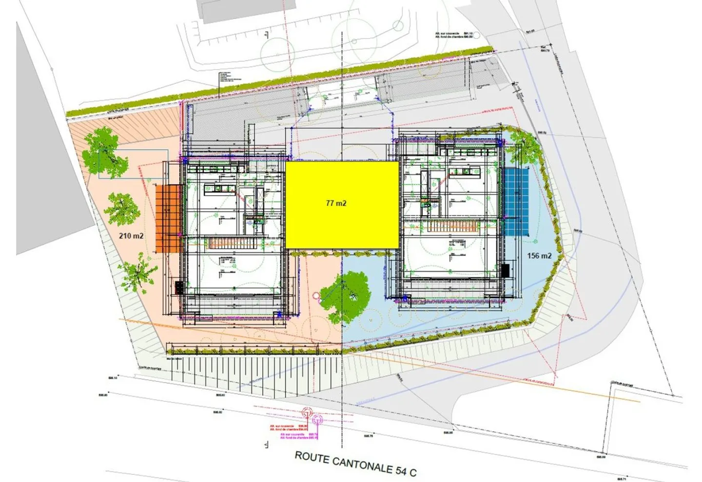
Villa LOT A (côté village)Maisons individuelles contemporaines d'env. 206 m² à Montherod dans un cadre champêtre, parcelle en pleine propriété, piscine possible
Au coeur de la campagne vaudoise, à Montherod, village paisible de la commune d'Aubonne, ce projet propose de magnifiques maisons individuelles entièrement indépendantes, sans mur mitoyen, offrant intimité, volumes généreux et lumière naturelle.
Chaque habitation bénéficie d'un jardin privatif, de terrasses orientées sud et ouest et d'un...
Immobiliendetails
- Verfügbar ab
- Nach Vereinbarung
- Zimmer
- 5.5
- Baujahr
- 2026
- Wohnfläche
- 160 m²
- Nutzfläche
- 206 m²
- Grundstücksfläche
- 677 m²



