LE LOGIS - Villa "A" - Neue Doppelhaushälfte mit 6,5 Zimmern
Warum Sie diese Immobilie lieben werden
Minergie-P zertifiziert
Geräumiger Privatgarten
Nah an öffentlichen Verkehrsmitteln
Besichtigung vereinbaren
Besichtigung buchen
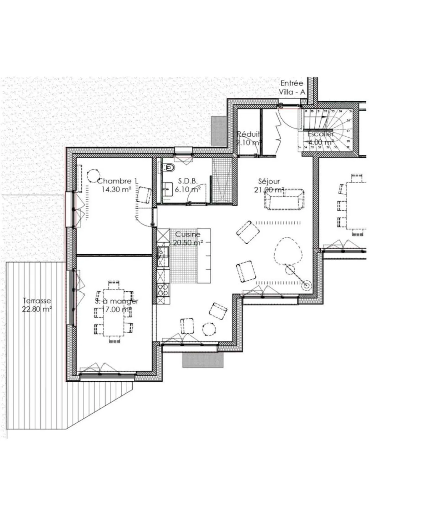
Wunderschöne neue 6,5-Zimmer-Villa, Minergie-P-zertifiziert, ideal gelegen in der Nähe des Zentrums von Echallens. Sie profitiert von einer privilegierten Lage, in unmittelbarer Nähe von Geschäften, öffentlichen Verkehrsmitteln und allen Annehmlichkeiten. Eine Grundschule ist nur 900 Meter entfernt, was diese Immobilie zu einem perfekt für Familien geeigneten Wohnraum macht.
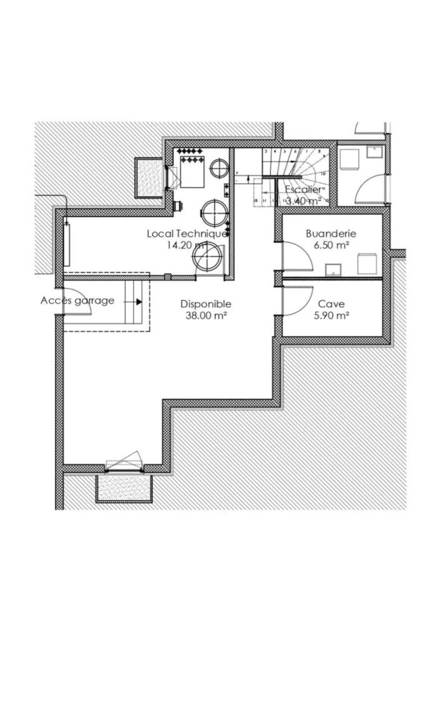
Auf einem 693 m2 großen Grundstück gelegen, bietet diese Immobilie helle und funktionale Innenräume, darunter fünf Schlafz...
Immobiliendetails
- Verfügbar ab
- 25.05.2027
- Zimmer
- 6.5
- Baujahr
- 2027
- Wohnfläche
- 190 m²
- Grundstücksfläche
- 693 m²



