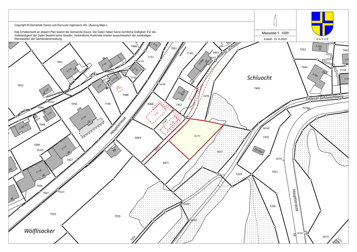
Bauland kaufen - Schluochtweg, 7494 Davos Wiesen
Warum Sie diese Immobilie lieben werden
Abgeschiedene Waldlage
Sonniger Garten möglich
Individuelle Gestaltungsmöglichkeiten
Besichtigung vereinbaren
Besichtigung buchen
Bauland für ihr traumhaus in den bergen
Das attraktive Grundstück ist auf die Grösse eines Einfamilienhauses (inkl. Einliegerwohnung) ausgelegt und ermöglicht unterschiedliche Gestaltungsmöglichkeiten.
Geschützt von fremden Blicken können Sie und Ihre Kinder die Nähe zum Wald und der Natur in vollen Zügen geniessen. Sie träumen von einem einem sonnenverwöhnten Garten mit einer aussichtsreichen Terrasse oder einem heimeligen Sitzplatz? Dann sind Sie hier genau richtig!
Unter Berücksichtigung der gesetzlichen Bestimmungen können Sie Ihr i...
Immobiliendetails
- Verfügbar ab
- Nach Vereinbarung
- Grundstücksfläche
- 783 m²



